Büros
ID K0440Aktualisiert
Büroimmobilie - Bonn, Ramersdorf - K0440
Ramersdorf, 53227, Bonn, Nordrhein-Westfalen
Provisionspflichtig: bei Anmietung 3 Netto-Monatsmieten zzgl. gesetzlicher Umsatzsteuer.** der Wert kann je nach Vertragslaufzeit variieren.
19 € / m²
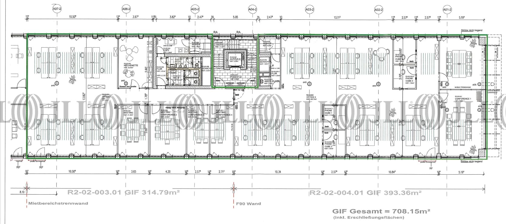
- Fläche199 - 2.549 m²
- VerfügbarkeitSofort
- Objekt
- Ausstattung
- Lage und Verkehrsanbindung
- Grundrisse
- Exposé herunterladen
- Ihr Kontakt
- Anfrage senden
Objekt
Das moderne Bürogebäude Rheinwerk 3 zeichnet sich durch zeitgemäße Architektur und funktionale Büroflächen aus. Die Immobilie bietet flexible Raumaufteilungen, die sich ideal für verschiedene Unternehmensanforderungen eignen. Durch die integrierte Betonkernaktivierung und das ressourcenschonende Energiekonzept spart das Greenbuilding jährlich an Primärenergieaufwand.
Zertifizierungen
Energieausweis
DGNB: GoldVerfügbare Fläche
Lage und Verkehrsanbindung
Das Objekt befindet sich im Bonner Bogen mit direkter Rheinlage. Aus dem alten Zementwerkareal wurde ein multifunktionaler Standort mit insgesamt 4000 hochwertigen Arbeitsplätzen. Das hervorragende Angebot umfasst einen eigenen Schiffsanleger, ein Konferenzzentrum, das Life & Style Hotel Kameha Grand Bonn sowie die Rheingastronomie. Die vielfältigen Kultur- und Freizeitangebote, sowie attraktive Einkaufsmöglichkeiten sind durch die schnelle Anbindung mit Auto oder Bahn gut zu nutzen. Dienstleister des täglichen Bedarfs befinden sich in der Nähe.
- Flughafen, Köln/Bonn, Fahrzeit: 17 min
- Bundesautobahn, A 562, Fahrzeit: 2 min
- Bundesautobahn, A 59, Fahrzeit: 4 min
- Bus, Bushaltestelle Ramersdorfer Bonner Bogen Buslinien 606, Gehzeit: 1 min
Ihr Kontakt

Bartosz Olszewski
Ihr Kontakt







