Büros
ID K0294Provisionsfrei
Büroimmobilie - Köln, Altstadt-Nord - K0294
Altstadt-Nord, 50667, Köln, Nordrhein-Westfalen
Kontaktieren Sie uns für den Preis
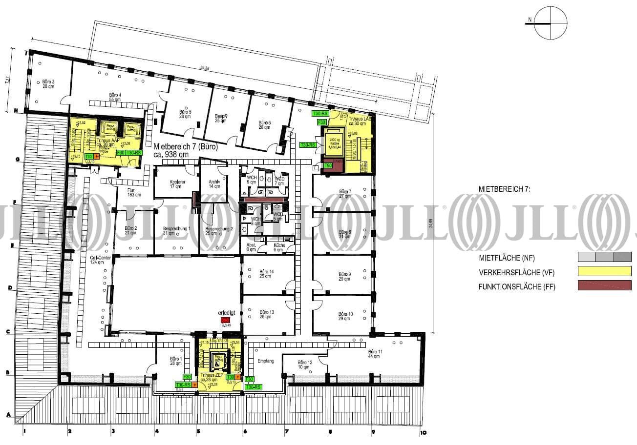
- Fläche964 m²
- VerfügbarkeitAuf Anfrage
- Objekt
- Ausstattung
- Lage und Verkehrsanbindung
- Grundriss
- Exposé herunterladen
- Ihr Kontakt
- Anfrage senden
Objekt
Die angebotene Bürofläche befindet sich in einem gepflegten Geschäftshaus. Ein moderner Glasaufzug gewährleistet kurze Wege zu allen Etagen. Ferner steht ein Lastaufzug zur Verfügung, der über einen Betriebshof zu erreichen ist. Die unteren Geschosse sind dem Einzelhandel vorbehalten. Ein repräsentatives Ambiente öffnet sich hinter den Pforten und gewährt Einblick in ästhetische Kombinationen aus Stilelementen und moderner Technik. Naturstein, Echtholz und Glas dominieren den Charakter der Wand- und Bodenflächen.
Zertifizierungen
Energieausweis
Für diese Liegenschaft liegt ein Verbrauchsausweis vom 10.06.2015 vom Eigentümer/Vermieter vor. Der wesentliche Energieträger der Liegenschaft ist Fernwärme. Der Endenergieverbrauch Strom beträgt 164.3 kWh/(m²*a). Der Endenergieverbrauch Wärme beträgt 157.2 kWh/(m²*a).Verfügbare Fläche
Lage und Verkehrsanbindung
Inmitten der pulsierenden Einkaufsmeilen rund um den Neumarkt präsentiert sich das Bürohaus Zeppelinstraße. Dem Passanten erschließt sich in einem Radius von ca. 1 km eine der größten Angebotsvielfalten Kölns. Die optimale Lage zu dem öffentlichen Nahverkehr, sowie zahlreiche Parkhäuser ermöglichen individuelle Mobilität. Die Autobahnanbindungen über die Kreuze Köln-Ost und Heumarer Dreieck sind schnell erreichbar. Darüber hinaus steht ein großes, kulturelles Angebot zur Verfügung, welches die Vielfalt dieses Standortes unterstreicht. Dienstleister des täglichen Bedarfs befinden sich in der Nähe.
- Flughafen, Köln/Bonn, Fahrzeit: 15 min
- Flughafen, Düsseldorf, Fahrzeit: 45 min
- Bundesautobahn, A 1, Fahrzeit: 15 min
- Bundesautobahn, A 3, Fahrzeit: 12 min
- Bundesautobahn, A 4, Fahrzeit: 10 min
- Bundesautobahn, A 57, Fahrzeit: 9 min
- Bus, Neumarkt Linien 136, 146, Gehzeit: 3 min
- Straßenbahn/Tram, - Neumarkt Linien 1, 3, 4, 7, 9, 16, 18, Gehzeit: 3 min
- Hauptbahnhof, Hauptbahnhof, Fahrzeit: 2 min
Ihr Kontakt

Bartosz Olszewski
Ihr Kontakt






















