Büros
ID K0291Premium JLL
Aktualisiert
Büroimmobilie - Köln, Poll - K0291
Poll, 51105, Köln, Nordrhein-Westfalen
Provisionspflichtig: bei Anmietung 3 Netto-Monatsmieten zzgl. gesetzlicher Umsatzsteuer.** der Wert kann je nach Vertragslaufzeit variieren.
16,50 € / m²
- Fläche511 - 560 m²
- VerfügbarkeitAuf Anfrage
- Objekt
- Ausstattung
- Lage und Verkehrsanbindung
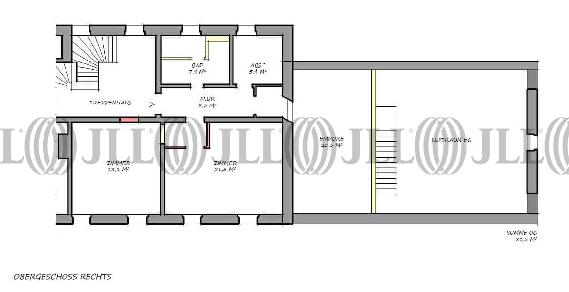
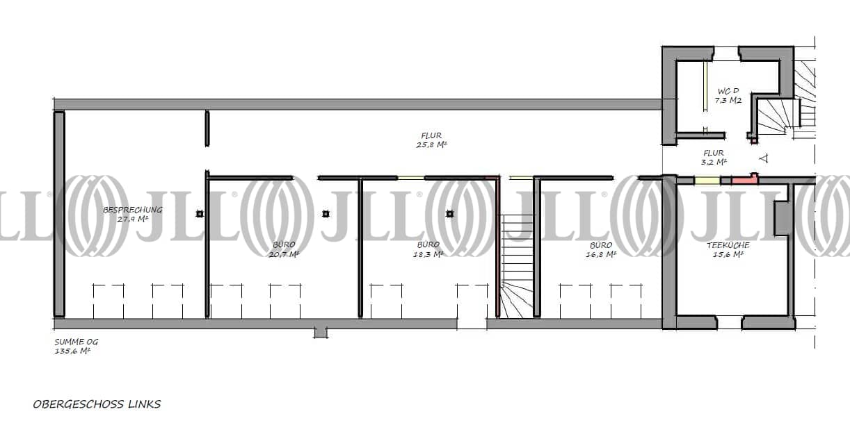
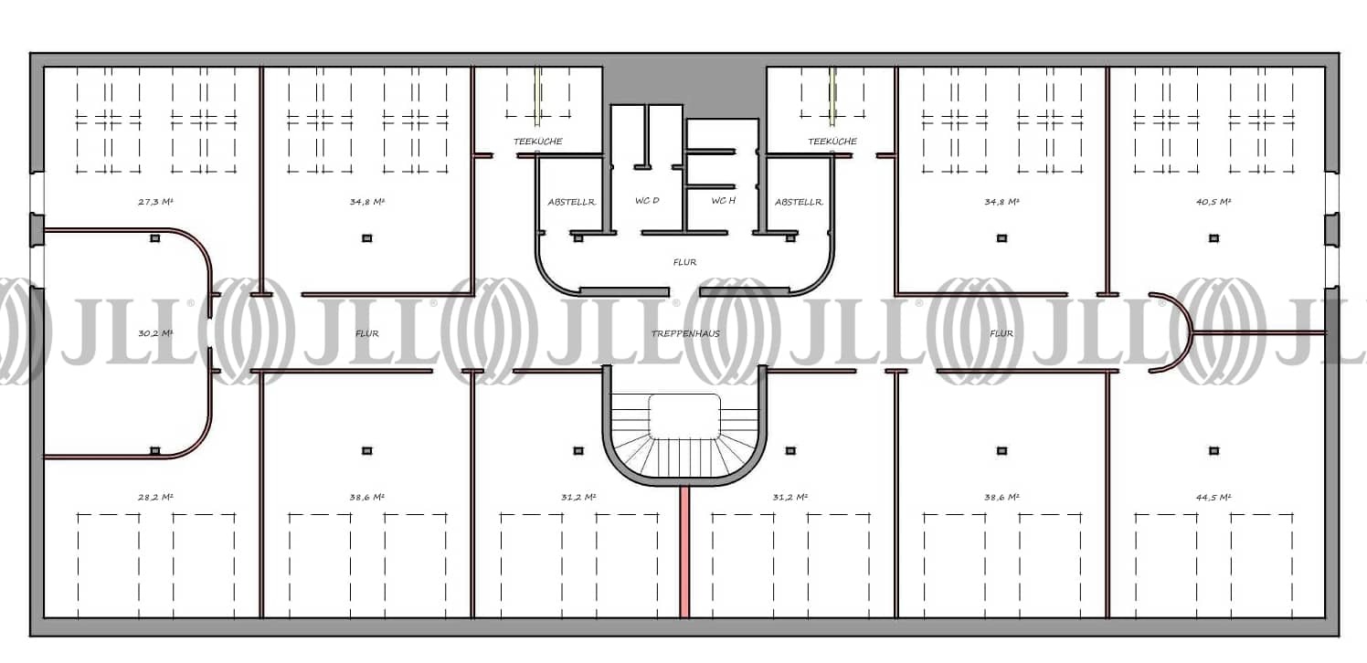
- Grundrisse
- Exposé herunterladen
- Ihr Kontakt
- Anfrage senden
Objekt
Der Rolshover Hof besteht aus dem zweigeschossigen Herrenhaus mit verputztem Backsteinmauerwerk aus dem Jahr 1875 sowie aus drei ehemals landwirtschaftlich genutzten Vorgängerbauten, dessen Ursprung im Jahr 1803 bezeugt wurde. Die mittlerweile denkmalgeschützte Hofanlage, welche im Mittelalter von Hufnern und später von Zinsbauern bewirtschaftet wurde, bietet heute einen idyllischen Ort zum Arbeiten und Entspannen, mitten in der Großstadt. Die vollständig denkmalschutzgetreue Sanierung im Jahr 1994 ließ die historische Hofanlage zu einem repräsentativen und hochattraktiven Ensemble mit zeitgemäß ausgestatteten Büroflächen werden. Trotz der Sanierungsarbeiten ist die historische Gebäudestruktur, das Kopfsteinpflaster und der Torbogen erhalten geblieben. Die begrünten Flächen im Innenhof und die Parkanlage drum herum verleihen den einzelnen Gebäudekörpern einen einzigartigen Flair. Bisher haben sich im Rolshover Hof bereits ein Reha- und ein Arztzentrum niedergelassen.
Verfügbare Fläche
Lage und Verkehrsanbindung
Der Rolshover Hof liegt äußerst verkehrsgünstig nahe der A4. Die Haltestelle der Linie 7 ist innerhalb weniger Gehminuten erreichbar und bietet eine direkte Bahnverbindung in die Kölner Innenstadt. Nette Restaurants für den Kundenbesuch finden Sie auf der nahegelegenen Siegburger Straße, ein breit gefächertes Service- und Handelsangebot sowie vielfältige Systemgastronomie für die Mittagspause sind im nahen Poller Gewerbegebiet zu finden. Eine Tankstelle befindet sich in der Nähe. Dienstleister des täglichen Bedarfs befinden sich in der Nähe.
- Flughafen, Köln/Bonn, Fahrzeit: 7 min
- Bundesautobahn, A 4, Fahrzeit: 4 min
- Bundesautobahn, A 559, Fahrzeit: 3 min
- Bus, Poller Holzweg, 159, Gehzeit: 2 min
- Hauptbahnhof, Köln, Fahrzeit: 8 min
- Straßenbahn/Tram, Salmstraße, 7, Gehzeit: 7 min
Ihr Kontakt

Julius Heid
Ihr Kontakt












