Büros
ID K0268Provisionsfrei
Büroimmobilie - Köln, Humboldt-Gremberg - K0268
Humboldt-Gremberg, 51105, Köln, Nordrhein-Westfalen
15,50 € / m²
- Fläche695 - 2.157 m²
- VerfügbarkeitSofort
- Objekt
- Ausstattung
- Lage und Verkehrsanbindung
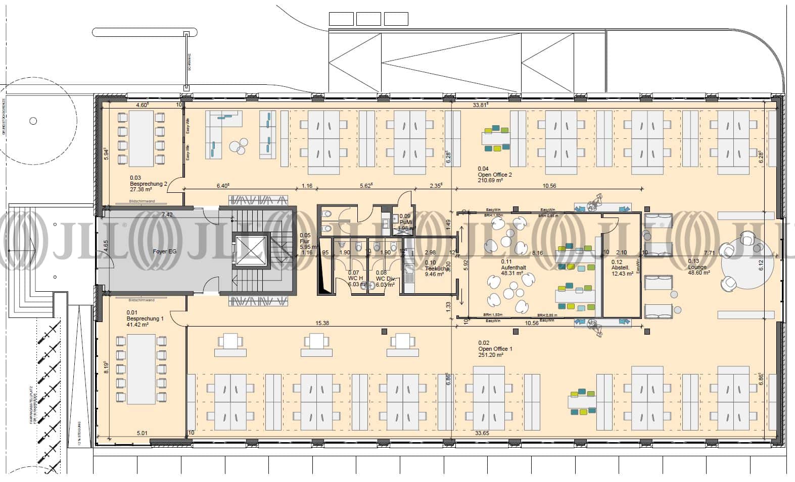
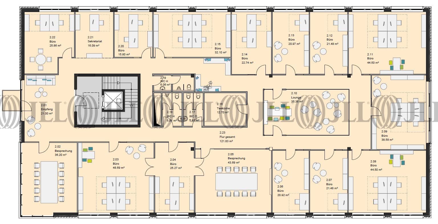
- Grundrisse
- Exposé herunterladen
- Ihr Kontakt
- Anfrage senden
Objekt
Das funktionale Gebäude bietet effiziente und kommunikative Büroflächen, welche flexibel und individuell gestaltet werden können. Die Räumlichkeiten eignen sich gut sowohl für Großraumlösungen als auch für Zellenbüros. Nach der Renovierung präsentieren sich die Einheiten in modernem Zustand mit bodentiefen Fenstern, die für gute Lichtverhältnisse sorgen. Zusätzlich stehen Außenstellplätze zur Verfügung.
Zertifizierungen
Energieausweis
Für diese Liegenschaft liegt ein Bedarfsausweis vom 30.04.2014 vom Eigentümer/Vermieter vor. Der wesentliche Energieträger der Liegenschaft ist Strom. Endenergiebedarf: 77.30000 kWh/(m²*a)Verfügbare Fläche
Lage und Verkehrsanbindung
Das Objekt liegt im rechtsrheinischen Stadtteil Köln Humboldt-Gremberg. Vor allem das nahe gelegene Einkaufszentrum Köln Arcaden und die Kalker Hauptstraße decken nahezu den kompletten Einzelhandelsbedarf und bieten ein reichhaltiges gastronomisches Angebot. Die schnelle Verkehrsanbindung an das überregionale Straßennetz gewährleistet ein rasches und bequemes Erreichen aller regionalen und überregionalen Anschlüsse.
- Flughafen, Köln/Bonn, Fahrzeit: 17 min
- Bundesautobahn, A 3, Fahrzeit: 8 min
- Bundesautobahn, A 4, Fahrzeit: 6 min
- Bundesautobahn, A 59, Fahrzeit: 8 min
Ihr Kontakt

Michael Kusen
Ihr Kontakt