
Büros
ID K0241Büroimmobilie - Köln, Neustadt-Nord - K0241
Neustadt-Nord, 50668, Köln, Nordrhein-Westfalen
Provisionspflichtig: bei Anmietung 3 Netto-Monatsmieten zzgl. gesetzlicher Umsatzsteuer.** der Wert kann je nach Vertragslaufzeit variieren.
15 € - 24 € / m²
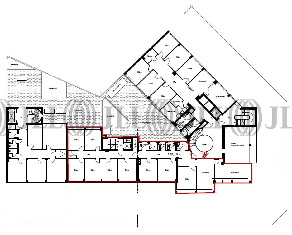
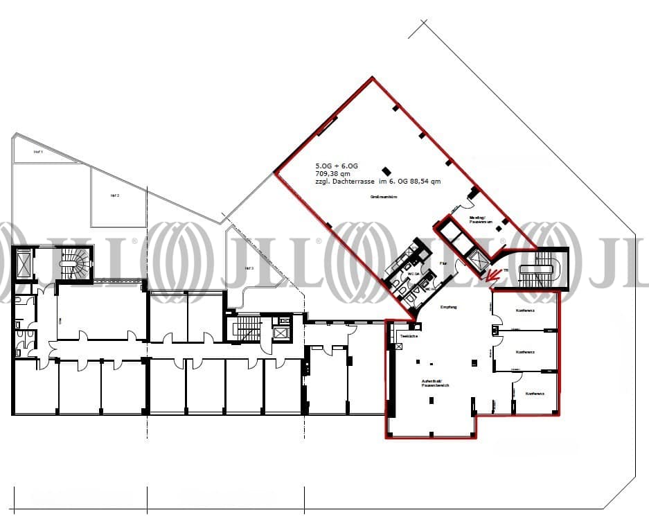
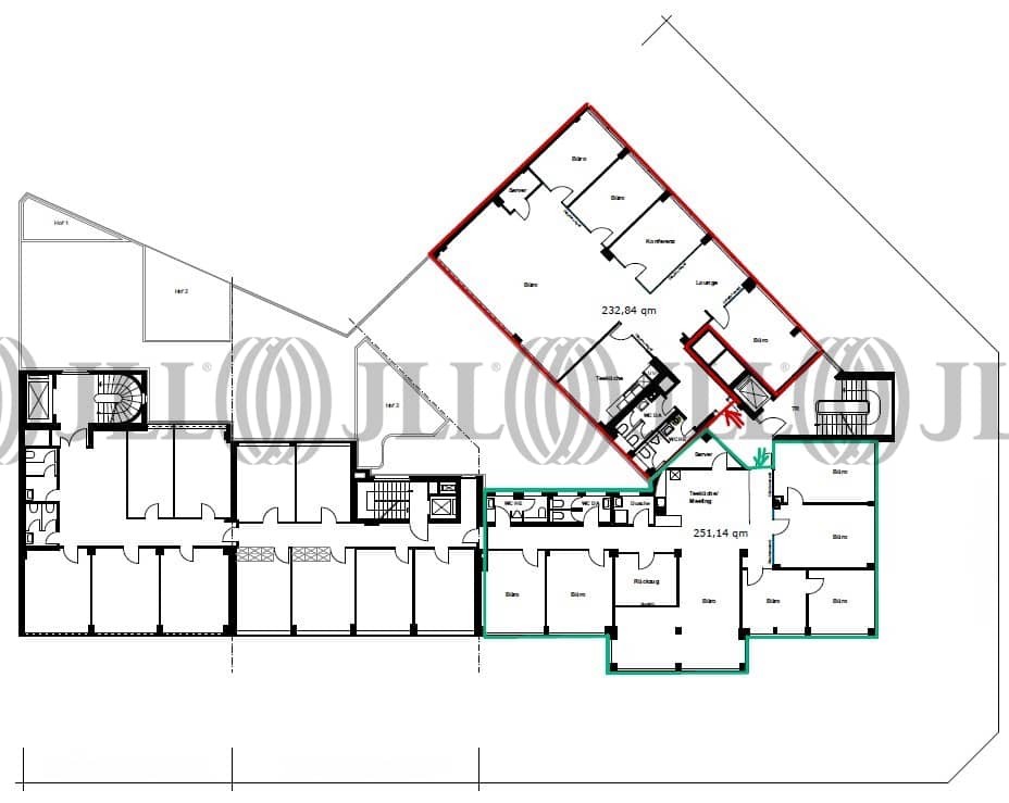
- Fläche175 - 2.847 m²
- VerfügbarkeitAuf Anfrage
- Objekt
- Ausstattung
- Lage und Verkehrsanbindung
- Grundrisse
- Exposé herunterladen
- Ihr Kontakt
- Anfrage senden
Objekt
Das Gebäude wurde im Jahr 2017 in großzügiger und repräsentativer Form umgestaltet und modernisiert. Das repräsentative Treppenhaus lädt Besucher ein und bietet im 1.Obergschoss eine kleine Meeting-Area die von allen Mietern des Hauses genutzt werden kann. Eine objekteigene Tiefgarage und Stellplätze um das Gebäude gewährleisten ein angenehmes Erreichen des Objekts.
Der Mietpreis enthält eine smarte Renovierung: Überarbeitung / Erneuerung Bodenbelag, Anstrich; im
EG (Hü4), 2.OG (R33) und 3.OG (R33) zusätzlich eine neue Sanitäreinrichtung. Lager verfügbar. Aktuell läuft eine umfangreiche Fassadensanierung, welche im März/April 2026 fertiggestellt sein wird.
Der Mietpreis enthält eine smarte Renovierung: Überarbeitung / Erneuerung Bodenbelag, Anstrich; im
EG (Hü4), 2.OG (R33) und 3.OG (R33) zusätzlich eine neue Sanitäreinrichtung. Lager verfügbar. Aktuell läuft eine umfangreiche Fassadensanierung, welche im März/April 2026 fertiggestellt sein wird.
Zertifizierungen
Energieausweis
Für diese Liegenschaft liegt ein Verbrauchsausweis vom 2020-11-04 vom Eigentümer/Vermieter vor. Die wesentlichen Energieträger der Liegenschaft sind Fernwärme,Strom. Der Endenergieverbrauch Strom beträgt 52.60 kWh/(m²*a). Der Endenergieverbrauch Wärme beträgt 112.40 kWh/(m²*a).Verfügbare Fläche
Lage und Verkehrsanbindung
Das Gebäude-Ensemble befindet sich in einer markanten und werbewirksamen Ecklage zwischen den Verkehrsknotenpunkten Ebertplatz und Reichenspergerplatz, in mitten des begehrten Agnesviertels. Zahlreiche Geschäfte des täglichen Bedarfs sowie Restaurants und Cafés liegen in unmittelbarer Nähe. Zudem lädt das nahegelegene Rheinufer zum Verweilen ein. Dienstleister des täglichen Bedarfs befinden sich in der Nähe.
- Flughafen, Köln/Bonn, Fahrzeit: 17 min
- Bundesautobahn, A 3, Fahrzeit: 7 min
- Hauptbahnhof, Köln, Fahrzeit: 7 min
- Bus, Reichensperger Platz Linien 127, 140, Gehzeit: 4 min
- Straßenbahn/Tram, Ebertplatz Linien 12, 14, 15, 16, 18, Gehzeit: 4 min
Ihr Kontakt

Angela Azzarito
Ihr Kontakt