Büros
ID K0236Büroimmobilie - Köln, Bayenthal - K0236
Bayenthal, 50968, Köln, Nordrhein-Westfalen
Provisionspflichtig: bei Anmietung 3 Netto-Monatsmieten zzgl. gesetzlicher Umsatzsteuer.** der Wert kann je nach Vertragslaufzeit variieren.
17,50 € / m²
- Fläche312 - 1.536 m²
- VerfügbarkeitSofort
- Objekt
- Ausstattung
- Lage und Verkehrsanbindung
- Grundrisse
- Exposé herunterladen
- Ihr Kontakt
- Anfrage senden
Objekt
Das sechsgeschossige Objekt besticht durch seine moderne Glas- und Spiegelfassade mit eleganten Natursteinsockeln in exponierter Ecklage. Das repräsentative Foyer am Haupteingang Bonner Straße vermittelt einen professionellen ersten Eindruck, während ein zusätzlicher Zugang über die Sechtemer Straße für optimale Erreichbarkeit sorgt. Drei Aufzüge gewährleisten den barrierefreien Zugang zu allen Geschosse. Die hauseigene Tiefgarage bietet ausreichend Stellplätze.
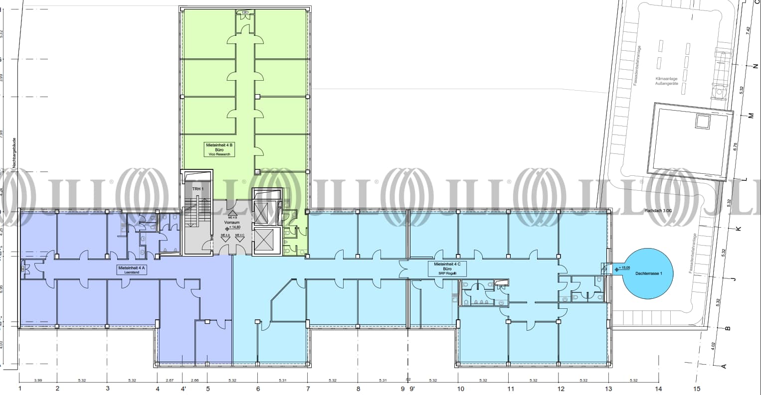
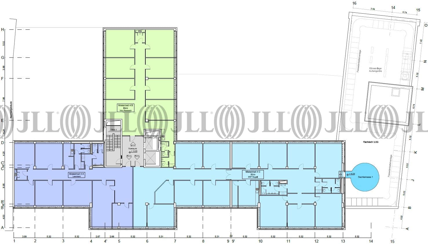
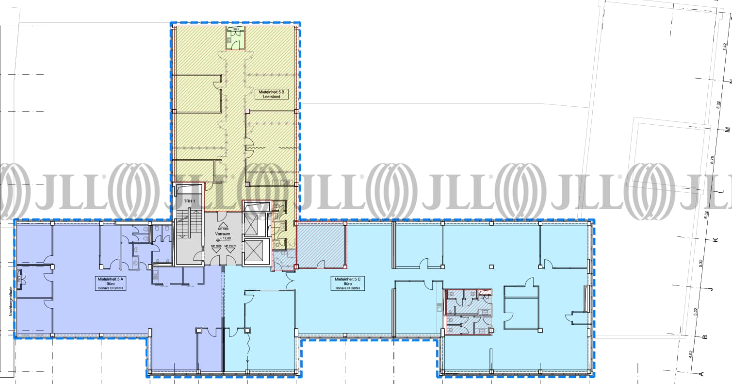
Verfügbare Fläche
Lage und Verkehrsanbindung
Die Immobilie befindet sich an der Schnittstelle der Kölner Stadtteile Bayenthal und Südstadt. Dieser Standort verbindet die ruhige, rheinnahe Atmosphäre von Bayenthal mit der urbanen Lebendigkeit der angrenzenden Südstadt, die für ihre vielfältige Gastronomie- und Kulturszene bekannt ist. Wichtige Anlaufpunkte wie der Chlodwigplatz sowie die Grünflächen am Rheinufer sind fußläufig erreichbar und bieten Mitarbeitern ein attraktives Umfeld für Pausen und nach Feierabend. Die Infrastruktur ist durch die direkte Anbindung an das KVB-Netz über die Bonner Straße sowie eine Vielzahl an Geschäften und Dienstleistern im direkten Umfeld sehr gut ausgebaut. Die Lage bietet somit eine ausgewogene Mischung aus hoher Lebensqualität und optimaler Erreichbarkeit für Mitarbeiter und Kunden.
- Flughafen, Köln/Bonn, Fahrzeit: 17 min
- Bundesautobahn, A 1, Fahrzeit: 12 min
- Bundesautobahn, A 3, Fahrzeit: 13 min
- Bundesautobahn, A 4, Fahrzeit: 5 min
- Bundesautobahn, A 555, Fahrzeit: 4 min
- Bus, Marktstraße Linien 132,133, Gehzeit: 2 min
- Straßenbahn/Tram, Schönhauser Straße Linien 16, 17, Gehzeit: 14 min
- Hauptbahnhof, Hauptbahnhof, Fahrzeit: 14 min
Ihr Kontakt

Michael Kusen
Ihr Kontakt




































