Büros
ID K0193Büroimmobilie - Köln, Bayenthal - K0193
Bayenthal, 50968, Köln, Nordrhein-Westfalen
Provisionspflichtig: bei Anmietung 3 Netto-Monatsmieten zzgl. gesetzlicher Umsatzsteuer.** der Wert kann je nach Vertragslaufzeit variieren.
13,13 € / m²
- Fläche800 - 1.600 m²
- VerfügbarkeitSofort
- Objekt
- Ausstattung
- Lage und Verkehrsanbindung
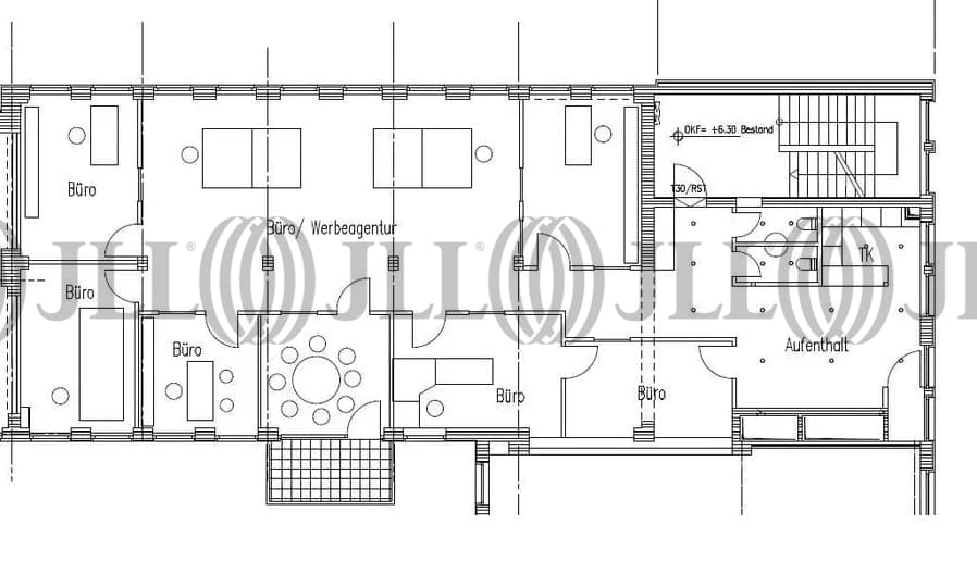
- Grundrisse
- Exposé herunterladen
- Ihr Kontakt
- Anfrage senden
Objekt
Das ehemalige Fabrikgebäude bietet hinter seiner Backsteinfassade individuell gestaltete Büro- oder Schulungsflächen. Über den großzügigen Innenhof gelangt man zu den einzelnen Gebäuden. Unterschiedliche Mieter wie Ärzte, Agenturen, klassische Büronutzer und ein Fitnessstudio haben sich angesiedelt. In einzelnen Bereichen ist eine Deckenhöhe von über 3,50m vorhanden, ideal zur Gestaltung der Loftbüros.
Zertifizierungen
Energieausweis
Für diese Liegenschaft liegt ein Bedarfsausweis vom 28.07.2022 vom Eigentümer/Vermieter vor. Der wesentliche Energieträger der Liegenschaft ist Gas. Endenergiebedarf: 166,3 kWh/(m²*a)Verfügbare Fläche
Lage und Verkehrsanbindung
Die Liegenschaft befindet sich im Kölner Stadtteil Bayenthal und gewährleistet einen raschen Anschluss an die Kölner Innenstadt und die umliegenden Autobahnen. Köln-Bayenthal gehört zu den bevorzugten Stadtteilen im Kölner Süden. Der Standort ist unter anderem durch den Kölner Großmarkt bekannt geworden und hat sich insbesondere in den letzten Jahren als eine der gefragtesten Büroadressen weiter entwickelt. Dienstleister des täglichen Bedarfs befinden sich in der Nähe.
- Hauptbahnhof, Köln Hbf, Fahrzeit: 16 min
- Straßenbahn/Tram, Bayenthalgürtel 16, 17, Gehzeit: 18 min
- Bus, Bonner Straße 132,133, Gehzeit: 6 min
- Bundesautobahn, A 4, Fahrzeit: 5 min
- Bundesautobahn, A 555, Fahrzeit: 5 min
- Flughafen, Köln/Bonn, Fahrzeit: 17 min
Ihr Kontakt

Angela Azzarito
Ihr Kontakt


















