Büros
ID K0181Provisionsfrei
Büroimmobilie - Köln, Junkersdorf - K0181
Junkersdorf, 50858, Köln, Nordrhein-Westfalen
7 € / m²
- Fläche350 - 1.323 m²
- VerfügbarkeitSofort
- Objekt
- Ausstattung
- Lage und Verkehrsanbindung
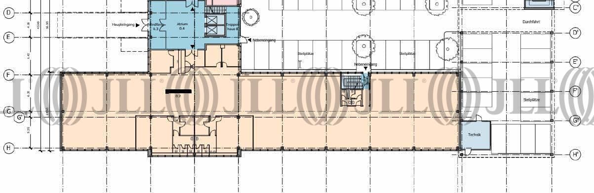
- Grundrisse
- Exposé herunterladen
- Ihr Kontakt
- Anfrage senden
Objekt
Das funktionale Gebäude bietet effiziente und kommunikative Büroflächen, welche individuell gestaltet werden können. Das 1990 erbaute Gebäude wurde laufend instand gehalten. Über den ansprechenden Eingangsbereich werden die einzelnen Gebäudeteile und Etagen angedient. Die Büroflächen werden modernisiert übergeben, daher können Mieterwünsche bezüglich Ausstattung und Raumaufteilung berücksichtigt werden.
Verfügbare Fläche
Lage und Verkehrsanbindung
Das Objekt liegt im Kölner Westen im Gewerbegebiet Köln-Marsdorf. Durch die unmittelbare Nähe zum Autobahnkreuz Köln-West und somit zum Kölner Autobahnring besteht eine optimale Anbindung an das überregionale Verkehrsnetz. Über die Dürener Straße erreicht man bequem die Kölner Innenstadt. Die umliegenden Stadtteile Junkersdorf, Weiden, Lövenich, Marsdorf und Müngersdorf sowie die nahe Stadt Frechen sind beliebte Wohnadressen. Hier findet sich ein üppiges Angebot an Restaurants, Cafés, Geschäften und Hotels. Eine Tankstelle befindet sich in der Nähe. Dienstleister des täglichen Bedarfs befinden sich in der Nähe.
- Hauptbahnhof, Hauptbahnhof, Fahrzeit: 22 min
- Bus, Max-Planck-Straße Nord, Linie 143, Gehzeit: 2 min
- Bundesautobahn, A 1, Fahrzeit: 4 min
- Bundesautobahn, A 3, Fahrzeit: 14 min
- Bundesautobahn, A 4, Fahrzeit: 4 min
- Flughafen, Köln/Bonn, Fahrzeit: 17 min
Ihr Kontakt

Julius Heid
Ihr Kontakt







