Büros
ID K0175Provisionsfrei
Büroimmobilie - Köln, Neustadt-Süd - K0175
Neustadt-Süd, 50674, Köln, Nordrhein-Westfalen
20 € / m²
- Fläche451 - 903 m²
- VerfügbarkeitSofort
- Objekt
- Ausstattung
- Lage und Verkehrsanbindung
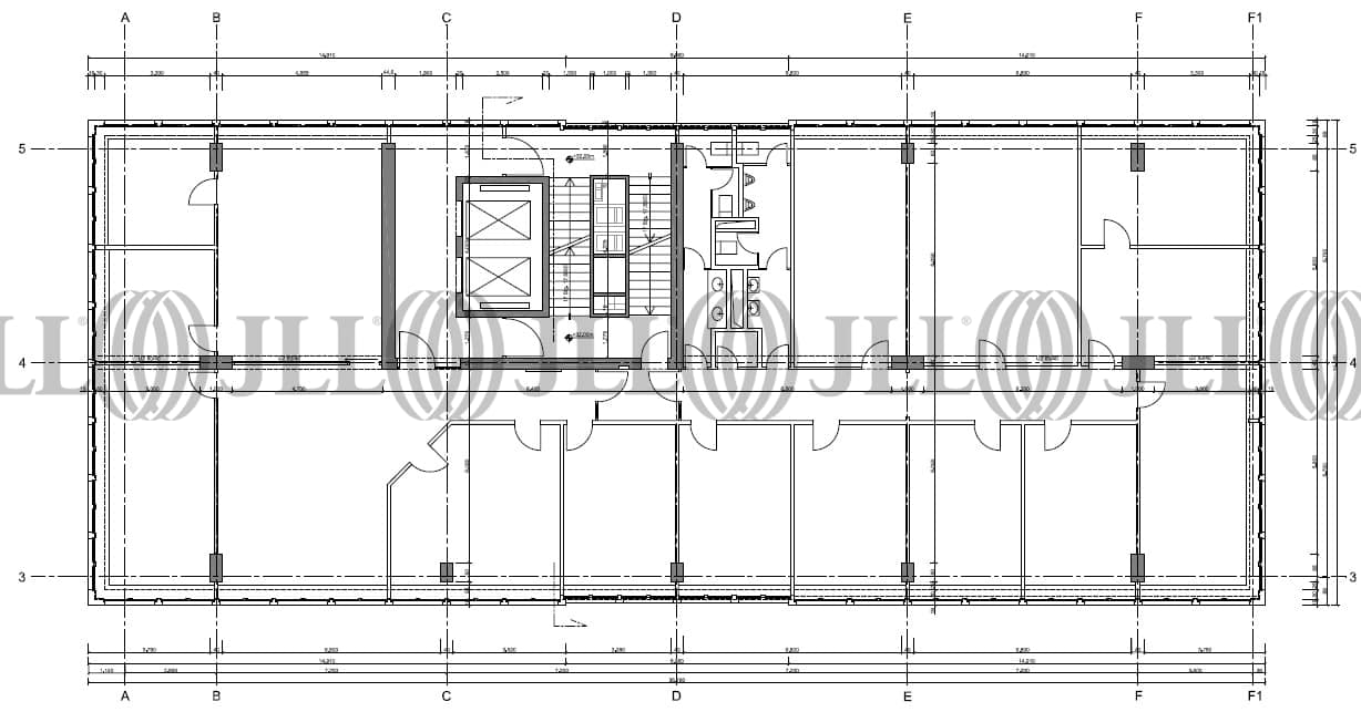
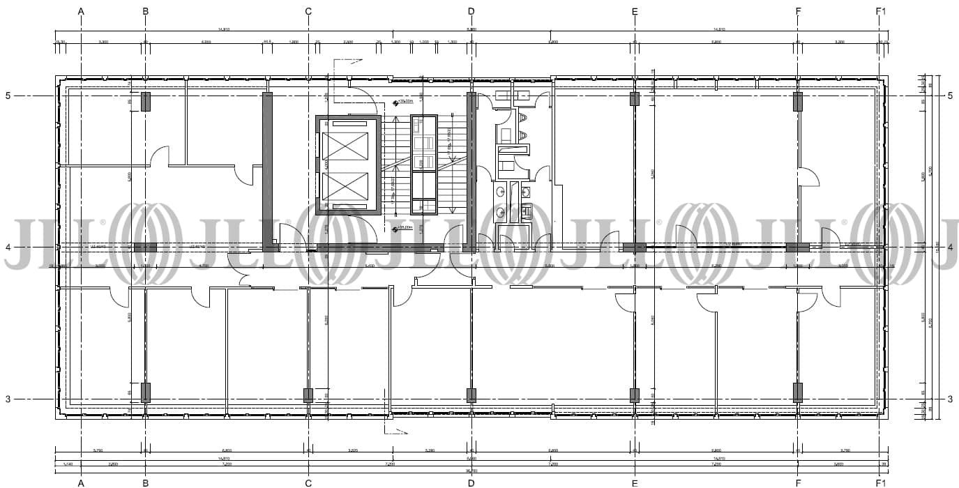
- Grundrisse
- Exposé herunterladen
- Ihr Kontakt
- Anfrage senden
Objekt
Das 13-geschossige Bürogebäude mit der modernen Aluminiumfassade wurde in den vergangenen Jahren aufwändig saniert. Im Erdgeschoss befindet sich ein Supermarkt und im 1. Obergeschoss ein Fitness-Studio. Vom repräsentativen Foyer aus erreicht man über einen zentralen Erschließungskern die Büroetagen. Der Ausstattungs-Standard entspricht dem heutigen Anspruch an eine moderne und flexible Büronutzung. Von den oberen Etagen aus hat man einen schönen Blick über Köln.
Zertifizierungen
Energieausweis
Für diese Liegenschaft liegt ein Verbrauchsausweis vom 2010-02-09 vom Eigentümer/Vermieter vor. Die wesentlichen Energieträger der Liegenschaft sind Nahwärme,Heizwerk, fossil,Fernwärme. Der Endenergieverbrauch Strom beträgt 140.30 kWh/(m²*a). Der Endenergieverbrauch Wärme beträgt 127.70 kWh/(m²*a).Verfügbare Fläche
Lage und Verkehrsanbindung
Das Objekt liegt in einer exponierten Ecklage direkt am Zülpicher Platz. Die zentrale Lage direkt an den Kölner Ringstraßen ermöglicht eine schnelle und bequeme Erreichbarkeit aller wichtigen lokalen und überregionalen Verkehrsanbindungen. Das Angebot an Geschäften, Restaurants, Cafés und Hotels in der direkten Umgebung lässt keine Wünsche offen. Dienstleister des täglichen Bedarfs befinden sich in der Nähe.
- Flughafen, Köln/Bonn, Fahrzeit: 17 min
- Bundesautobahn, A 4, Fahrzeit: 15 min
- Bundesautobahn, A 3, Fahrzeit: 13 min
- Bundesautobahn, A 1, Fahrzeit: 10 min
- Bundesautobahn, A 57, Fahrzeit: 5 min
Ihr Kontakt
Vermietungsteam
Ihr Kontakt


















