Büros
ID K0155Büroimmobilie - Köln, Mülheim - K0155
Mülheim, 51063, Köln, Nordrhein-Westfalen
Provisionspflichtig: bei Anmietung 3 Netto-Monatsmieten zzgl. gesetzlicher Umsatzsteuer.** der Wert kann je nach Vertragslaufzeit variieren.
15,50 € / m²
- Fläche765 m²
- VerfügbarkeitSofort
- Objekt
- Ausstattung
- Lage und Verkehrsanbindung
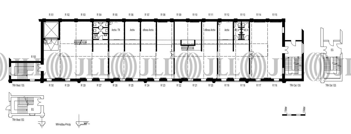
- Grundriss
- Exposé herunterladen
- Ihr Kontakt
- Anfrage senden
Objekt
Die Schanzenstraße hat sich in den vergangenen Jahren zu einem hervorragenden Bürostandort entwickelt. Der Mix aus modernen Bürogebäuden sowie Bürolofts erfreut sich bei Unternehmen aus verschiedensten Branchen großer Beliebtheit. Bei den zur Verfügung stehenden Flächen handelt es sich um offene und kommunikative Büroflächen, die modern ausgestattet sind.
Verfügbare Fläche
Lage und Verkehrsanbindung
Die Liegenschaft befindet sich im Kölner Stadtteil Mülheim. Die Lage des Objektes gewährleistet einen schnellen Anschluss an die Kölner Innenstadt und die umliegenden Autobahnen. Die Seiler Höfe bieten ein besonders kreatives Umfeld mit Medienproduktionen (u. a. Harald-Schmidt-Studio), Werbeagenturen, Architektenbüros sowie Unternehmen aus dem Bereich IT und Consulting aber auch Großunternehmen wie die Bayer AG.
- Hauptbahnhof, Köln, Fahrzeit: 16 min
- Bahnhof, Bf Mülheim RB48, RE1, RE5, S6, S11, Fahrzeit: 5 min
- Bus, Schanzenstraße Nord 150, Gehzeit: 3 min
- Bundesautobahn, A 3, Fahrzeit: 6 min
- Bundesautobahn, A 4, Fahrzeit: 8 min
- Flughafen, Köln/Bonn, Fahrzeit: 16 min
Ihr Kontakt

Bartosz Olszewski
Ihr Kontakt









