Büros
ID K0153Büroimmobilie - Köln, Altstadt-Süd - K0153
Altstadt-Süd, 50676, Köln, Nordrhein-Westfalen
Provisionspflichtig: bei Anmietung 3 Netto-Monatsmieten zzgl. gesetzlicher Umsatzsteuer.** der Wert kann je nach Vertragslaufzeit variieren.
14 € / m²
- Fläche263 - 1.034 m²
- VerfügbarkeitAuf Anfrage
- Objekt
- Ausstattung
- Lage und Verkehrsanbindung
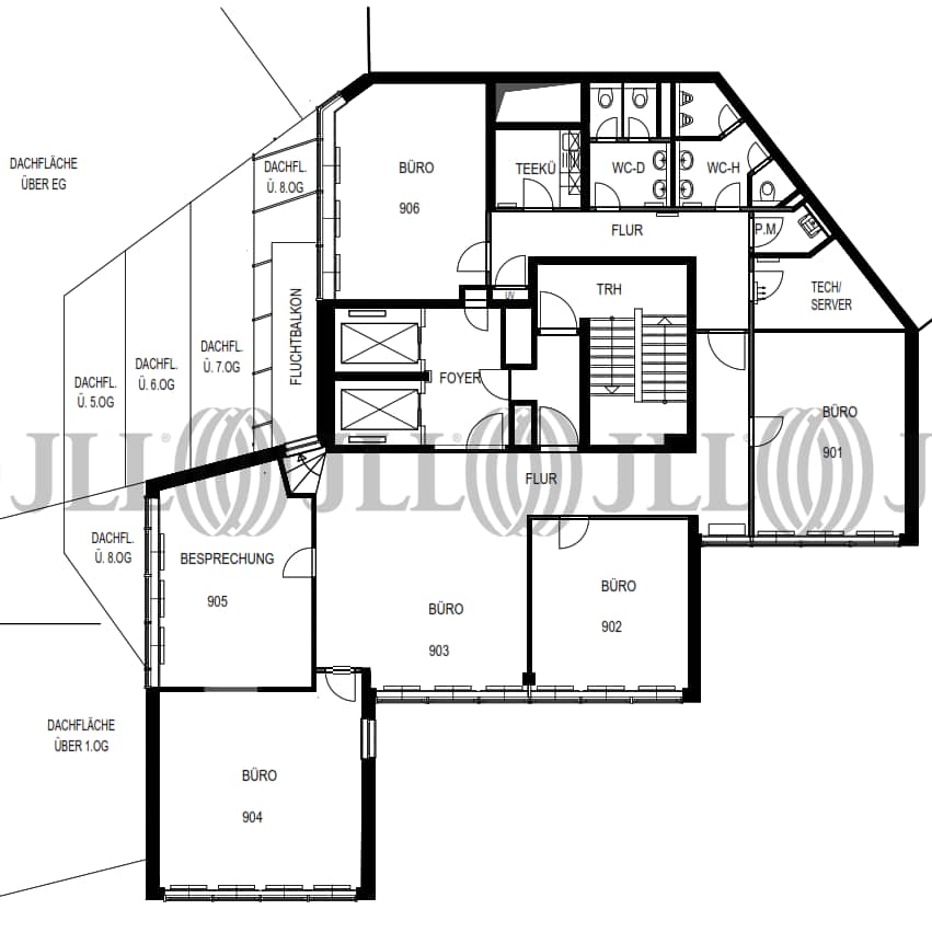
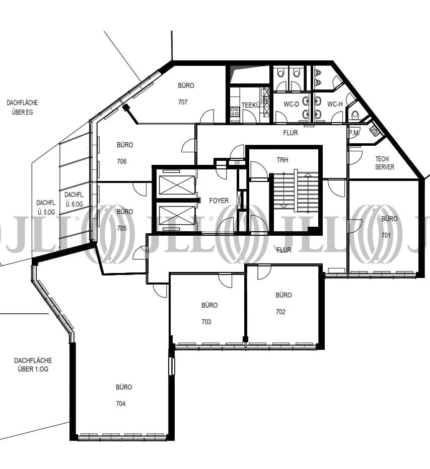
- Grundrisse
- Exposé herunterladen
- Ihr Kontakt
- Anfrage senden
Objekt
Das Objekt ist ein im Jahr 1991 erbautes Bürogebäude in 10-geschossiger Stahlbetonbauweise mit zwei Untergeschossen. Die beiden Untergeschosse werden als Tiefgarage und Technikbereich genutzt. Die Dachflächen sind als Flachdächer teilweise begrünt. Das Gebäude ist in verschiedenen Stufen aus verschieden hohen Gebäudeteilen erstellt, wobei der Baukörper eine unregelmäßige, eckige Form aufweist. Die Fassade ist teilweise als Natursteinfassade und teilweise als Glas- Aluminiumfassade ausgeführt. Das Objekt verfügt über einen Haupteingang mit Empfang, einen Nebeneingang, zwei Aufzüge, sowie ein separates Treppenhaus zur Tiefgarage. Das Objekt wurde seit 2016 saniert und entspricht somit den heutigen, technischen Anforderungen.
Zertifizierungen
Energieausweis
Für diese Liegenschaft liegt ein Bedarfsausweis vom 07.01.2010 vom Eigentümer/Vermieter vor. Die wesentlichen Energieträger der Liegenschaft sind Fernwärme, KWK. Endenergiebedarf: 195.00000 kWh/(m²*a)Verfügbare Fläche
Lage und Verkehrsanbindung
Das Objekt liegt in einer exponierten Lage direkt am Barbarossaplatz. Die zentrale Lage an den Kölner Ringstraßen ermöglicht ein schnelles und bequemes Erreichen aller wichtigen lokalen und überregionalen Verkehrsanbindungen. Das Angebot an Geschäften, Banken, Restaurants, Cafés und Hotels lässt keine Wünsche offen. Dienstleister des täglichen Bedarfs befinden sich in der Nähe.
- Flughafen, Köln/Bonn, Fahrzeit: 12 min
- Bundesautobahn, A 4, Fahrzeit: 8 min
- Bundesautobahn, A 57, Fahrzeit: 9 min
- Hauptbahnhof, Köln Hbf, Fahrzeit: 7 min
- Bus, Barbarossaplatz 978, Gehzeit: 2 min
- Straßenbahn/Tram, Barbarossaplatz 12, 15, 16, 18, 19, Gehzeit: 2 min
Ihr Kontakt

Michael Kusen
Ihr Kontakt

















