Büros
ID K0151Provisionsfrei
Büroimmobilie - Köln, Gremberghoven - K0151
Gremberghoven, 51149, Köln, Nordrhein-Westfalen
15 € / m²
- Fläche785 m²
- VerfügbarkeitSofort
- Objekt
- Ausstattung
- Lage und Verkehrsanbindung
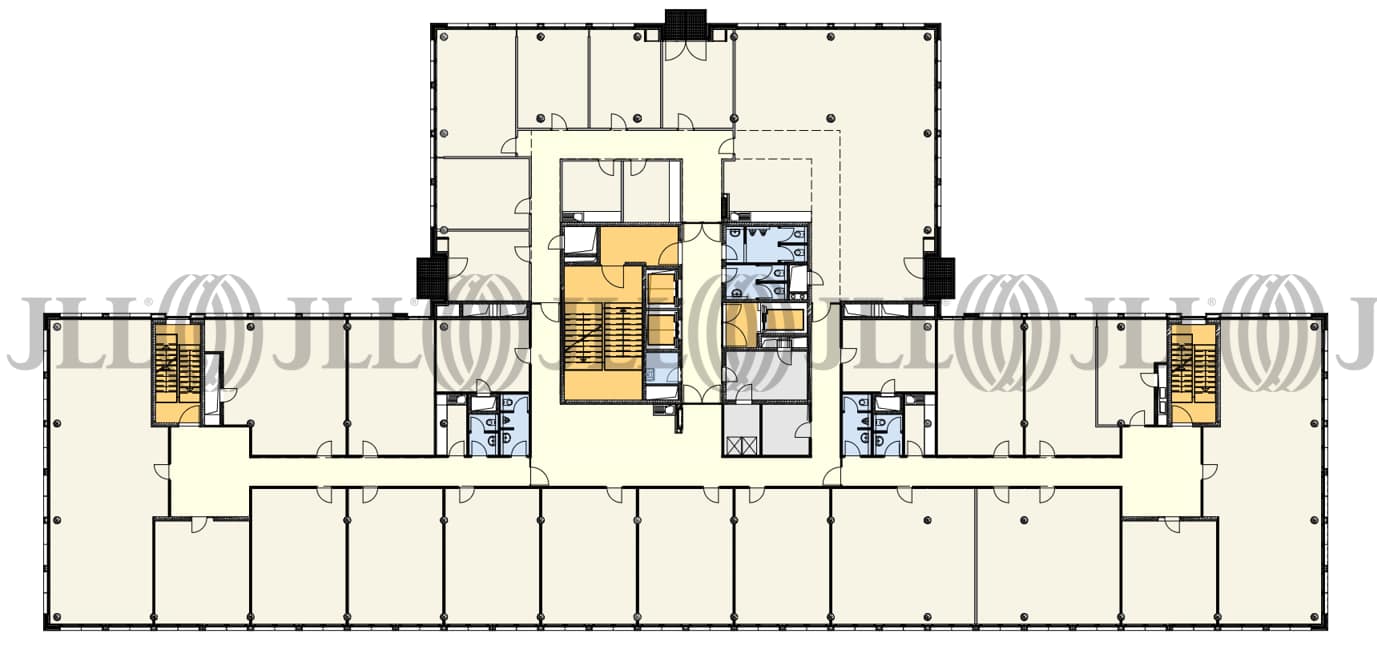
- Grundrisse
- Exposé herunterladen
- Ihr Kontakt
- Anfrage senden
Objekt
Das Objekt wurde in seiner äußeren Erscheinung und in seiner inneren Funktionalität den Bedürfnissen modernster Büro- und Konferenznutzung angepasst. Die unterschiedlichen Nutzflächen ermöglichen ein hohes Maß an Flexibilität, welche zudem über eine klimatisch und energetisch optimale Ausstattung verfügen, die dem neuesten Stand der Technik und dem Umweltbewusstsein entspricht.
Zertifizierungen
Energieausweis
BREEAM: Good LEED: CertifiedFür diese Liegenschaft liegt ein Verbrauchsausweis vom 08.02.2019 vom Eigentümer/Vermieter vor. Die wesentlichen Energieträger der Liegenschaft sind Erdgas leicht, Strom. Der Endenergieverbrauch Strom beträgt 98.10 kWh/(m²*a). Der Endenergieverbrauch Wärme beträgt 56.40 kWh/(m²*a).
Verfügbare Fläche
Lage und Verkehrsanbindung
Die Liegenschaft befindet sich im Kölner Stadtteil Porz / Gremberghoven und gewährleistet einen raschen Anschluss an den Flughafen Köln/Bonn sowie die umliegenden Autobahnen. Auch die Nähe zur Kölner Messe im ebenso bedeutendsten Stadtentwicklungsgebiet des rechtsrheinischen Köln lässt wie kaum ein zweiter Standort in Köln ihre Kunden von einem leistungsstarken Netzwerk profitieren.
- Flughafen, Köln/Bonn, Fahrzeit: 9 min
- Bundesautobahn, A 59, Fahrzeit: 5 min
- Bundesautobahn, A 3, Fahrzeit: 7 min
- Hauptbahnhof, Köln, Fahrzeit: 16 min
- Bahnhof, Frankfurter Straße RB25, S19, Gehzeit: 13 min
- Bus, Edmund-Rumpler-Straße 152, Fahrzeit: 10 min
Ihr Kontakt

Julius Heid
Ihr Kontakt















