Büros
ID K0132Büroimmobilie - Köln, Ehrenfeld - K0132
Ehrenfeld, 50825, Köln, Nordrhein-Westfalen
Provisionspflichtig: bei Anmietung 3 Netto-Monatsmieten zzgl. gesetzlicher Umsatzsteuer.** der Wert kann je nach Vertragslaufzeit variieren.
18,42 € / m²
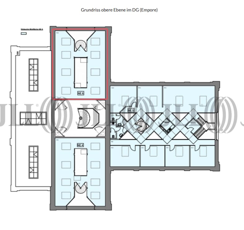
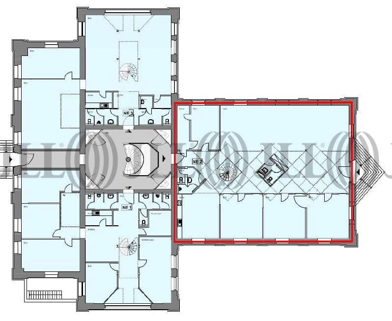
- Fläche310 - 934 m²
- VerfügbarkeitOktober 2026
- Objekt
- Ausstattung
- Lage und Verkehrsanbindung
- Grundrisse
- Exposé herunterladen
- Ihr Kontakt
- Anfrage senden
Objekt
Das denkmalgeschützte Gebäude mit repräsentativer Backsteinfassade beherbergt außergewöhnliche Büroflächen, die sich durch ihr kreatives und kommunikatives Raumkonzept deutlich von konventionellen Büroimmobilien abheben. Hochwertiger Parkettboden verleiht den Räumlichkeiten eine repräsentative Atmosphäre und unterstreicht das helle, einladende Raumambiente.
Verfügbare Fläche
Lage und Verkehrsanbindung
Das Objekt liegt im beliebten Kölner Stadtteil Ehrenfeld im westlichen Stadtgebiet. Der lebendige Stadtkern von Ehrenfeld mit seiner vielfältigen Einzelhandelslandschaft und attraktiven Gastronomie ist nordöstlich fußläufig erreichbar. Die unmittelbare Nähe zur Aachener Straße garantiert eine hervorragende Anbindung an die Kölner Innenstadt sowie alle überregionalen Verkehrsverbindungen. Die Infrastruktur überzeugt durch eine vollständige Nahversorgung mit Dienstleistern des täglichen Bedarfs, Einzelhandel und Tankstellen in unmittelbarer Umgebung.
- Flughafen, Köln/Bonn, Fahrzeit: 25 min
- Bundesautobahn, A 1, Fahrzeit: 10 min
- Bundesautobahn, A 4, Fahrzeit: 13 min
- Bundesautobahn, A 57, Fahrzeit: 6 min
- Bus, Bushaltestelle Köln Karevalsmuseum Buslinien 139, 140, 141, 143, Gehzeit: 4 min
Ihr Kontakt

Julius Heid
Ihr Kontakt


















