Büros
ID K0057Büroimmobilie - Köln, Neustadt-Süd - K0057
Neustadt-Süd, 50674, Köln, Nordrhein-Westfalen
Provisionspflichtig: bei Anmietung 3 Netto-Monatsmieten zzgl. gesetzlicher Umsatzsteuer.** der Wert kann je nach Vertragslaufzeit variieren.
23 € / m²
- Fläche321 - 738 m²
- VerfügbarkeitSofort
- Objekt
- Ausstattung
- Lage und Verkehrsanbindung
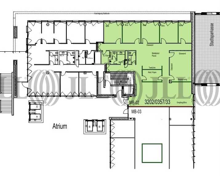
- Grundrisse
- Exposé herunterladen
- Ihr Kontakt
- Anfrage senden
Objekt
Das Bürogebäude ist ein architektonisches Highlight im Herzen Kölns. Das moderne Fassadensystem mit seinen raumhohen Fensterflächen sorgt für eine optimale Beleuchtung der Innenräume. Das gesamte Objekt verfügt bis ins Detail über eine qualitativ sehr hochwertige Ausstattung. Im Erdgeschoss befinden sich Einzelhandelsflächen. Über den repräsentativen Eingangsbereich gelangt man in das beeindruckende, mit Glas überdachte Atrium. Von hier aus erreicht man über acht Panoramaaufzüge die oberen Büroetagen. Der Ausstattungsstandard entspricht dem heutigen Anspruch an eine moderne und flexible Büronutzung.
Zertifizierungen
Energieausweis
Für diese Liegenschaft liegt ein Bedarfsausweis vom 2012-02-16 vom Eigentümer/Vermieter vor. Die wesentlichen Energieträger der Liegenschaft sind Fernwärme,Strom. Endenergiebedarf: 85.30000 kWh/(m²*a).Verfügbare Fläche
Lage und Verkehrsanbindung
Das Objekt liegt in einer exponierten Lage direkt am Kölner Rudolfplatz. Die zentrale Lage unmittelbar an den Kölner Ringstraßen ermöglicht ein schnelles und bequemes Erreichen aller wichtigen lokalen und überregionalen Verkehrsanbindungen. Ein üppiges Angebot an Geschäften, Restaurants, Cafés und Hotels rund um das Objekt lässt keine Wünsche offen. Dienstleister des täglichen Bedarfs befinden sich in der Nähe.
- Flughafen, Köln/Bonn, Fahrzeit: 17 min
- Bundesautobahn, A 1, Fahrzeit: 10 min
- Bundesautobahn, A 4, Fahrzeit: 10 min
- Bundesautobahn, A 57, Fahrzeit: 5 min
- Bus, Rudolfplatz, 136,146, Gehzeit: 1 min
Ihr Kontakt

Julius Heid
Ihr Kontakt


























