Büros
ID K0051Provisionsfrei
Büroimmobilie - Köln, Ossendorf - K0051
Ossendorf, 50829, Köln, Nordrhein-Westfalen
Kontaktieren Sie uns für den Preis
- Fläche395 - 5.983 m²
- VerfügbarkeitSofort
- Objekt
- Ausstattung
- Lage und Verkehrsanbindung
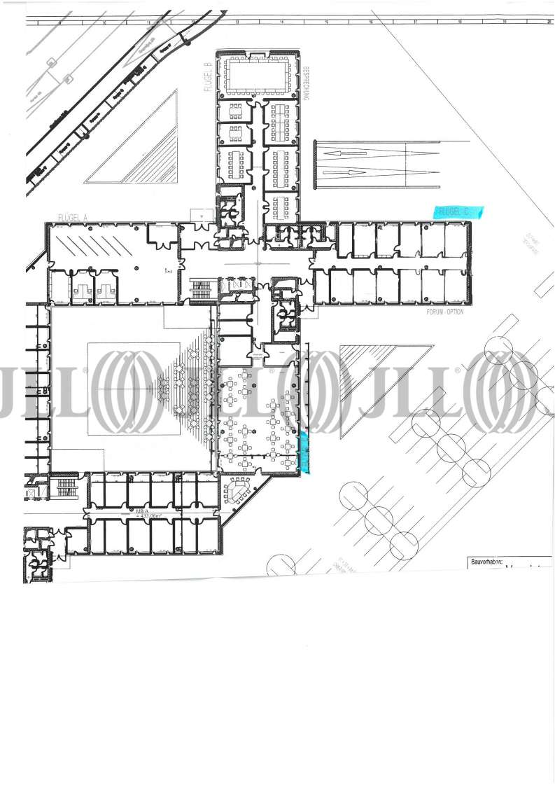
- Grundrisse
- Exposé herunterladen
- Ihr Kontakt
- Anfrage senden
Objekt
Das Gebäude bietet eine anspruchsvolle Architektur mit viel Glas und klaren, offenen Fassaden. Ein besonderes Merkmal sind die zwei über einen ruhigen, begrünten Innenhof verbundenen, sternförmigen Gebäudeeinheiten. Hier bieten sich viele Möglichkeiten einer individuellen Gestaltung und Nutzung der Büroflächen.
Zertifizierungen
Energieausweis
BREEAM: Very goodFür diese Liegenschaft liegt ein Verbrauchsausweis vom 21.08.2019 vom Eigentümer/Vermieter vor. Der wesentliche Energieträger der Liegenschaft ist Fernwärme. Der Endenergieverbrauch Strom beträgt 48 kWh/(m²*a). Der Endenergieverbrauch Wärme beträgt 56 kWh/(m²*a).
Verfügbare Fläche
Lage und Verkehrsanbindung
Das Objekt, gelegen in dem modernen Gewerbegebiet „Am Butzweilerhof“, überzeugt durch seine ansprechende Architektur. Es ist über die Anschlussstellen Bickendorf, Longerich und Bocklemünd in den Kölner Autobahnring eingebunden. Über die Stadtautobahn A 57 erreicht man schnell und bequem das Stadtzentrum. Der Weg in das Viertel Ehrenfeld mit seinem reichhaltigen Angebot an Geschäften und Gastronomie dauert nur wenige Minuten.
- Flughafen, Köln/Bonn, Fahrzeit: 24 min
- Bundesautobahn, A 57, Fahrzeit: 3 min
- Bundesautobahn, A 1, Fahrzeit: 5 min
- Hauptbahnhof, Köln, Fahrzeit: 12 min
- Straßenbahn/Tram, Sparkasse am Butzweilerhof 5, Gehzeit: 1 min
- Bus, Sparkasse am Butzweilerhof 139, Gehzeit: 1 min
Ihr Kontakt

Martin Vass
Ihr Kontakt
















