Büros
ID K0043Provisionsfrei
Büroimmobilie - Köln, Ossendorf - K0043
Ossendorf, 50829, Köln, Nordrhein-Westfalen
14 € / m²
- Fläche410 - 3.315 m²
- VerfügbarkeitSofort
- Objekt
- Ausstattung
- Lage und Verkehrsanbindung
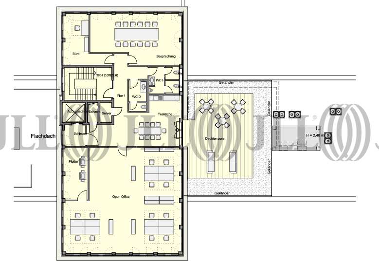
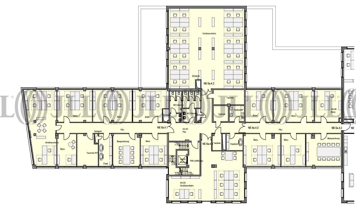
- Grundrisse
- Exposé herunterladen
- Ihr Kontakt
- Anfrage senden
Objekt
Der repräsentative und barrierefreie Eingangsbereich empfängt Sie mit einem großzügigen, hellen und modernen Ambiente. Von hier aus gelangen Sie bequem per Aufzug zu den Büroflächen, die sich flexibel für unterschiedliche Raumkonzepte gestalten lassen. Jede Mieteinheit ist mit getrennten WC-Anlagen ausgestattet und verfügt über Anschlüsse zur Installation einer Pantry.
Im Erdgeschoss stehen hochwertig ausgestattete Besprechungsräume bereit, die bei Bedarf über ein zentrales System hinzugebucht werden können. Ein hauseigenes Restaurant rundet das Serviceangebot für die Nutzer des Gebäudes ab.
Für Pendler stehen im Untergeschoss ein geräumiger Fahrradkeller mit Duschen und Umkleiden sowie ein Parkhaus direkt auf dem Grundstück zur Verfügung. Das gesamte Gebäude wurde 2023 umfassend modernisiert und befindet sich in einem sehr guten und gepflegten Zustand.
Im Erdgeschoss stehen hochwertig ausgestattete Besprechungsräume bereit, die bei Bedarf über ein zentrales System hinzugebucht werden können. Ein hauseigenes Restaurant rundet das Serviceangebot für die Nutzer des Gebäudes ab.
Für Pendler stehen im Untergeschoss ein geräumiger Fahrradkeller mit Duschen und Umkleiden sowie ein Parkhaus direkt auf dem Grundstück zur Verfügung. Das gesamte Gebäude wurde 2023 umfassend modernisiert und befindet sich in einem sehr guten und gepflegten Zustand.
Zertifizierungen
Energieausweis
Für diese Liegenschaft liegt ein Verbrauchsausweis vom 13.01.2020 vom Eigentümer/Vermieter vor. Der wesentliche Energieträger der Liegenschaft ist Gas. Der Endenergieverbrauch Strom beträgt 395.00 kWh/(m²*a). Der Endenergieverbrauch Wärme beträgt 143.00 kWh/(m²*a).Verfügbare Fläche
Lage und Verkehrsanbindung
Das Objekt liegt im Gewerbegebiet Köln-Ossendorf, welches sich um das Medienviertel Am Coloneum als gefragter Bürostandort etabliert hat. Hier haben sich neben bekannten Film- und TV-Produktionsgesellschaften zahlreiche namhafte Unternehmen aus unterschiedlichsten Branchen angesiedelt. Das Objekt befindet sich in der Nähe des Autobahnkreuzes Köln-Nord und somit direkt am Kölner Autobahnring. Über die Stadtautobahn A 57 erreicht man schnell und bequem die Innenstadt. Die Anbindung mit Bus und Bahn an das Stadtzentrum und den Hauptbahnhof ist sehr gut. Geschäfte und Dienstleister des täglichen Bedarfs sowie Restaurants und Hotels befinden sich in unmittelbarer Nähe.
- Flughafen, Köln/Bonn, Fahrzeit: 25 min
- Bundesautobahn, A 1, Fahrzeit: 5 min
- Bundesautobahn, A 3, Fahrzeit: 11 min
- Bundesautobahn, A 4, Fahrzeit: 11 min
- Bundesautobahn, A 57, Fahrzeit: 5 min
- Bus, Bushaltestelle Sparkasse am Butzweiler Hof Buslinien 139, Gehzeit: 5 min
Ihr Kontakt

Michael Kusen
Ihr Kontakt



















