Büros
ID K0027Provisionsfrei
Aktualisiert
Büroimmobilie - Köln, Eil - K0027
Eil, 51145, Köln, Nordrhein-Westfalen
Kontaktieren Sie uns für den Preis
- Fläche220 - 2.748 m²
- VerfügbarkeitSofort
- Objekt
- Ausstattung
- Lage und Verkehrsanbindung
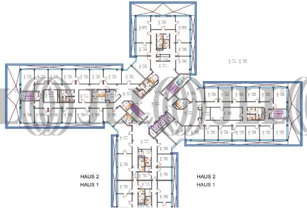
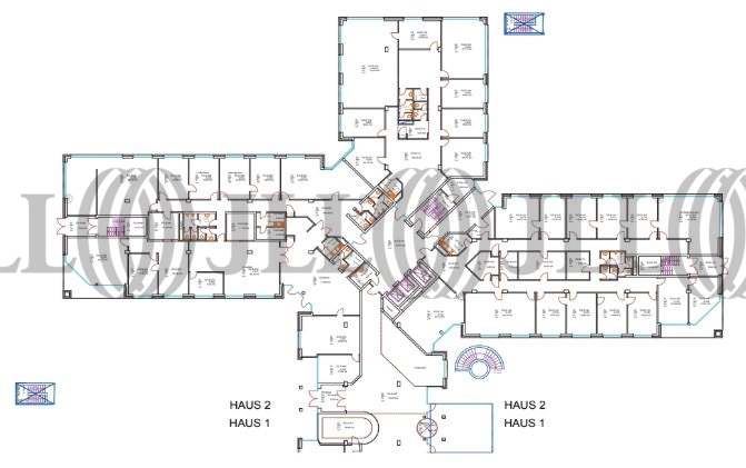
- Grundrisse
- Exposé herunterladen
- Ihr Kontakt
- Anfrage senden
Objekt
Das Sirius Office Center in Köln besteht aus zwei sechsgeschossigen Gebäuden, die miteinander verbunden sind. Die Büroflachen in Haus 2 werden vor Bezug in Abstimmung mit dem neuen Nutzer renoviert und ausgebaut. Große Fenster sorgen für lichtdurchflutete Räume, die den modernen Eindruck verstärken und für äußerst angenehmes Arbeiten sorgen. Das Office Center in Porz bietet eine große Auswahl unterschiedlichster Büroflächen.
Zertifizierungen
Energieausweis
Für diese Liegenschaft liegt ein Verbrauchsausweis vom 2009-08-04 vom Eigentümer/Vermieter vor. Der wesentliche Energieträger der Liegenschaft ist Erdgas schwer. Der Endenergieverbrauch Strom beträgt 14.50 kWh/(m²*a). Der Endenergieverbrauch Wärme beträgt 107.70 kWh/(m²*a).Verfügbare Fläche
Lage und Verkehrsanbindung
- Flughafen, Köln/Bonn, Fahrzeit: 6 min
- Bundesautobahn, A 3, Fahrzeit: 6 min
- Bundesautobahn, A 4, Fahrzeit: 5 min
- Bundesautobahn, A 59, Fahrzeit: 5 min
- Bus, Eil Heumarer Str., Linien 151, 152, 165, Gehzeit: 2 min
- Hauptbahnhof, Köln, Fahrzeit: 17 min
Ihr Kontakt

Michael Kusen
Ihr Kontakt
















