Büros
ID K0016Aktualisiert
Büroimmobilie - Köln, Lindenthal - K0016
Lindenthal, 50931, Köln, Nordrhein-Westfalen
Provisionspflichtig: bei Anmietung 3 Netto-Monatsmieten zzgl. gesetzlicher Umsatzsteuer.** der Wert kann je nach Vertragslaufzeit variieren.
13,50 € / m²
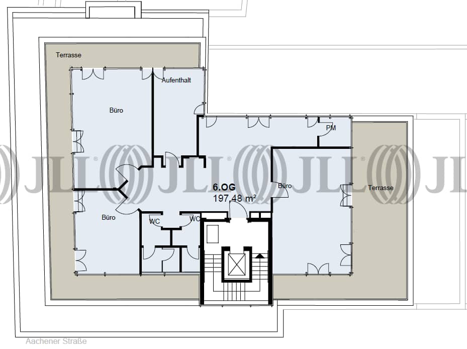
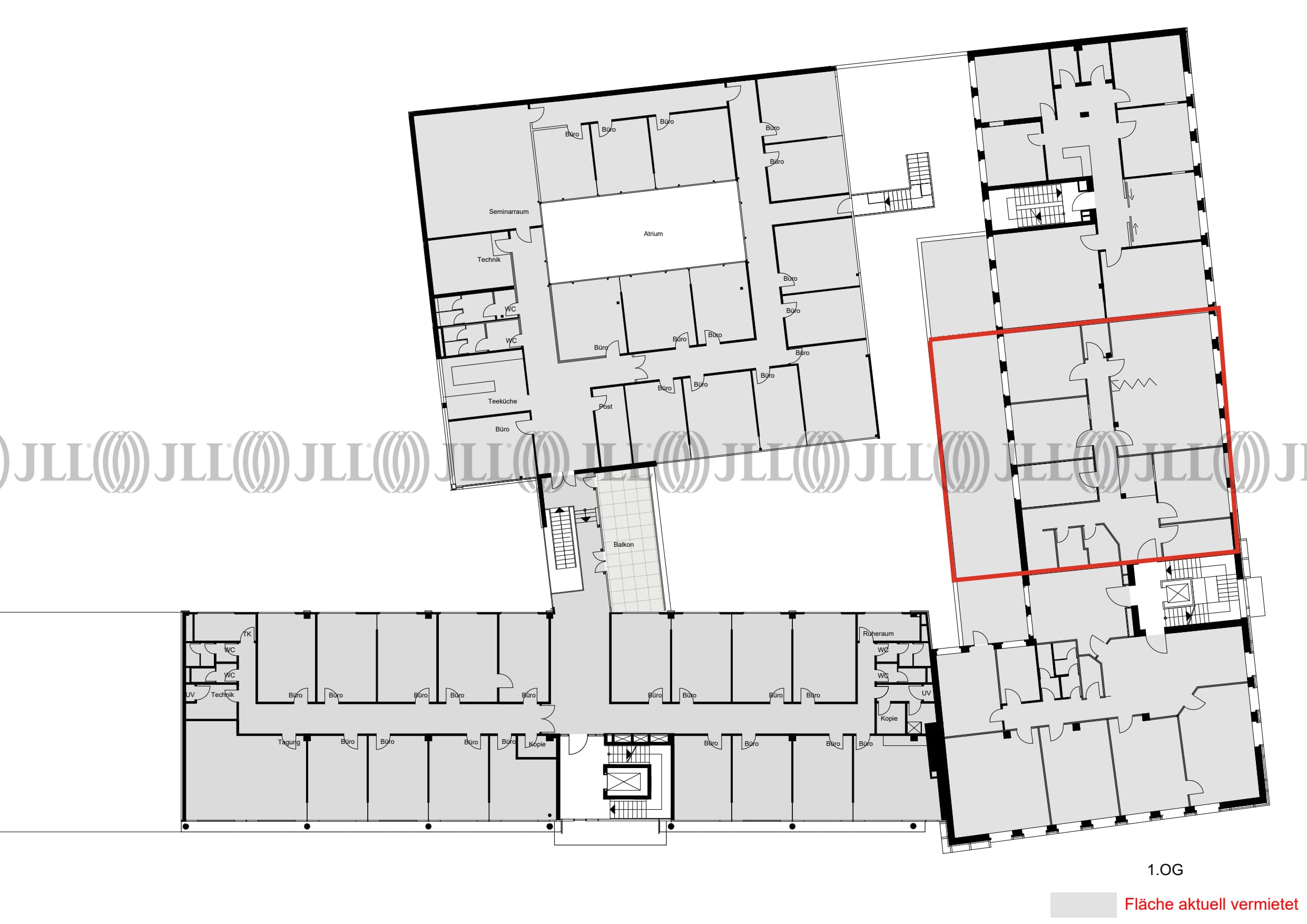
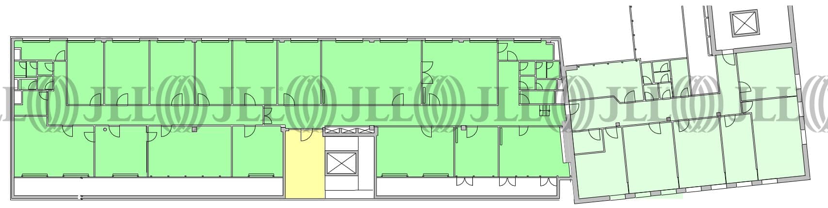
- Fläche220 - 2.486 m²
- VerfügbarkeitSofort
- Objekt
- Ausstattung
- Lage und Verkehrsanbindung
- Grundrisse
- Exposé herunterladen
- Ihr Kontakt
- Anfrage senden
Objekt
Das repräsentative Gebäude verfügt über eine äußerst ansprechende Fassade mit hellem und dunklem Naturstein, Aluminium und vielen Glaselementen. Über einen großzügigen Eingangsbereich werden die einzelnen Geschosse angedient. Die klare Architektur bietet effiziente Grundrisse und eine optimale Raumaufteilung. Der Ausstattungsstandard entspricht dem Anspruch an eine moderne Büronutzung.
Zertifizierungen
Energieausweis
Für diese Liegenschaft liegt ein Verbrauchsausweis vom 10.11.2020 vom Eigentümer/Vermieter vor. Die wesentlichen Energieträger der Liegenschaft sind Gas, Strom. Der Endenergieverbrauch Strom beträgt 15,3 kWh/(m²*a). Der Endenergieverbrauch Wärme beträgt 90,4 kWh/(m²*a).Verfügbare Fläche
Lage und Verkehrsanbindung
Die Liegenschaft befindet sich im Stadtteil Lindenthal in exponierter Lage, unweit der Kölner Innenstadt. Dieser Stadtbezirk bietet ein Nebeneinander von Wohnen und Gewerbe, die Aachener und Dürener Straße haben sich zudem als beliebte Einkaufsstraßen im Stadtteil etabliert. Nahe gelegene Parks und Grünanlagen wie der Stadtgarten und der Aachener Weiher bieten Raum zur Erholung und Entspannung. Die Anbindung an den öffentlichen, wie auch an den Individualverkehr ist hervorragend, in nur 5 Autominuten gelangt man in die Innenstadt und auch die umliegenden Autobahnen sind schnell und bequem zu erreichen. Eine Tankstelle befindet sich in der Nähe. Dienstleister des täglichen Bedarfs befinden sich in der Nähe.
- Hauptbahnhof, Köln, Fahrzeit: 12 min
- Straßenbahn/Tram, Universitätsstraße 1, 7, 9, Gehzeit: 1 min
- Bus, Universitätsstraße 109, 142, 172, 173, Gehzeit: 1 min
- Bundesautobahn, A 4, Fahrzeit: 5 min
- Bundesautobahn, A 57, Fahrzeit: 4 min
- Flughafen, Köln/Bonn, Fahrzeit: 17 min
Ihr Kontakt

Julius Heid
Ihr Kontakt
















