
Büros
ID H1922Provisionsfrei
Büroimmobilie - Hamburg, Horn - H1922
Horn, 22111, Hamburg, Hamburg
8 € / m²
- Fläche480 - 2.952 m²
- VerfügbarkeitSofort
- Objekt
- Ausstattung
- Lage und Verkehrsanbindung
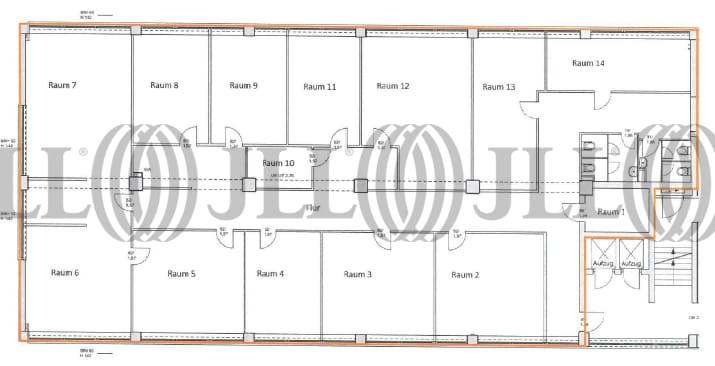
- Grundriss
- Exposé herunterladen
- Ihr Kontakt
- Anfrage senden
Objekt
Dieses 7-geschossige Büro- und Geschäftshaus wurde 2002 im Eingangsbereich und im Treppenhaus saniert.
Dieses Gebäude verfügt über einen Glasfasernetzanschluss. Die Raumaufteilung erfolgt in Abstimmung mit Mieter und Eigentümer.
Dieses Gebäude verfügt über einen Glasfasernetzanschluss. Die Raumaufteilung erfolgt in Abstimmung mit Mieter und Eigentümer.
Zertifizierungen
Energieausweis
Für diese Liegenschaft liegt ein Verbrauchsausweis vom 02.06.2014 vom Eigentümer/Vermieter vor. Der wesentliche Energieträger der Liegenschaft ist Fernwärme. Der Endenergieverbrauch Strom beträgt 3,00 kWh/(m²*a). Der Endenergieverbrauch Wärme beträgt 62,00 kWh/(m²*a).Verfügbare Fläche
Lage und Verkehrsanbindung
Dieses Objekt befindet sich im Stadtteil Horn und hat eine optimale Verkehrsanbindung.
- Flughafen, Hamburg, Fahrzeit: 25 min
- Bundesautobahn, A 1, Fahrzeit: 5 min
- Bundesautobahn, A 24, Fahrzeit: 5 min
- Bus, Bushaltestelle Horner Rampe Buslinien 31, 116, Gehzeit: 1 min
- U-Bahn, Horner Rennbahn, Gehzeit: 10 min
Ihr Kontakt

Philipp Bracke
Ihr Kontakt