Büros
ID H1917Provisionsfrei
Büroimmobilie - Hamburg, Neustadt - H1917
Alter Steinweg 1-3, Düsternstraße 18
Neustadt, 20459, Hamburg, Hamburg
27 € / m²
- Fläche374 m²
- VerfügbarkeitAuf Anfrage
- Objekt
- Ausstattung
- Lage und Verkehrsanbindung
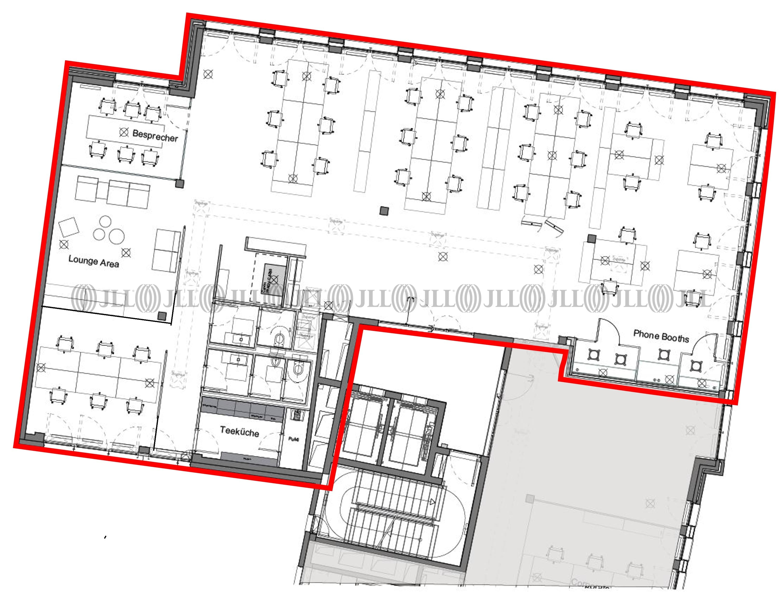
- Grundriss
- Exposé herunterladen
- Ihr Kontakt
- Anfrage senden
Objekt
Das Fleetinselkontor präsentiert sich als modernes Bürogebäude mit zeitgemäßer Architektur im Herzen Hamburgs. Die klassische Klinkerfassade verleiht dem 2017 fertiggestellten Objekt eine elegante und repräsentative Ausstrahlung, die typisch für die Hamburger Baukultur ist.
Mit einer Gesamtfläche von etwa 6.000 Quadratmetern bietet das Gebäude vielseitige Nutzungsmöglichkeiten für Büro- und Gewerbezwecke. Der großzügig gestaltete Eingangsbereich schafft einen einladenden ersten Eindruck und verfügt über zwei Aufzüge für eine komfortable Erschließung aller Etagen.
Die Innenraumgestaltung zeichnet sich durch durchdachte Details aus: Bodentiefe Fenster sorgen für optimale Tageslichtnutzung und schaffen eine helle, freundliche Arbeitsatmosphäre. Besonders hervorzuheben sind die hochwertigen Akustikelemente, darunter Deckensegel und Raumtrenner, die nicht nur zur Schalloptimierung beitragen, sondern auch gestalterische Akzente setzen. Diese Elemente ermöglichen flexible Raumaufteilungen und unterstützen moderne Arbeitskonzepte.
Mit einer Gesamtfläche von etwa 6.000 Quadratmetern bietet das Gebäude vielseitige Nutzungsmöglichkeiten für Büro- und Gewerbezwecke. Der großzügig gestaltete Eingangsbereich schafft einen einladenden ersten Eindruck und verfügt über zwei Aufzüge für eine komfortable Erschließung aller Etagen.
Die Innenraumgestaltung zeichnet sich durch durchdachte Details aus: Bodentiefe Fenster sorgen für optimale Tageslichtnutzung und schaffen eine helle, freundliche Arbeitsatmosphäre. Besonders hervorzuheben sind die hochwertigen Akustikelemente, darunter Deckensegel und Raumtrenner, die nicht nur zur Schalloptimierung beitragen, sondern auch gestalterische Akzente setzen. Diese Elemente ermöglichen flexible Raumaufteilungen und unterstützen moderne Arbeitskonzepte.
Verfügbare Fläche
Lage und Verkehrsanbindung
Zwischen dem Großneumarkt und der Fleetinsel befindet sich das attraktive Büro- und Gewerbeobjekt Fleetinselkontor im Stadtteil Neustadt. Durch die nahegelegene S-Bahnstation Stadthausbrücke und U-Bahnstation Rödingsmarkt U3 ist eine optimale Anbindung an die öffentlichen Verkehrsmittel gegeben. In nur wenigen Gehminuten sind die Einkaufsstraßen Neuer Wall und Hohe Bleichen sowie der Jungfernstieg zu erreichen und bieten eine Vielfalt von Einkaufsmöglichkeiten und diversen Ärzten. In den Stadthöfen und am Großneumarkt laden zahlreiche Restaurants für die Mittagspause zum Verweilen ein. Dienstleister des täglichen Bedarfs befinden sich in der Nähe.
Ihr Kontakt

Zainab Bo-Hamdan
Ihr Kontakt
Marktinformationen
Mietmarkt
Neustadt, Hamburg
siehe 28 passende MietobjekteErfahren Sie mehr
* Durchschnittspreis auf Grundlage historischer Transaktionen.








