Büros
ID H1885Büroimmobilie - Hamburg, Neustadt - H1885
Neustadt, 20459, Hamburg, Hamburg
Provisionspflichtig: bei Anmietung 3 Brutto-Monatsmieten zzgl. gesetzlicher Umsatzsteuer.** der Wert kann je nach Vertragslaufzeit variieren.
Kontaktieren Sie uns für den Preis
- Fläche1.308 - 3.936 m²
- VerfügbarkeitAuf Anfrage
- Objekt
- Ausstattung
- Lage und Verkehrsanbindung
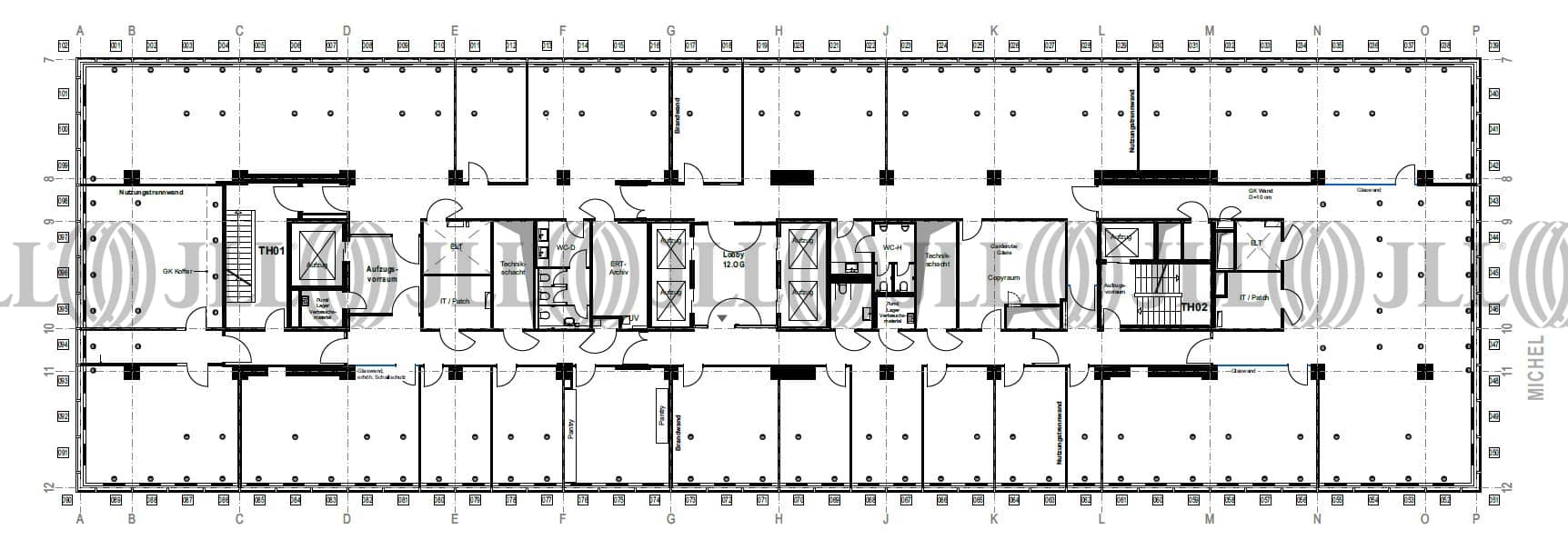
- Grundriss
- Exposé herunterladen
- Ihr Kontakt
- Anfrage senden
Zertifizierungen
Energieausweis
Für diese Liegenschaft liegt ein Bedarfsausweis vom 2018-03-21 vom Eigentümer/Vermieter vor. Die wesentlichen Energieträger der Liegenschaft sind Strom,Wärmelieferung. Der Endenergiebedarf Strom beträgt 82.10 kWh/(m²*a). Der Endenergiebedarf Wärme beträgt 138.80 kWh/(m²*a).Verfügbare Fläche
Lage und Verkehrsanbindung
- Flughafen, Hamburg, Fahrzeit: 28 min
- Bundesautobahn, A 1, Fahrzeit: 10 min
- Bundesautobahn, A 24, Fahrzeit: 15 min
- Bus, Bushaltestelle Michaeliskirche Buslinien 6, 37, Gehzeit: 1 min
Ihr Kontakt

Alexander Menke
Ihr Kontakt
Marktinformationen
Mietmarkt
Neustadt, Hamburg
siehe 21 passende MietobjekteErfahren Sie mehr
* Durchschnittspreis auf Grundlage historischer Transaktionen.





