Büros
ID H1868Provisionsfrei
Büroimmobilie - Wolfsburg, Wolfsburg - H1868
Wolfsburg, 38446, Wolfsburg, Niedersachsen
17,90 € / m²
- Fläche327 - 1.934 m²
- VerfügbarkeitSofort
- Objekt
- Ausstattung
- Lage und Verkehrsanbindung
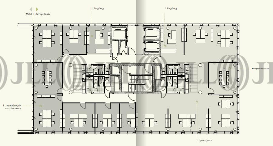
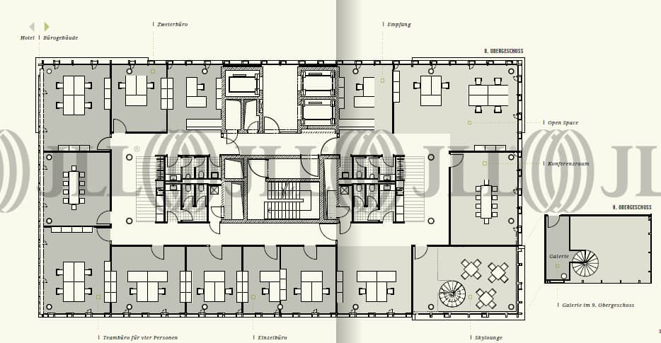
- Grundrisse
- Exposé herunterladen
- Ihr Kontakt
- Anfrage senden
Objekt
Im Herzen Wolfsburgs erhebt sich das BERLINERHAUS, ein wegweisendes Hybrid-Konzept, das die Skyline der Stadt neu definiert. Als höchster und modernster Officetower Wolfsburgs vereint dieses architektonische Meisterwerk einen State-of-the-Art Büroturm mit einem stylishen Design-Budget-Hotel.
Architektonische Highlights:
- Imposante Höhe von ca. 45 Metern mit 12 flexiblen Geschossen
- Lichtdurchflutetes, zweigeschossiges Foyer mit beeindruckender Höhe von ca. 7,80 Metern
- Drei exklusive, zweigeschossige Skylounges mit atemberaubenden Ausblicken
- Dachterrasse mit Panoramablick auf Innenstadt, VW-Werk, Stadion, Allerpark und AUTOSTADT
Erstklassige Lage:
- Zentraler Knotenpunkt zwischen Innenstadt, Designer Outlets und Hauptbahnhof
- Exklusive Vorfahrt mit Kurzzeitparkplätzen für einen repräsentativen Empfang
- Hochwertig gestaltete Freianlagen mit ansprechender Bepflanzung und hoher Aufenthaltsqualität
Zukunftsweisende Büroflächen:
- Freie Mietfläche von ca. 1.934 m² für Ihr Unternehmen
- Überdurchschnittliche Ausbauqualität mit flexiblen Ausbauvarianten (von Zellenbüro bis Open Space)
- Lichte Raumhöhe ab ca. 2,80 m für ein großzügiges Raumgefühl
- Standard-Ausbau-Achsraster von 1,45 m für optimale Flächennutzung
Komfort und Effizienz:
- Heiz-/Kühldeckensegel für perfekte klimatische und raumakustische Behaglichkeit
- Modernste Gebäudetechnik und Energieeffizienz
- Großzügige Fensterfronten für optimale Lichtverhältnisse
Zusätzliche Vorteile:
- Rund 100 Pkw-Stellplätze (ca. 80 auf den Parkdecks und ca. 20 im Außenbereich)
- Integriertes Design-Budget-Hotel mit ca. 260 Zimmern für Geschäftsreisende und Besucher
Projektdaten:
- Baubeginn: 2020
- Fertigstellung: 2022
- Modernster Neubau Wolfsburgs
Das BERLINERHAUS setzt neue Maßstäbe für die Arbeitswelt von morgen. Es bietet nicht nur erstklassige Büroflächen, sondern eine ganzheitliche Umgebung, die Innovation, Produktivität und Wohlbefinden fördert. Die Kombination aus flexiblen Arbeitsbereichen, exklusiven Lounges und der atemberaubenden Dachterrasse schafft eine einzigartige Atmosphäre für Kreativität und Erfolg.
Profitieren Sie von der perfekten Symbiose aus Lage, Architektur und Ausstattung im prestigeträchtigsten Büroturm Wolfsburgs. Mit seiner erst kürzlich erfolgten Fertigstellung im Jahr 2022 repräsentiert das BERLINERHAUS den Gipfel moderner Architektur und Funktionalität. Sichern Sie sich jetzt Ihre Premium-Bürofläche im BERLINERHAUS und positionieren Sie Ihr Unternehmen an der Spitze der Wolfsburger Geschäftswelt. Erleben Sie die Zukunft des Arbeitens in einer Umgebung, die Inspiration, Vernetzung und Erfolg vereint.
Architektonische Highlights:
- Imposante Höhe von ca. 45 Metern mit 12 flexiblen Geschossen
- Lichtdurchflutetes, zweigeschossiges Foyer mit beeindruckender Höhe von ca. 7,80 Metern
- Drei exklusive, zweigeschossige Skylounges mit atemberaubenden Ausblicken
- Dachterrasse mit Panoramablick auf Innenstadt, VW-Werk, Stadion, Allerpark und AUTOSTADT
Erstklassige Lage:
- Zentraler Knotenpunkt zwischen Innenstadt, Designer Outlets und Hauptbahnhof
- Exklusive Vorfahrt mit Kurzzeitparkplätzen für einen repräsentativen Empfang
- Hochwertig gestaltete Freianlagen mit ansprechender Bepflanzung und hoher Aufenthaltsqualität
Zukunftsweisende Büroflächen:
- Freie Mietfläche von ca. 1.934 m² für Ihr Unternehmen
- Überdurchschnittliche Ausbauqualität mit flexiblen Ausbauvarianten (von Zellenbüro bis Open Space)
- Lichte Raumhöhe ab ca. 2,80 m für ein großzügiges Raumgefühl
- Standard-Ausbau-Achsraster von 1,45 m für optimale Flächennutzung
Komfort und Effizienz:
- Heiz-/Kühldeckensegel für perfekte klimatische und raumakustische Behaglichkeit
- Modernste Gebäudetechnik und Energieeffizienz
- Großzügige Fensterfronten für optimale Lichtverhältnisse
Zusätzliche Vorteile:
- Rund 100 Pkw-Stellplätze (ca. 80 auf den Parkdecks und ca. 20 im Außenbereich)
- Integriertes Design-Budget-Hotel mit ca. 260 Zimmern für Geschäftsreisende und Besucher
Projektdaten:
- Baubeginn: 2020
- Fertigstellung: 2022
- Modernster Neubau Wolfsburgs
Das BERLINERHAUS setzt neue Maßstäbe für die Arbeitswelt von morgen. Es bietet nicht nur erstklassige Büroflächen, sondern eine ganzheitliche Umgebung, die Innovation, Produktivität und Wohlbefinden fördert. Die Kombination aus flexiblen Arbeitsbereichen, exklusiven Lounges und der atemberaubenden Dachterrasse schafft eine einzigartige Atmosphäre für Kreativität und Erfolg.
Profitieren Sie von der perfekten Symbiose aus Lage, Architektur und Ausstattung im prestigeträchtigsten Büroturm Wolfsburgs. Mit seiner erst kürzlich erfolgten Fertigstellung im Jahr 2022 repräsentiert das BERLINERHAUS den Gipfel moderner Architektur und Funktionalität. Sichern Sie sich jetzt Ihre Premium-Bürofläche im BERLINERHAUS und positionieren Sie Ihr Unternehmen an der Spitze der Wolfsburger Geschäftswelt. Erleben Sie die Zukunft des Arbeitens in einer Umgebung, die Inspiration, Vernetzung und Erfolg vereint.
Verfügbare Fläche
Lage und Verkehrsanbindung
Das BERLINERHAUS nimmt die "Poleposition" unter Wolfsburgs Businessstandorten ein und befindet sich im pulsierenden Herzen der Stadt. Seine strategische Lage an der Berliner Brücke macht es zum Dreh- und Angelpunkt des städtischen Lebens und der wirtschaftlichen Aktivitäten. In unmittelbarer Nähe finden sich die wichtigsten Wahrzeichen und Attraktionen Wolfsburgs: Volkswagen-Werk: Das weltgrößte Automobilwerk direkt vor der Tür - Hauptbahnhof: Nur 10 Gehminuten entfernt, optimale Anbindung - Designer Outlets: Exklusives Shopping in Reichweite - Science Center Phaeno: Wissenschaft zum Anfassen - AUTOSTADT: Erlebniswelt rund ums Automobil - Volkswagen Arena: Heimat des VfL Wolfsburg Die Lage verbindet Wirtschaft, Kultur und Mobilität auf ideale Weise. Das BERLINERHAUS bietet somit nicht nur erstklassige Büroflächen, sondern auch eine unschlagbare Positionierung im Zentrum aller wichtigen Aktivitäten der Stadt. Es ist der perfekte Standort für Unternehmen, die von Wolfsburgs dynamischem Umfeld und exzellenter Infrastruktur profitieren möchten. hat Kontextmenü Das Grundstück des BERLINERHAUSES befindet sich in exponierter Lage direkt an der Berliner Brücke. Mit dem PKW gelangt man minutenschnell auf die Autobahnen A39 und A2. Zieht es einen in die Ferne, erreicht man vom BERLINERHAUS aus den Flughafen Braunschweig-Wolfsburg in nur 25 Minuten.
- Flughafen, Hannover-Langenhagen, Fahrzeit: 60 min
- Flughafen, Berlin Brandenburg, Fahrzeit: 110 min
- Bundesautobahn, A 39, Fahrzeit: 10 min
- Bundesautobahn, A 2, Fahrzeit: 10 min
- Bus, Bushaltestelle Wolfsburg AUTOSTADT Buslinien 160,170,2021,202,211,213, Gehzeit: 5 min
Ihr Kontakt

Valentin Wiesemann
Ihr Kontakt






