Büros
ID H1822Provisionsfrei
Aktualisiert
Büroimmobilie - Hamburg, Neustadt - H1822
Neustadt, 20354, Hamburg, Hamburg
Kontaktieren Sie uns für den Preis
- Fläche285 m²
- VerfügbarkeitIV quartal 2026
- Objekt
- Ausstattung
- Lage und Verkehrsanbindung
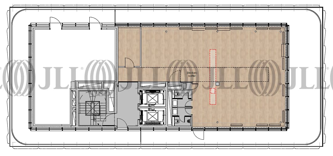
- Grundriss
- Exposé herunterladen
- Ihr Kontakt
- Anfrage senden
Objekt
Das Gebäude Esplace wurde 2017 fertiggestellt und verfügt insgesamt über 14 Geschosse. Mit insgesamt 1.600 m² verbautem Glas ist das DGNB-Gold zertifizierte Gebäude nicht nur ein echter Hin-, sondern auch Rausgucker. Der einmalige Blick auf Binnen- und Außenalster ist eines der absoluten Highlights, das nicht vielen Hamburgern gewährt wird.
Die Büroflächen verfügen über diverse Austattungsmerkmale wie elektischer, außenliegender Sonnenschutz, moderne Haustechnik, sowie eine Temperierung über Hybridmoduldecken. Das gesamte Gebäude wird automatisch be- und entlüftet, klimatisiert und ist mit Schallschutz ausgestattet.
Die Büroflächen verfügen über diverse Austattungsmerkmale wie elektischer, außenliegender Sonnenschutz, moderne Haustechnik, sowie eine Temperierung über Hybridmoduldecken. Das gesamte Gebäude wird automatisch be- und entlüftet, klimatisiert und ist mit Schallschutz ausgestattet.
Zertifizierungen
Energieausweis
DGNB: GoldVerfügbare Fläche
Lage und Verkehrsanbindung
Zwischen Außenalster und Binnenalster befindet sich das Gebäude von 2017 mit perfekter Verkehrsanbindung und Infrastruktur. Zahlreiche Geschäfte des täglichen Bedarfs sind in der naheliegenden Einkaufsstraße Colonnaden und auch Jungfernstieg zu erreichen. Diverse Restaurants und Cafés laden in der Mittagspause zum verweilen ein. Der Hauptbahnhof mit seinen Regional- und Intercity-Verbindungen ist nur 5 Fahrminuten entfernt, der Dammtorbahnhof ist fußläufig in 6 Minuten erreichbar. Eine Tankstelle befindet sich in der Nähe. Dienstleister des täglichen Bedarfs befinden sich in der Nähe.
- Flughafen, Hamburg, Fahrzeit: 23 min
- Bundesautobahn, A 1, Fahrzeit: 15 min
- Bundesautobahn, A 7, Fahrzeit: 18 min
- Bus, Stephansplatz, Gehzeit: 3 min
- U-Bahn, Stephansplatz, Gehzeit: 3 min
- Hauptbahnhof, Hauptbahnhof, Gehzeit: 10 min
Ihr Kontakt

Janina Voß
Ihr Kontakt
Marktinformationen
Mietmarkt
Neustadt, Hamburg
siehe 26 passende MietobjekteErfahren Sie mehr
* Durchschnittspreis auf Grundlage historischer Transaktionen.
















