Büros
ID H1801Provisionsfrei
Büroimmobilie - Bremen, Neustadt - H1801
Neustadt, 28199, Bremen, Bremen
13,50 € / m²
- Fläche1.900 - 11.400 m²
- VerfügbarkeitIV quartal 2026
- Objekt
- Ausstattung
- Lage und Verkehrsanbindung
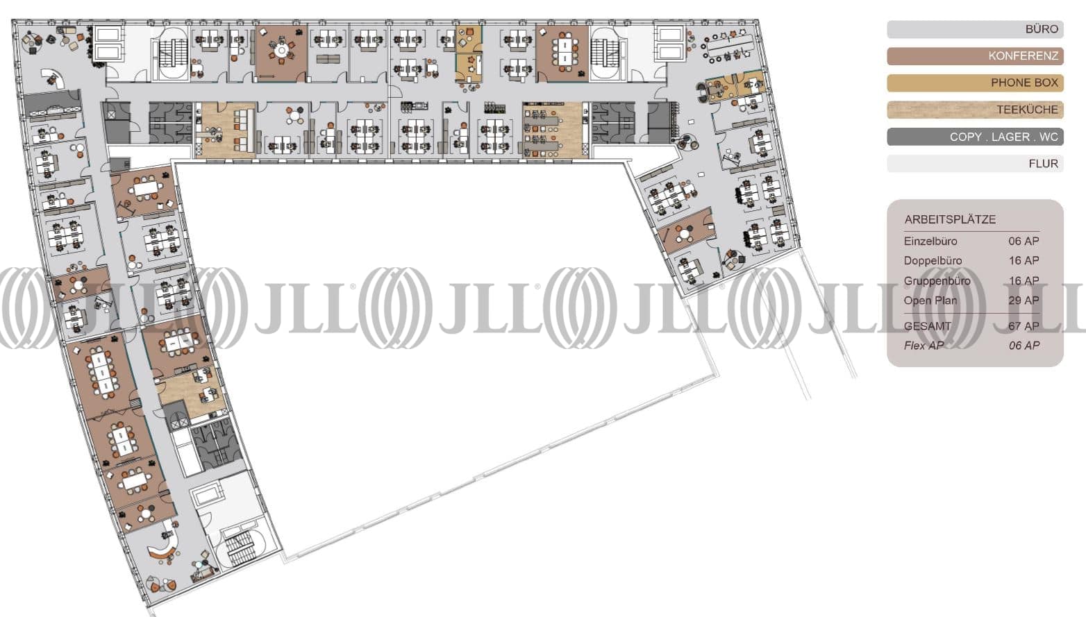
- Grundrisse
- Exposé herunterladen
- Ihr Kontakt
- Anfrage senden
Zertifizierungen
Energieausweis
DGNB: GoldVerfügbare Fläche
Lage und Verkehrsanbindung
- Hauptbahnhof, Hauptbahnhof Bremen, Fahrzeit: 10 min
- Straßenbahn/Tram, Neuenlander Kämpe, Gehzeit: 1 min
- Bus, Neuenlander Kämpe, Gehzeit: 1 min
- Flughafen, Flughafen Bremen, Gehzeit: 1 min
- Bundesautobahn, A 281, Fahrzeit: 2 min
Ihr Kontakt

Andre Hoffmann
Ihr Kontakt




