Büros
ID H1772Büroimmobilie - Hamburg, Rotherbaum - H1772
Rotherbaum, 20354, Hamburg, Hamburg
Provisionspflichtig: bei Anmietung 3 Brutto-Monatsmieten zzgl. gesetzlicher Umsatzsteuer.** der Wert kann je nach Vertragslaufzeit variieren.
26 € / m²
- Fläche122 - 617 m²
- VerfügbarkeitAuf Anfrage
- Objekt
- Ausstattung
- Lage und Verkehrsanbindung
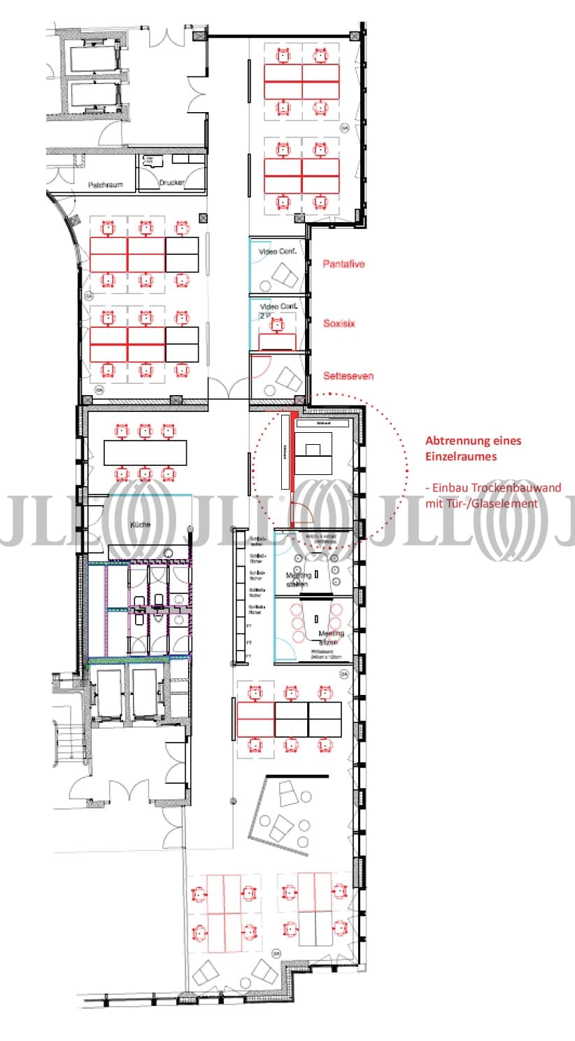
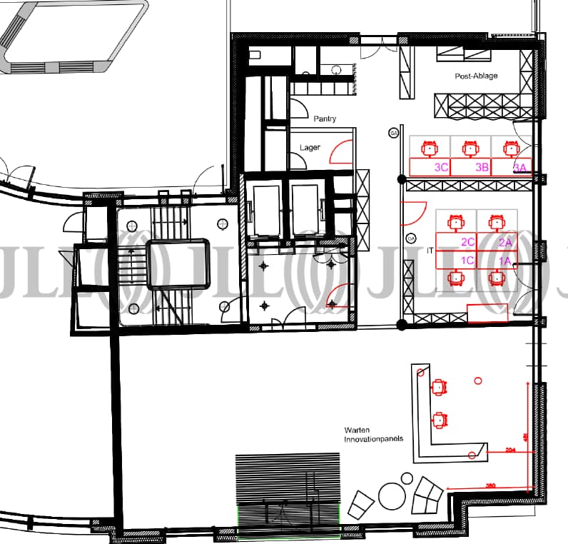
- Grundrisse
- Exposé herunterladen
- Ihr Kontakt
- Anfrage senden
Objekt
Namhafte und einzigartige Adresse - spektakulärer Blick auf die Alster und die Innenstadt: das alles erwartet Sie in erster Reihe. Eine Verschmelzung von Alt und Neu hinter zum Teil denkmalgeschützter Natursteinfassade bietet Ihrem Unternehmen einen repräsentativen Firmensitz mit exklusiver Ausstattung.
Zertifizierungen
Energieausweis
DGNB: GoldVerfügbare Fläche
Lage und Verkehrsanbindung
Dieses Objekt befindet sich in direkter Alsterlage mit sehr guter Anbindung an den öffentlichen Personenverkehr.
- Flughafen, Hamburg, Fahrzeit: 25 min
- Bundesautobahn, A 1, Fahrzeit: 15 min
- Bundesautobahn, A 7, Fahrzeit: 10 min
- Bus, Bushaltestelle U Stephansplatz Buslinien 112, Gehzeit: 5 min
Ihr Kontakt

Nikolina Malek
Ihr Kontakt
Marktinformationen
Mietmarkt
Rotherbaum, Hamburg
Gew. Ø-Miete
26 € / m²
siehe 2 passende MietobjekteErfahren Sie mehr* Durchschnittspreis auf Grundlage historischer Transaktionen.









