Büros
ID H1722Provisionsfrei
Büroimmobilie - Hannover, Mühlenberg - H1722
Mühlenberg, 30457, Hannover, Niedersachsen
8,90 € / m²
- Fläche754 - 7.992 m²
- VerfügbarkeitAuf Anfrage
- Objekt
- Ausstattung
- Lage und Verkehrsanbindung
- Grundrisse
- Exposé herunterladen
- Ihr Kontakt
- Anfrage senden
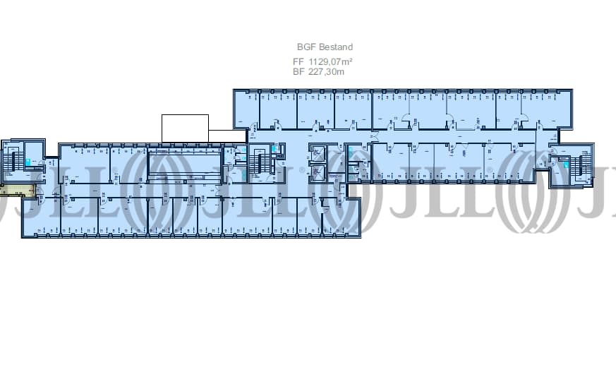
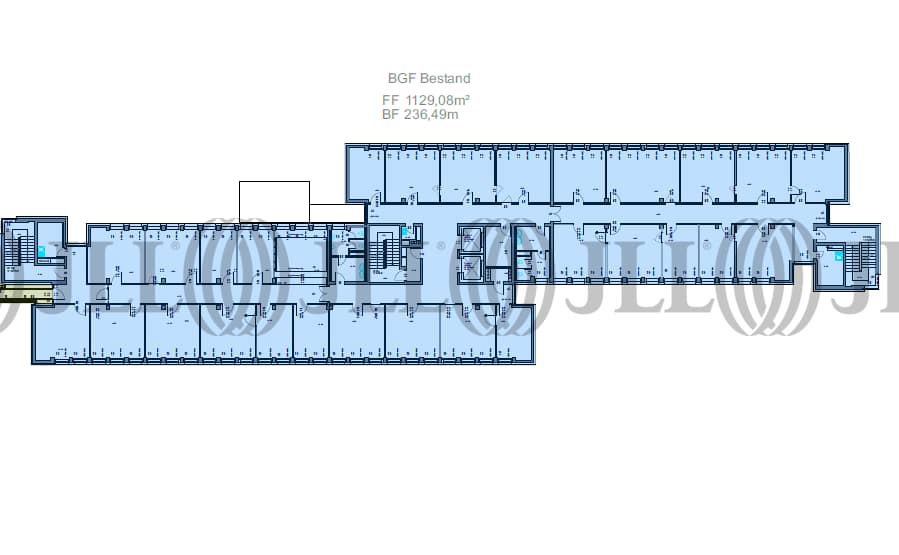
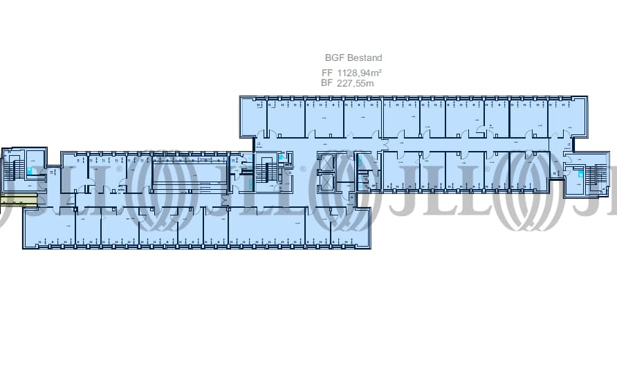
Objekt
Der im Jahr 1986 erbaute Bürokomplex wurde 1997 saniert sowie erweitert und zeichnet sich heute sowohl durch eine hervorragende Objektqualität, die direkte Lage an der U-Bahn Station als auch durch eine moderne Architektur aus. Das Verwaltungsobjekt besteht aus zwei Gebäudeteilen mit sechs bzw. sieben Etagen, welches auf einem ca. 8.953 Quadratmeter großen Grundstück errichtet wurde. Die einzelnen Etagen sind sowohl über Treppenhäuser als auch vier Aufzüge miteinander verbunden. Insgesamt verfügt das Gelände neben zahlreichen Fahrrad-Stellplätzen über 150 PKW-Stellplätze, wobei sich 98 davon in der Tiefgarage befinden.
Die Gesamtmietfläche des Ensembles von etwa 14.034 Quadratmetern wird als Büro und als Lager genutzt. Der Hauptmieter ist die UNIPER Kraftwerke GmbH. Dank der flexiblen Gebäudestruktur ist der Bürokomplex multifunktional nutzbar und bietet ausgezeichnete Weiterentwicklungsmöglichkeiten. Somit können individuelle Wünsche neuer Mieter beachtet werden.
Ausstattung:
- Aufzug: vorhanden
- Bodenbelag: Teppichboden
- Beleuchtung: Deckenleuchten
- Sonnenschutz: vorhanden
- Teeküche: vorhanden
Objektdetails:
- Büroflächen: 754 m² - 7.992 m²
- Baujahr: 1986 / 1997
- Zustand: gepflegt
- Verfügbar ab: sofort
- Stellplätze: ausreichend vorhanden
Die Gesamtmietfläche des Ensembles von etwa 14.034 Quadratmetern wird als Büro und als Lager genutzt. Der Hauptmieter ist die UNIPER Kraftwerke GmbH. Dank der flexiblen Gebäudestruktur ist der Bürokomplex multifunktional nutzbar und bietet ausgezeichnete Weiterentwicklungsmöglichkeiten. Somit können individuelle Wünsche neuer Mieter beachtet werden.
Ausstattung:
- Aufzug: vorhanden
- Bodenbelag: Teppichboden
- Beleuchtung: Deckenleuchten
- Sonnenschutz: vorhanden
- Teeküche: vorhanden
Objektdetails:
- Büroflächen: 754 m² - 7.992 m²
- Baujahr: 1986 / 1997
- Zustand: gepflegt
- Verfügbar ab: sofort
- Stellplätze: ausreichend vorhanden
Zertifizierungen
Energieausweis
Für diese Liegenschaft liegt ein Verbrauchsausweis vom 2019-05-20 vom Eigentümer/Vermieter vor. Die wesentlichen Energieträger der Liegenschaft sind Strom,Erdgas leicht. Der Endenergieverbrauch Strom beträgt 84.60 kWh/(m²*a). Der Endenergieverbrauch Wärme beträgt 81.10 kWh/(m²*a).Verfügbare Fläche
Lage und Verkehrsanbindung
Die U-Bahn Station Hannover Mühlenberger Markt befindet sich nur wenige Meter von der Büroimmobilie entfernt, sodass die Hannoveraner Innenstadt in weniger als 20 Minuten zu erreichen ist. Zudem sind dank der unmittelbaren Nähe zur Bundestraße B65 als Zubringer zur Autobahn A2 regionale und überregionale Anbindungen gegeben. Die Umgebung der Tresckowstraße bietet den Mietern des Bürogebäudes zahlreiche Versorgungs- und Dienstleistungsangebote sowie Freizeitmöglichkeiten. Eine Tankstelle befindet sich in der Nähe. Dienstleister des täglichen Bedarfs befinden sich in der Nähe.
- Flughafen, Hannover-Langenhagen, Fahrzeit: 25 min
- Bundesautobahn, A 65, Fahrzeit: 5 min
- Bus, Bushaltestelle Hannover Mühlenberger Markt Buslinien 129, 581,N56, Gehzeit: 3 min
Ihr Kontakt

Valentin Wiesemann
Ihr Kontakt






