Büros
ID H1699Provisionsfrei
Büroimmobilie - Langenhagen - H1699
30855, Langenhagen, Niedersachsen
8,50 € / m²
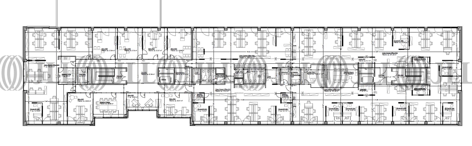
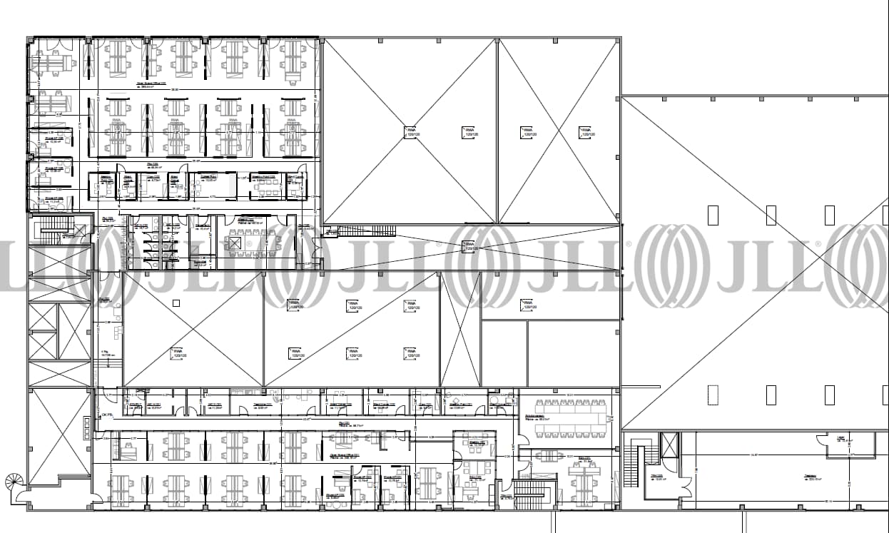
- Fläche985 - 2.244 m²
- VerfügbarkeitAuf Anfrage
- Objekt
- Ausstattung
- Lage und Verkehrsanbindung
- Grundrisse
- Exposé herunterladen
- Ihr Kontakt
- Anfrage senden
Zertifizierungen
Energieausweis
Für diese Liegenschaft liegt ein Verbrauchsausweis vom 2022-02-03 vom Eigentümer/Vermieter vor. Die wesentlichen Energieträger der Liegenschaft sind Strom,Erdgas leicht,Erdgas schwer. Der Endenergieverbrauch Strom beträgt 102.00 kWh/(m²*a). Der Endenergieverbrauch Wärme beträgt 75.00 kWh/(m²*a).Verfügbare Fläche
Lage und Verkehrsanbindung
Dieses Bürogebäude befindet sich in der Nähe des Flughafens Hannover-Langenhagen. Eine Tankstelle befindet sich in der Nähe.
- Flughafen, Hannover-Langenhagen, Fahrzeit: 8 min
- Bundesautobahn, A 2, Fahrzeit: 6 min
- Bundesautobahn, A 7, Fahrzeit: 11 min
- Bundesautobahn, A 352, Fahrzeit: 5 min
- Bundesstraße, B 522, Fahrzeit: 4 min
- Bus, Bushaltestelle Europaallee Buslinien 253, Gehzeit: 5 min
Ihr Kontakt

Valentin Wiesemann
Ihr Kontakt






