Büros
ID H1687Provisionsfrei
Aktualisiert
Büroimmobilie - Hamburg, Hamburg-Altstadt - H1687
Hamburg-Altstadt, 20457, Hamburg, Hamburg
Kontaktieren Sie uns für den Preis
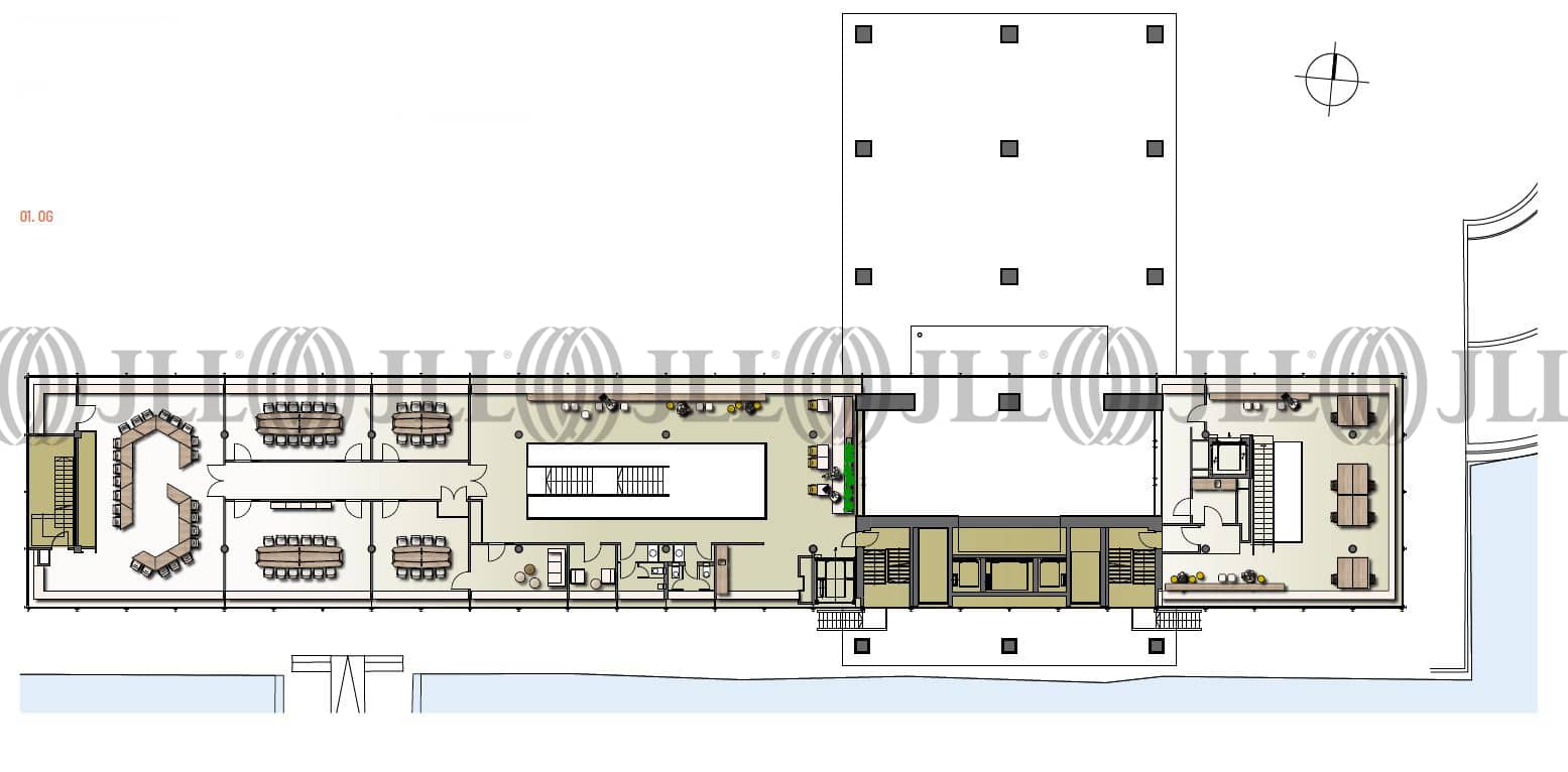
- Fläche632 - 1.981 m²
- VerfügbarkeitSofort
- Objekt
- Ausstattung
- Lage und Verkehrsanbindung
- Grundrisse
- Exposé herunterladen
- Ihr Kontakt
- Anfrage senden
Objekt
Direkt an der St. Nikolai Kirche befindet sich dieses spektakuläre Geschäftshaus-Ensemble. Das Objekt erstreckt sich über insgesamt 6 bzw. 16 Etagen. Der Gebäudekomplex wurde 2016 unter Auflage energetischer Gesichtspunkte voll umfänglich modernisiert. Die Immobilie überzeugt durch ihren erstklassigen Ausblick, dieser erstreckt sich vom Hamburger Hafen über die Elbphilharmonie bis hin zur Binnenalster. Bodentiefe Fenster sorgen für ein lichtdurchflutetes Büro. Zu dem Objekt gehört eine zweigeschossige Tiefgarage, welche über 102 Pkw-Stellplätze verfügt, Ladestationen für E-Autos sind ebenfalls in großer Anzahl gegeben.
Verfügbare Fläche
Lage und Verkehrsanbindung
Das Bürohaus-Ensemble befindet sich an der Hauptverkehrsstraße Ost-West-Straße, die eine schnelle Verbindung von den Elbbrücken in die City, das aufstrebende Hafenrandgebiet sowie die westlichen Stadtteile Hamburgs darstellt. Die Haupteinkaufstraße, der Rathausmarkt sowie das Passagenviertel sind fußläufig zu erreichen. Die Gebäude sind umgeben vom Wasser des Nikolaifleets, einem benachbarten denkmalgeschützten Kontorgebäude sowie der St. Nikolai-Kirche. Dienstleister des täglichen Bedarfs befinden sich in der Nähe.
- Flughafen, Hamburg, Fahrzeit: 27 min
- Bundesautobahn, A 1, Fahrzeit: 10 min
- Bundesautobahn, A 7, Fahrzeit: 14 min
- Bus, Bushaltestelle U Rödingsmarkt (Großer Burstah) Buslinien 3, 16, 17, 31, 601, 607, 608, 609, 610, 641, Gehzeit: 3 min
- U-Bahn, Rödingsmarkt, Gehzeit: 3 min
Ihr Kontakt

Nikolina Malek
Ihr Kontakt








