Büros
ID H1673Provisionsfrei
Aktualisiert
Büroimmobilie - Hamburg, Blankenese - H1673
Blankenese, 22587, Hamburg, Hamburg
13,15 € / m²
- Fläche626 m²
- VerfügbarkeitAuf Anfrage
- Objekt
- Ausstattung
- Lage und Verkehrsanbindung
- Grundrisse
- Exposé herunterladen
- Ihr Kontakt
- Anfrage senden
Objekt
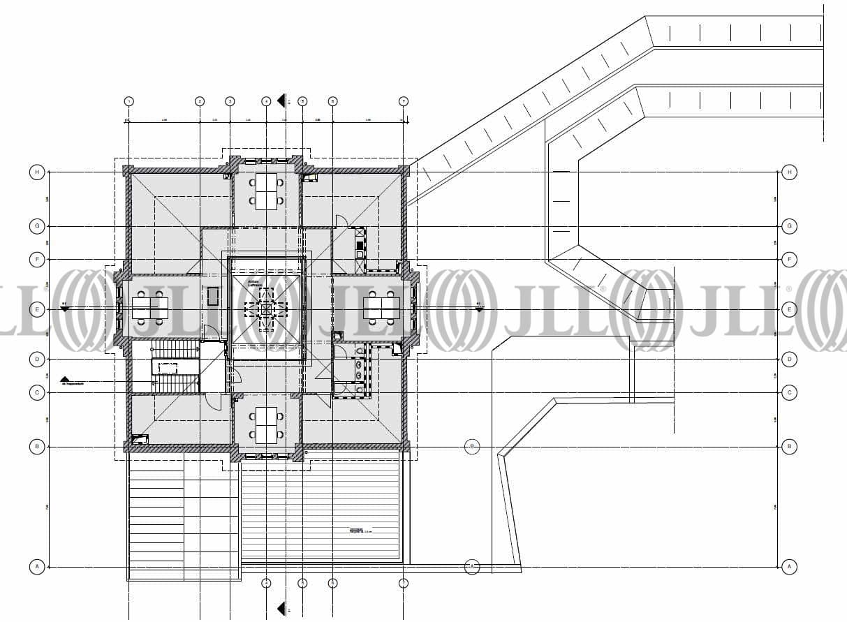
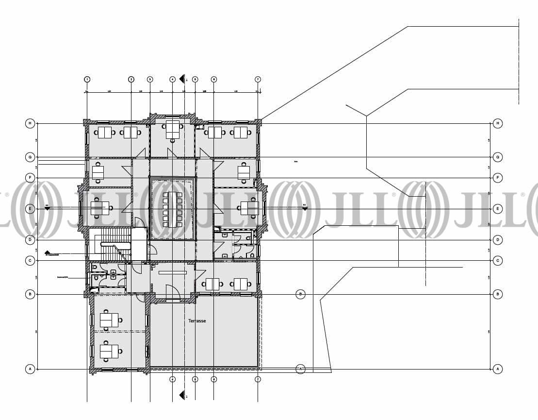
Das denkmalgeschützte Bahnhofsgebäude am Blankeneser Bahnhofsplatz wurde 1897 erreichtet und laufend modernisiert. Die Bürofläche befindet sich im 1. und 2. Obergeschoss und ist über ein Treppenhaus erreichbar. Die Bürofläche verfügt über ein repräsentatives und helles Entrée und eine Galeriefläche mit einer Deckenhöhe, die sich über zwei Etagen erstreckt. Die Büros können individuell angepasst werden. Eine Dachterrasse mit ca. 41 m² steht zur alleinigen Nutzung zur Vefügung.
Verfügbare Fläche
Lage und Verkehrsanbindung
Das Quartier befindet sich im Zentrum von Blankenese und ist optimal an die öffentlichen Verkehrsmittel angeschlossen. Sie erreichen die S-Bahnstation trockenen Fußes und der Busbahnhof liegt direkt vor der Tür. In dem Quartier sind diverse Einkaufsmöglichkeiten des täglichen Bedarfs sowie Cafés vorhanden. Parkplätze können in der öffentlichen Tiefgarage angemietet werden.
Ihr Kontakt

Nikolina Malek
Ihr Kontakt










