
Büros
ID H1653Provisionsfrei
Büroimmobilie - Hamburg, Heimfeld - H1653
Heimfeld, 21079, Hamburg, Hamburg
12 € / m²
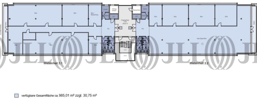
- Fläche447 - 3.369 m²
- VerfügbarkeitSofort
- Objekt
- Ausstattung
- Lage und Verkehrsanbindung
- Grundrisse
- Exposé herunterladen
- Ihr Kontakt
- Anfrage senden
Objekt
Diese erstklassige Immobilie eignet sich hervorragend für unterschiedlichste geschäftliche Zwecke und bietet flexible Nutzungsmöglichkeiten in einem dynamischen Umfeld. Die moderne Architektur und die hochwertige Ausstattung machen das Objekt zu einem attraktiven Standort für Unternehmen, die auf der Suche nach einer professionellen und inspirierenden Arbeitsumgebung sind.
Zertifizierungen
Energieausweis
Für diese Liegenschaft liegt ein Bedarfsausweis vom 26.01.2021 vom Eigentümer/Vermieter vor. Der wesentliche Energieträger der Liegenschaft ist Erdgas schwer. Der Endenergiebedarf Strom beträgt 16,00 kWh/(m²*a). Der Endenergiebedarf Wärme beträgt 105,00 kWh/(m²*a).Verfügbare Fläche
Lage und Verkehrsanbindung
Dieses Bürogebäude befindet sich in zentraler Lage im Hamburger Stadtteil Harburg. In nur wenigen Fahrminuten sind von hier die Bundesautobahnen A 1 (Bremen / LübeckI) sowie A 7 (Hannover / Flensburg) erreicht. Auch sind die Hamburger Innenstadt in nur ca. 15 Autominuten und der Hamburger Flughafen in ca. 40 Autominuten schnell zu erreichen. Die Harburger Innenstadt und somit auch alle öffentlichen Verkehrsmittel wie z. B. die S-Bahn-Station Harburg-Rathaus befinden sich in fußläufiger Entfernung. Eine Tankstelle befindet sich in der Nähe. Dienstleister des täglichen Bedarfs befinden sich in der Nähe.
- Hauptbahnhof, Hamburg, Fahrzeit: 20 min
- S-Bahn, Harburg Rathaus; Linien S3, S5, Gehzeit: 7 min
- Bus, Bushaltestelle Hafen Harburg Buslinien 142, Gehzeit: 1 min
- Bundesautobahn, A 1, Fahrzeit: 6 min
- Bundesautobahn, A 7, Fahrzeit: 7 min
- Flughafen, Hamburg, Fahrzeit: 40 min
Ihr Kontakt

Nikolina Malek
Ihr Kontakt