Büros
ID H1567Provisionsfrei
Aktualisiert
Büroimmobilie - Hamburg, St. Georg - H1567
St. Georg, 20097, Hamburg, Hamburg
18,13 € / m²
- Fläche228 - 4.215 m²
- VerfügbarkeitAuf Anfrage
- Objekt
- Ausstattung
- Lage und Verkehrsanbindung
- Grundrisse
- Exposé herunterladen
- Ihr Kontakt
- Anfrage senden
Objekt
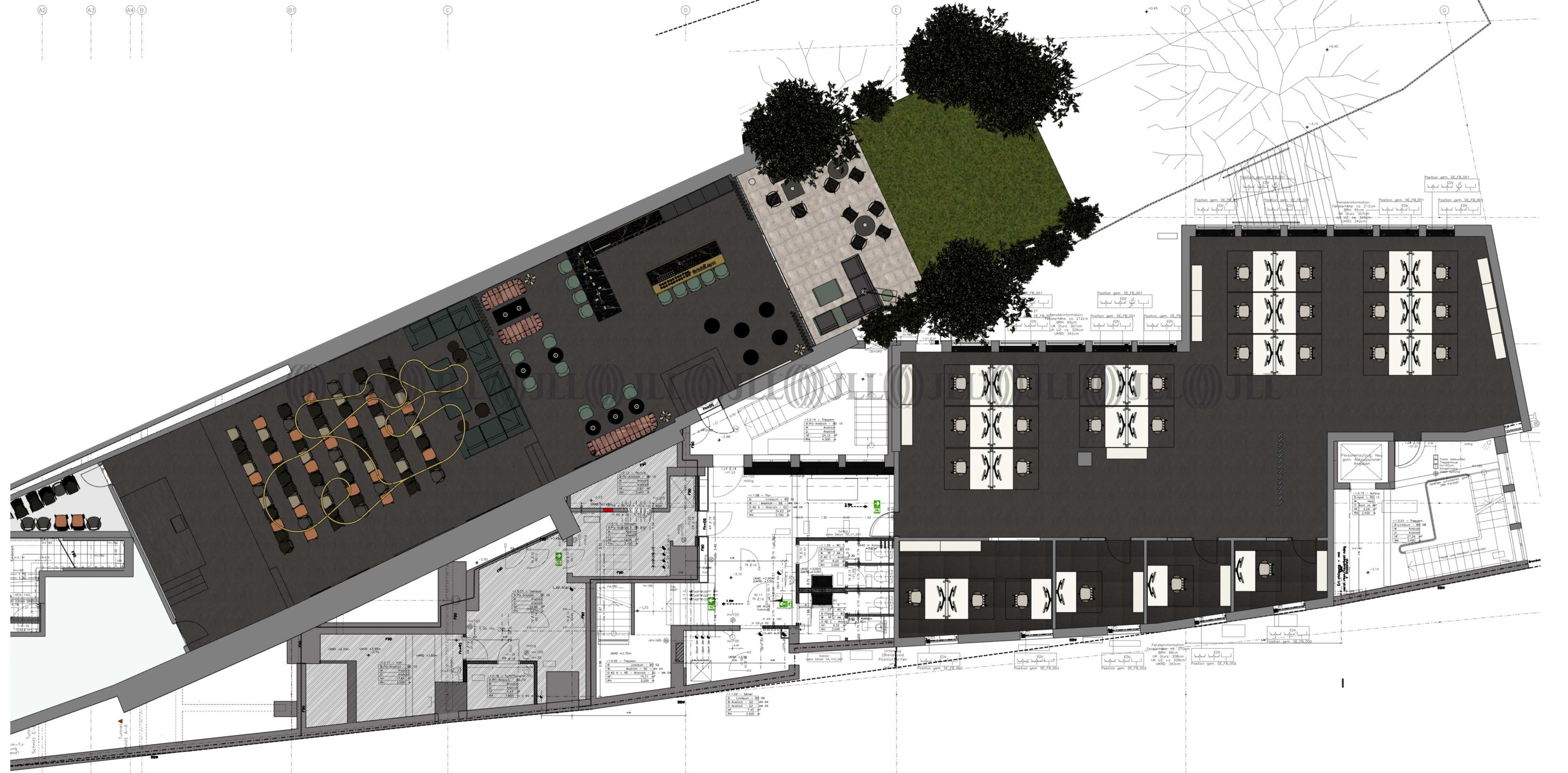
Der „Geesthof“ wurde 2022 nach einer umfassenden Revitalisierung fertiggestellt. Das neue Interior Design schafft eine inspirierende Arbeitsatmosphäre, indem es moderne Ausbauelemente mit dem Stil der 20er Jahre kombiniert.
Die Mieteinheiten sind in Hanglage gebaut, reichen vom Hofgeschoss bis zum 1. Obergeschoss und befinden sich in einem hervorragenden und vollständig ausgebauten Zustand. Angeboten werden diese als Untermietflächen mit einem bestehenden Vertrag bis zum 30.09.2030. Ein direktes Mietverhältnis mit dem Eigentümer ist denkbar.
Besonderes Highlight: Einzigartig ist der ausgebaute, stillgelegte Bahntunnel. Dieser dient aktuell als Community-Space für Mitarbeiter und kann für Events genutzt werden. Der Tunnel ist mit einer Lüftungsanlage ausgestattet und bietet über eine eigene Terrasse direkten Zugang zum Garten.
Die Mieteinheiten sind in Hanglage gebaut, reichen vom Hofgeschoss bis zum 1. Obergeschoss und befinden sich in einem hervorragenden und vollständig ausgebauten Zustand. Angeboten werden diese als Untermietflächen mit einem bestehenden Vertrag bis zum 30.09.2030. Ein direktes Mietverhältnis mit dem Eigentümer ist denkbar.
Besonderes Highlight: Einzigartig ist der ausgebaute, stillgelegte Bahntunnel. Dieser dient aktuell als Community-Space für Mitarbeiter und kann für Events genutzt werden. Der Tunnel ist mit einer Lüftungsanlage ausgestattet und bietet über eine eigene Terrasse direkten Zugang zum Garten.
Verfügbare Fläche
Lage und Verkehrsanbindung
Dieses Bürohaus befindet sich in zentrale Lage nahe des Hamburger Hauptbahnhofes sowie den Einkaufsstraßen Spitalerstraße und Mönckebergstraße. Restaurants sowie diverse Einkaufsmöglichkeiten sind fußläufig in wenigen Minuten erreichbar.
- Hauptbahnhof, Hauptbahnhof, Gehzeit: 5 min
- Bundesautobahn, A 1, Fahrzeit: 10 min
- Flughafen, Hamburg, Fahrzeit: 26 min
Ihr Kontakt

Zainab Bo-Hamdan
Ihr Kontakt













