
Büros
ID H1410Büroimmobilie - Hamburg, Wandsbek - H1410
Wandsbek, 22047, Hamburg, Hamburg
Provisionspflichtig: bei Anmietung 3 Brutto-Monatsmieten zzgl. gesetzlicher Umsatzsteuer.** der Wert kann je nach Vertragslaufzeit variieren.
10 € / m²
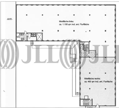
- Fläche480 m²
- VerfügbarkeitAuf Anfrage
- Objekt
- Ausstattung
- Lage und Verkehrsanbindung
- Grundriss
- Exposé herunterladen
- Ihr Kontakt
- Anfrage senden
Objekt
Das Bürohaus besitzt eine wirtschaftliche und flexible Gebäudestruktur, die
vielfältige Raumnutzungen gewährleistet. Es lassen sich sowohl Zellen- und
Kombibüros umsetzen, als auch das Großraum- bzw. Gruppenraumbüro.
Die lichte Höhe in den Büroräumen sorgt dadurch nicht
nur für moderne, zeitgemäße Arbeitsplätze, sondern ermöglicht auch dauerhafte
Flexibilität, insbesondere im Hinblick auf die Raumaufteilung.
vielfältige Raumnutzungen gewährleistet. Es lassen sich sowohl Zellen- und
Kombibüros umsetzen, als auch das Großraum- bzw. Gruppenraumbüro.
Die lichte Höhe in den Büroräumen sorgt dadurch nicht
nur für moderne, zeitgemäße Arbeitsplätze, sondern ermöglicht auch dauerhafte
Flexibilität, insbesondere im Hinblick auf die Raumaufteilung.
Verfügbare Fläche
Lage und Verkehrsanbindung
Der Gewerbepark Tilsiter Straße liegt direkt an dem Kreuzungsbereich Tilsiter Straße / Am Stadtrand. Über die Hauptverkehrsachsen Tilsiter Straße und Friedrich-Ebert-Damm bestehen optimale Anbindungen zur Hamburger Innenstadt, zum Messegelände sowie zum Flughafen Fuhlsbüttel. An das Autobahnnetz ist Wandsbek optimal über den „Horner Kreisel“ und die „Horner Rampe“ (A24 / A1 Richtung Berlin / Lübeck) angebunden. Ferner erreicht man die Autobahn A1 Richtung Hannover / Bremen über die Straße Am Stadtrand / Ahrensburger Straße (B75). Dienstleister des täglichen Bedarfs befinden sich in der Nähe.
- Flughafen, Hamburg, Fahrzeit: 15 min
- Bundesautobahn, A 1, Fahrzeit: 10 min
- Bundesautobahn, A 24, Fahrzeit: 10 min
- Bus, Bushaltestelle Angerburger Straße Buslinien 118, Gehzeit: 5 min
Ihr Kontakt

Janina Voß
Ihr Kontakt
Marktinformationen
Mietmarkt
Wandsbek, Hamburg
Gew. Ø-Miete
10 € / m²
siehe 6 passende MietobjekteErfahren Sie mehr* Durchschnittspreis auf Grundlage historischer Transaktionen.