Büros
ID H1365Provisionsfrei
Aktualisiert
Büroimmobilie - Hannover, Mitte - H1365
Mitte, 30159, Hannover, Niedersachsen
16,50 € - 18,50 € / m²
- Fläche616 - 1.235 m²
- VerfügbarkeitAuf Anfrage
- Objekt
- Ausstattung
- Lage und Verkehrsanbindung
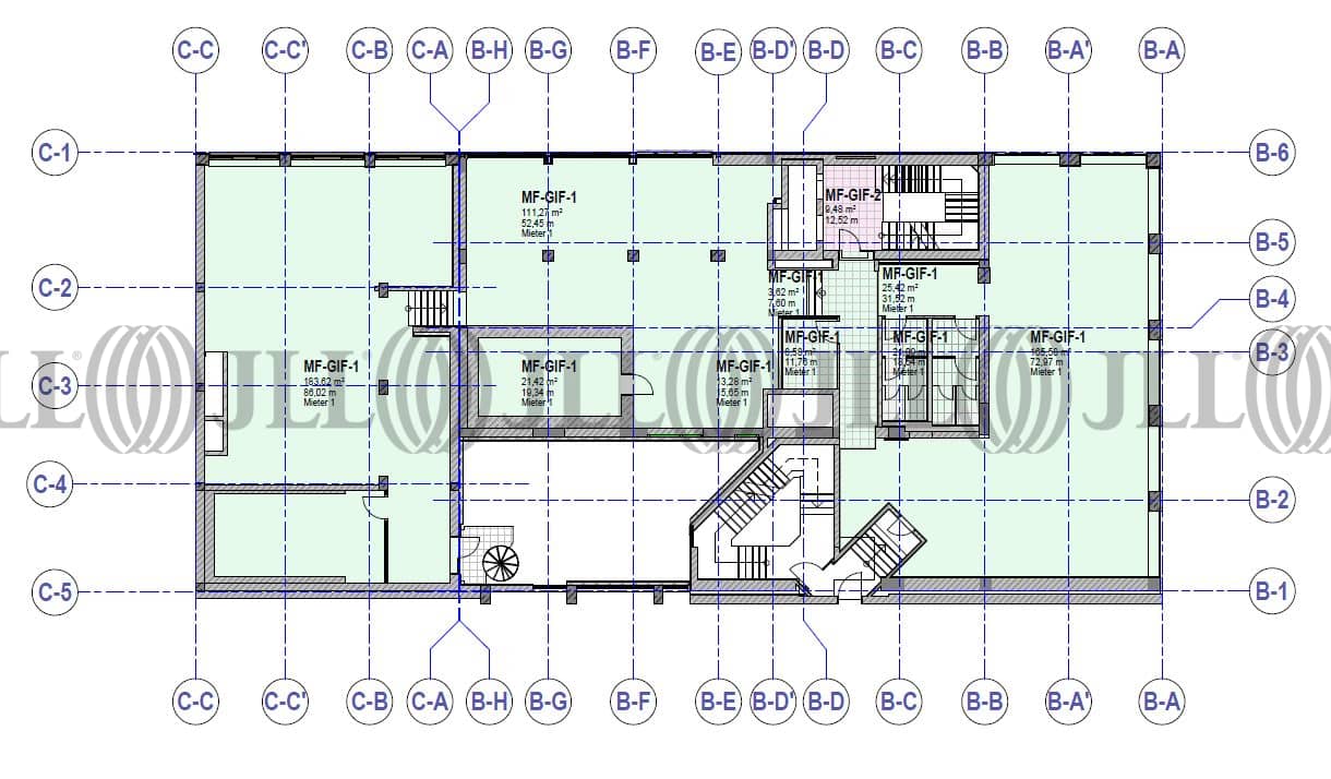
- Grundriss
- Exposé herunterladen
- Ihr Kontakt
- Anfrage senden
Objekt
Die angebotenen Mietflächen erstrecken sich über die Häuser 2 und 3a der Landschaftstraße (Bauteile B/C). Pro Stockwerk stehen Ihnen ca. 660 m² Mietfläche zur Anmietung zur Verfügung.
Die Flächen werden mit einer sehr ansprechenden mittleren Grundausstattung geliefert. Zum aktuellen Zeitpunkt sind in den Mietflächen keine Ausbauten eingeplant. Küchen inkl. Einrichtungsgegenstände wie Spülmaschine, Kühlschrank usw. gehören zum Leistungsumfang des Vermieters. Die Warmwassererzeugung erfolgt dezentral mit elektrisch beheizten Untertischgeräten.
Das Objekt ist an das öffentliche Fernwärmenetz der Stadt Hannover über den ortsansässigen Betreiber enercity angeschlossen. Der Vermieter gewährleistet das Bereitstellen von Heizenergie gemäß Heizlastberechnung. Die Beheizung der Mietflächen erfolgt durch neue Heizflächen mit mittlerem Standard. Raumtemperaturen im Heizfall: Büro- und Sozialräume 20° C, Lager- und Treppenräume mind. 15°C.
Die Fenster und Fensterelemente werden komplett erneuert. Zudem werden die bereits vorhandenen Außenbeschattungen (Raffstores) an den Fenstern zu den Straßenseiten - Georgsplatz und Landschaftstraße - erneuert.
Weitere geplante Maßnahmen für eine nachhaltige Anmietung:
- Dachbegrünung
- e-Ladesäulen für PKW und Fahrräder
- Erneuerung aller Fenster
- Öko-Strom
- Einholung eines Nachhaltigkeits-Zertifikats
- Fernwärme
Die Flächen werden mit einer sehr ansprechenden mittleren Grundausstattung geliefert. Zum aktuellen Zeitpunkt sind in den Mietflächen keine Ausbauten eingeplant. Küchen inkl. Einrichtungsgegenstände wie Spülmaschine, Kühlschrank usw. gehören zum Leistungsumfang des Vermieters. Die Warmwassererzeugung erfolgt dezentral mit elektrisch beheizten Untertischgeräten.
Das Objekt ist an das öffentliche Fernwärmenetz der Stadt Hannover über den ortsansässigen Betreiber enercity angeschlossen. Der Vermieter gewährleistet das Bereitstellen von Heizenergie gemäß Heizlastberechnung. Die Beheizung der Mietflächen erfolgt durch neue Heizflächen mit mittlerem Standard. Raumtemperaturen im Heizfall: Büro- und Sozialräume 20° C, Lager- und Treppenräume mind. 15°C.
Die Fenster und Fensterelemente werden komplett erneuert. Zudem werden die bereits vorhandenen Außenbeschattungen (Raffstores) an den Fenstern zu den Straßenseiten - Georgsplatz und Landschaftstraße - erneuert.
Weitere geplante Maßnahmen für eine nachhaltige Anmietung:
- Dachbegrünung
- e-Ladesäulen für PKW und Fahrräder
- Erneuerung aller Fenster
- Öko-Strom
- Einholung eines Nachhaltigkeits-Zertifikats
- Fernwärme
Verfügbare Fläche
Lage und Verkehrsanbindung
Das Gebäude, bestehend aus zwei Bauteilen, befindet sich in zentraler Lage in der Innenstadt von Hannover. Die Landschaftstraße ist als Einbahnstraße vom Georgsplatz befahrbar und bildet hier im Ensemble das Eckgebäude. Teile dieses Gesamtensembles stehen unter Denkmalschutz. Haltestellen des öffentlichen Personennahverkehrs sowie öffentliche Parkplätze und Parkhäuser sind in unmittelbarer Umgebung. Eine Tankstelle befindet sich in der Nähe. Dienstleister des täglichen Bedarfs befinden sich in der Nähe.
- Flughafen, Hannover-Langenhagen, Fahrzeit: 25 min
- Bundesautobahn, A 2, Fahrzeit: 19 min
- Bundesautobahn, A 7, Fahrzeit: 22 min
- Bus, Bushaltestelle Georgsplatz, Gehzeit: 1 min
Ihr Kontakt

Valentin Wiesemann
Ihr Kontakt
Marktinformationen
Mietmarkt
Mitte, Hannover
siehe 10 passende MietobjekteErfahren Sie mehr
* Durchschnittspreis auf Grundlage historischer Transaktionen.






