
Büros
ID H1047Provisionsfrei
Aktualisiert
Büroimmobilie - Hamburg, Hamburg-Altstadt - H1047
Hamburg-Altstadt, 20457, Hamburg, Hamburg
17,45 € / m²
- Fläche140 - 320 m²
- VerfügbarkeitAuf Anfrage
- Objekt
- Ausstattung
- Lage und Verkehrsanbindung
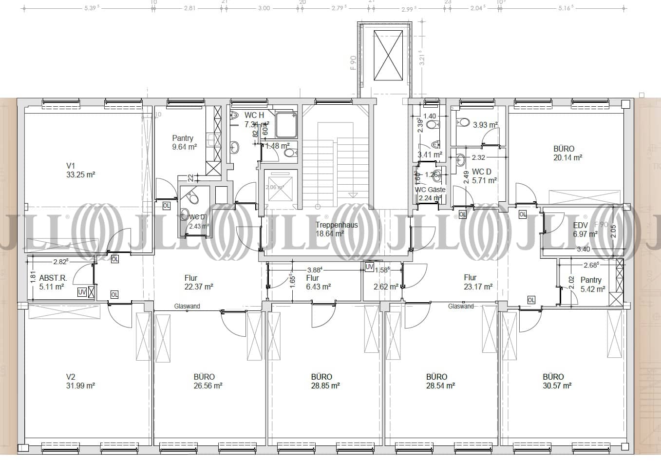
- Grundriss
- Exposé herunterladen
- Ihr Kontakt
- Anfrage senden
Objekt
Das 1955 erbaute Bürohaus wurde 1997 umfangreich renoviert. Diese Renovierungsmaßnahmen umfassten u.a. die Erneuerung der Decken sowie des Treppenhauses.
Das 6-geschossige Büro- und Geschäftshaus wird von dem repräsentativen Eingangsbereich aus über 2 Personenaufzüge erschlossen. Das 6. Obergeschoss wurde 2009 aufgestockt.
Das 6-geschossige Büro- und Geschäftshaus wird von dem repräsentativen Eingangsbereich aus über 2 Personenaufzüge erschlossen. Das 6. Obergeschoss wurde 2009 aufgestockt.
Zertifizierungen
Energieausweis
Für diese Liegenschaft liegt ein Verbrauchsausweis vom 27.03.2024 vom Eigentümer/Vermieter vor. Der wesentliche Energieträger der Liegenschaft ist Fernwärme. Der Endenergieverbrauch Strom beträgt 25,2 kWh/(m²*a). Der Endenergieverbrauch Wärme beträgt 70,1 kWh/(m²*a).Verfügbare Fläche
Lage und Verkehrsanbindung
Das Objekt befindet sich in zentraler jedoch ruhiger Lage zwischen der Hamburger Innenstadt und dem Hafen.
- Flughafen, Hamburg, Fahrzeit: 25 min
- Bundesautobahn, A 1, Fahrzeit: 10 min
- Bundesautobahn, A 7, Fahrzeit: 15 min
- Bus, Bushaltestelle Auf dem Sande (Speicherstadt) Buslinien M6, Gehzeit: 2 min
Ihr Kontakt

Alexander Menke
Ihr Kontakt