Büros
ID H0971Provisionsfrei
Büroimmobilie - Hamburg, Ottensen - H0971
Ottensen, 22763, Hamburg, Hamburg
11,50 € / m²
- Fläche435 m²
- VerfügbarkeitAuf Anfrage
- Objekt
- Ausstattung
- Lage und Verkehrsanbindung
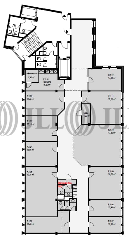
- Grundriss
- Exposé herunterladen
- Ihr Kontakt
- Anfrage senden
Objekt
Dieses 7-geschossige Büro- und Geschäftshaus aus dem Jahr 2001 verfügt über 12.000 m² effiziente Bürofläche. Der begrünte Innenhof sowie das kreative Umfeld bieten eine angenehme Atmosphäre. Einkaufsmöglichkeiten befinden sich in unmittelbarer Nähe.
Zertifizierungen
Energieausweis
Für diese Liegenschaft liegt ein Verbrauchsausweis vom 11.06.2015 vom Eigentümer/Vermieter vor. Der wesentliche Energieträger der Liegenschaft ist Erdgas leicht. Der Endenergieverbrauch Strom beträgt 39.00 kWh/(m²*a). Der Endenergieverbrauch Wärme beträgt 37.00 kWh/(m²*a).Verfügbare Fläche
Lage und Verkehrsanbindung
Das im Stadtteil Bahrenfeld gelegene Objekt befindet sich in sehr zentraler, gut auffindbarer und verkehrsgünstiger Lage. Eine Tankstelle befindet sich in der Nähe. Dienstleister des täglichen Bedarfs befinden sich in der Nähe.
- Flughafen, Hamburg, Fahrzeit: 20 min
- Bundesautobahn, A 1, Fahrzeit: 20 min
- Bundesautobahn, A 7, Fahrzeit: 5 min
- Bus, Bushaltestelle S Bahrenfeld Buslinien 283/37, Gehzeit: 2 min
Ihr Kontakt

Janina Voß
Ihr Kontakt

