Büros
ID H0970Provisionsfrei
Büroimmobilie - Hannover, Lahe - H0970
Lahe, 30659, Hannover, Niedersachsen
8,50 € / m²
- Fläche644 - 4.517 m²
- VerfügbarkeitAuf Anfrage
- Objekt
- Ausstattung
- Lage und Verkehrsanbindung
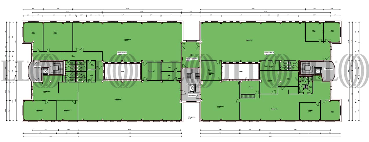
- Grundriss
- Exposé herunterladen
- Ihr Kontakt
- Anfrage senden
Objekt
Die Büroflächen in der Rotenburger Straße bieten eine gute Kombination aus hervorragender Verkehrsanbindung und Zugang zu einem der dynamischsten Wirtschaftsstandorte Hannovers. In der Nähe der A2 gelegen, gewährleistet Büro-Komplex optimale Erreichbarkeit für Mitarbeiter, Kunden und Geschäftspartner aus der Region und darüber hinaus.
Im Herzen des aufstrebenden Industriegebiets Hannover-Lahe positioniert, profitieren Unternehmen von einem Umfeld, das von Innovation und Wachstum geprägt ist. Die zeitgemäße Architektur der Gebäude spiegelt den starken Wirtschaftsstandort wider.
Die Büroflächen zeichnen sich durch flexibel gestaltbare Grundrisse aus, die individuell an die Bedürfnisse jedes Unternehmens angepasst werden können. Hochwertige Ausstattung, energieeffiziente Systeme und moderne IT-Infrastruktur schaffen optimale Voraussetzungen für produktives Arbeiten.
Großzügige Fensterflächen sorgen für helle Räume und bieten inspirierende Ausblicke auf das pulsierende Industriegebiet. Ausreichend Parkplätze und eine gute Anbindung an den öffentlichen Nahverkehr runden das Angebot ab.
In der Rotenburger Straße finden Unternehmen nicht nur Büroflächen, sondern einen Standort, der Wachstum fördert und neue Geschäftsmöglichkeiten eröffnet - im Zentrum eines der vielversprechendsten Wirtschaftsräume Hannovers.
Ausstattung:
- Aufzug: vorhanden
- Bodenbelag: Teppichboden / Laminat
- Beheizungsart: Fernwärme
- Decke: Abhangdecke
- DV- Verkabelung: Cat6
- Kabelführung: Fensterbankkanal
- Kühlung: Klimaanlagen auf Wunsch
- Beleuchtung: Einbauleuchten
- Sonnenschutz: außenliegend elektrisch
- Teeküche: vorhanden
Objektdetails:
- Etagenanzahl: 3 Etagen
- Büroflächen: 645 m² - 2.200 m²
- Raumhöhe: 2,95 m
- Zustand: gepflegt / auf Wunsch Kernsaniert
- Verfügbar ab: sofort
- Stellplätze: ausreichend vorhanden
Im Herzen des aufstrebenden Industriegebiets Hannover-Lahe positioniert, profitieren Unternehmen von einem Umfeld, das von Innovation und Wachstum geprägt ist. Die zeitgemäße Architektur der Gebäude spiegelt den starken Wirtschaftsstandort wider.
Die Büroflächen zeichnen sich durch flexibel gestaltbare Grundrisse aus, die individuell an die Bedürfnisse jedes Unternehmens angepasst werden können. Hochwertige Ausstattung, energieeffiziente Systeme und moderne IT-Infrastruktur schaffen optimale Voraussetzungen für produktives Arbeiten.
Großzügige Fensterflächen sorgen für helle Räume und bieten inspirierende Ausblicke auf das pulsierende Industriegebiet. Ausreichend Parkplätze und eine gute Anbindung an den öffentlichen Nahverkehr runden das Angebot ab.
In der Rotenburger Straße finden Unternehmen nicht nur Büroflächen, sondern einen Standort, der Wachstum fördert und neue Geschäftsmöglichkeiten eröffnet - im Zentrum eines der vielversprechendsten Wirtschaftsräume Hannovers.
Ausstattung:
- Aufzug: vorhanden
- Bodenbelag: Teppichboden / Laminat
- Beheizungsart: Fernwärme
- Decke: Abhangdecke
- DV- Verkabelung: Cat6
- Kabelführung: Fensterbankkanal
- Kühlung: Klimaanlagen auf Wunsch
- Beleuchtung: Einbauleuchten
- Sonnenschutz: außenliegend elektrisch
- Teeküche: vorhanden
Objektdetails:
- Etagenanzahl: 3 Etagen
- Büroflächen: 645 m² - 2.200 m²
- Raumhöhe: 2,95 m
- Zustand: gepflegt / auf Wunsch Kernsaniert
- Verfügbar ab: sofort
- Stellplätze: ausreichend vorhanden
Verfügbare Fläche
Lage und Verkehrsanbindung
Die Büroflächen befinden sich im Gewerbegebiet Laher Heide mit sehr guter Anbindung an die Bundesautobahn A2 und deren Anschlussstelle Hannover Lahe. In der näheren Umgebung befinden sich diverse namhafte Unternehmen sowie Hotels, gastronomische Einrichtungen, Einkaufsmöglichkeiten des täglichen Bedarfs und das Einkaufszentrum A2-Center Altwarmbüchen. Eine Tankstelle befindet sich in der Nähe. Dienstleister des täglichen Bedarfs befinden sich in der Nähe. - Vielfältige Gastronomie-Angebote (A2-Center) - Einkaufsmöglichkeiten (A2-Center) - Fitnessstudios und Sportanlagen - Hotels für Geschäftsreisende und Kunden - Apotheken - Coworking Spaces und Konferenzzentren - Freizeitangebote für After-Work-Aktivitäten
- Flughafen, Hannover-Langenhagen, Fahrzeit: 15 min
- Bundesautobahn, A 2, Fahrzeit: 2 min
- Bundesautobahn, A 7, Fahrzeit: 5 min
Ihr Kontakt

Sebastian Roth
Ihr Kontakt










