Büros
ID H0903Provisionsfrei
Aktualisiert
Büroimmobilie - Hannover, Vahrenheide - H0903
Vahrenheide, 30179, Hannover, Niedersachsen
Kontaktieren Sie uns für den Preis
- Fläche345 - 1.286 m²
- VerfügbarkeitSofort
- Objekt
- Ausstattung
- Lage und Verkehrsanbindung
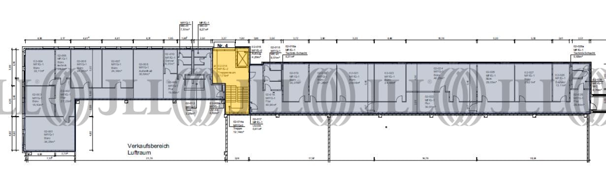
- Grundrisse
- Exposé herunterladen
- Ihr Kontakt
- Anfrage senden
Objekt
Es lassen sich alle gängigen Bürotypen darstellen. Anpassungen nach Mieterwunsch auf Anfrage möglich.
Zertifizierungen
Energieausweis
Für diese Liegenschaft liegt ein Bedarfsausweis vom 2013-06-12 vom Eigentümer/Vermieter vor. Die wesentlichen Energieträger der Liegenschaft sind Strom,Erdgas schwer. Endenergiebedarf: 187.00000 kWh/(m²*a).Verfügbare Fläche
Lage und Verkehrsanbindung
- Flughafen, Hannover-Langenhagen, Fahrzeit: 10 min
- Bundesautobahn, A 2, Fahrzeit: 2 min
- Bundesautobahn, A 7, Fahrzeit: 12 min
- Bundesstraße, B 522, Fahrzeit: 2 min
- Bus, Bushaltestelle Lililenthalstraße Buslinien 135, Gehzeit: 4 min
Ihr Kontakt

Valentin Wiesemann
Ihr Kontakt





