
Büros
ID H0852Provisionsfrei
Aktualisiert
Büroimmobilie - Hamburg, Altona-Nord - H0852
Altona-Nord, 22765, Hamburg, Hamburg
17,50 € / m²
- Fläche167 - 337 m²
- VerfügbarkeitSofort
- Objekt
- Ausstattung
- Lage und Verkehrsanbindung
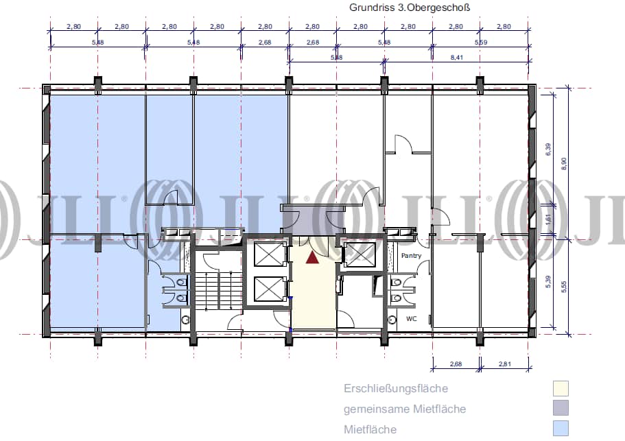
- Grundriss
- Exposé herunterladen
- Ihr Kontakt
- Anfrage senden
Objekt
Der Kaiserhof wurde im Jahre 2007/2008 vollständig entkernt und revitalisiert. Die wirtschaftlichen Grundrisse lassen sich flexibel gestalten und bieten dem neuen Mieter volle Flexibilität in der Raumaufteilung.
Zertifizierungen
Energieausweis
Für diese Liegenschaft liegt ein Verbrauchsausweis vom 06.01.2025 vom Eigentümer/Vermieter vor. Der wesentliche Energieträger der Liegenschaft ist Fernwärme. Der Endenergieverbrauch Strom beträgt 13.7 kWh/(m²*a). Der Endenergieverbrauch Wärme beträgt 77 kWh/(m²*a).Verfügbare Fläche
Lage und Verkehrsanbindung
Direkt am Bahnhof Altona nahe dem Einkaufzentrum Mercado. Eine Tankstelle befindet sich in der Nähe. Dienstleister des täglichen Bedarfs befinden sich in der Nähe.
- Hauptbahnhof, Hauptbahnhof, Fahrzeit: 12 min
- S-Bahn, Altona, Gehzeit: 2 min
- Bus, Bushaltestelle Bf. Altona Buslinien 15/150/288/601/609/621/688, Gehzeit: 1 min
- Bundesautobahn, A 7, Fahrzeit: 7 min
- Bundesautobahn, A 1, Fahrzeit: 14 min
- Flughafen, Hamburg, Fahrzeit: 17 min
Ihr Kontakt

Zainab Bo-Hamdan
Ihr Kontakt