Büros
ID H0782Provisionsfrei
Büroimmobilie - Hamburg, Eilbek - H0782
Eilbek, 22089, Hamburg, Hamburg
19,50 € / m²
- Fläche317 m²
- VerfügbarkeitSofort
- Objekt
- Ausstattung
- Lage und Verkehrsanbindung
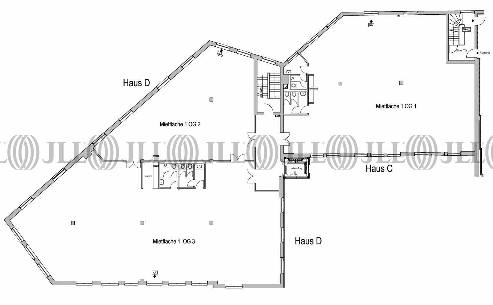
- Grundriss
- Exposé herunterladen
- Ihr Kontakt
- Anfrage senden
Objekt
Seien Sie ein Teil der revitalisierten Gewerbelofts in Wandsbek. Die alte Bäckerei erstrahlt ab Dezember 2018 im neuen Glanz. Hohe Decken und große Fensterflächen sorgen für eine optimale Belichtung und ein ganz besonderes Ambiente. Der Loftcharakter wird durch die offen gelegten, im industriedesign gehaltenen Decken unterstützt. Kabeltrassen geben den Flächen den letzten Feinschliff. Ein Personen- und Lastenfahrstuhl erschließt die einzelnen Etagen.
Stellplätze können vor dem Haus angemietet werden.
Stellplätze können vor dem Haus angemietet werden.
Verfügbare Fläche
Lage und Verkehrsanbindung
Der Gewerbehof liegt in verkehrsgünstiger Lage im Hamburger Stadtteil Wandsbek. Eine optimale Anbindung an das öffentliche Verkehrsnetz wird durch die fußläufig entfernte U-Bahnstation „Wartenau“ und die S-Bahn-Station „Landwehr“ gegeben.
- Flughafen, Hamburg, Fahrzeit: 20 min
- Bundesautobahn, A 1, Fahrzeit: 12 min
- Bundesautobahn, A 24, Fahrzeit: 8 min
- Bus, Bushaltestelle Wartenau (U) Buslinien 36/35, Gehzeit: 3 min
Ihr Kontakt

Zainab Bo-Hamdan
Ihr Kontakt




