Büros
ID H0687Provisionsfrei
Aktualisiert
Büroimmobilie - Hamburg, Ohlsdorf - H0687
Ohlsdorf, 22335, Hamburg, Hamburg
12 € / m²
- Fläche315 - 726 m²
- Verfügbarkeit01.12.2026
- Objekt
- Ausstattung
- Lage und Verkehrsanbindung
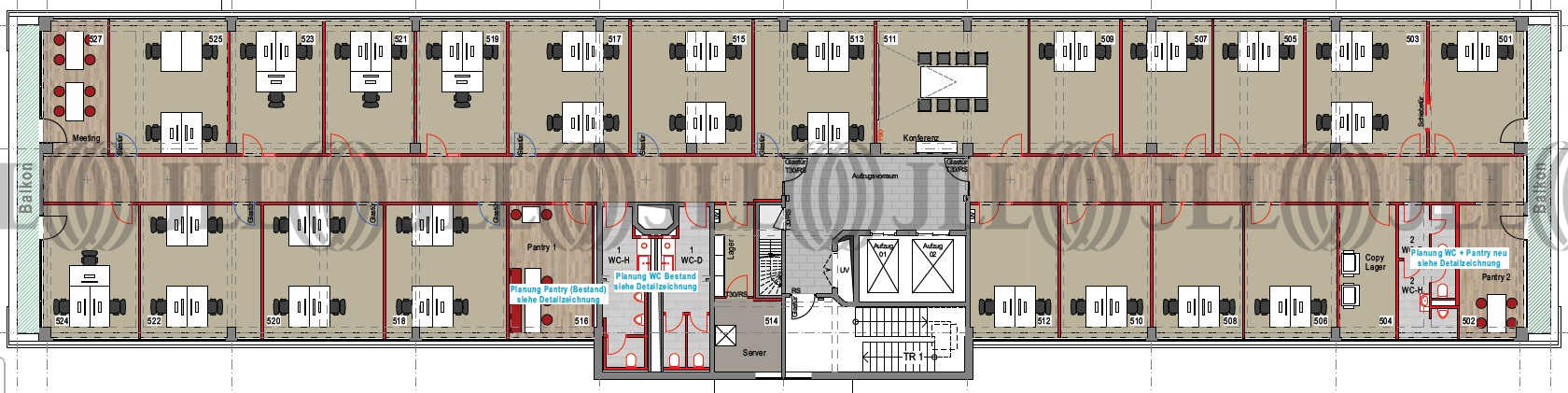
- Grundriss
- Exposé herunterladen
- Ihr Kontakt
- Anfrage senden
Objekt
Das 5-geschossige Büro- und Geschäftshaus wurde 1985 erbaut. Durch die hervorragende Anbindung an die Bundesautobahn, wie auch den internationalen Luftverkehr, stehen Ihnen in wenigen Minuten alle Wege offen.
Zertifizierungen
Energieausweis
Für diese Liegenschaft liegt ein Bedarfsausweis vom 12.04.2024 vom Eigentümer/Vermieter vor. Die wesentlichen Energieträger der Liegenschaft sind Erdgas schwer, Strom. Der Endenergiebedarf Strom beträgt 16,6 kWh/(m²*a). Der Endenergiebedarf Wärme beträgt 109,6 kWh/(m²*a).Verfügbare Fläche
Lage und Verkehrsanbindung
Das Bürogebäude liegt verkehrsgünstig in unmittelbarer Nähe zum Hamburger Flughafen. Eine Tankstelle befindet sich in der Nähe. Dienstleister des täglichen Bedarfs befinden sich in der Nähe.
- Flughafen, Hamburg, Fahrzeit: 4 min
- Bundesautobahn, A 7, Fahrzeit: 10 min
- Bus, Röntgenstraße, Gehzeit: 2 min
- Hauptbahnhof, Hamburg, Fahrzeit: 25 min
Ihr Kontakt

Jan-Philipp Scheibe
Ihr Kontakt



