Büros
ID H0651Provisionsfrei
Aktualisiert
Büroimmobilie - Hamburg, Neustadt - H0651
Neustadt, 20354, Hamburg, Hamburg
22 € / m²
- Fläche406 - 812 m²
- Verfügbarkeit01.09.2026
- Objekt
- Ausstattung
- Lage und Verkehrsanbindung
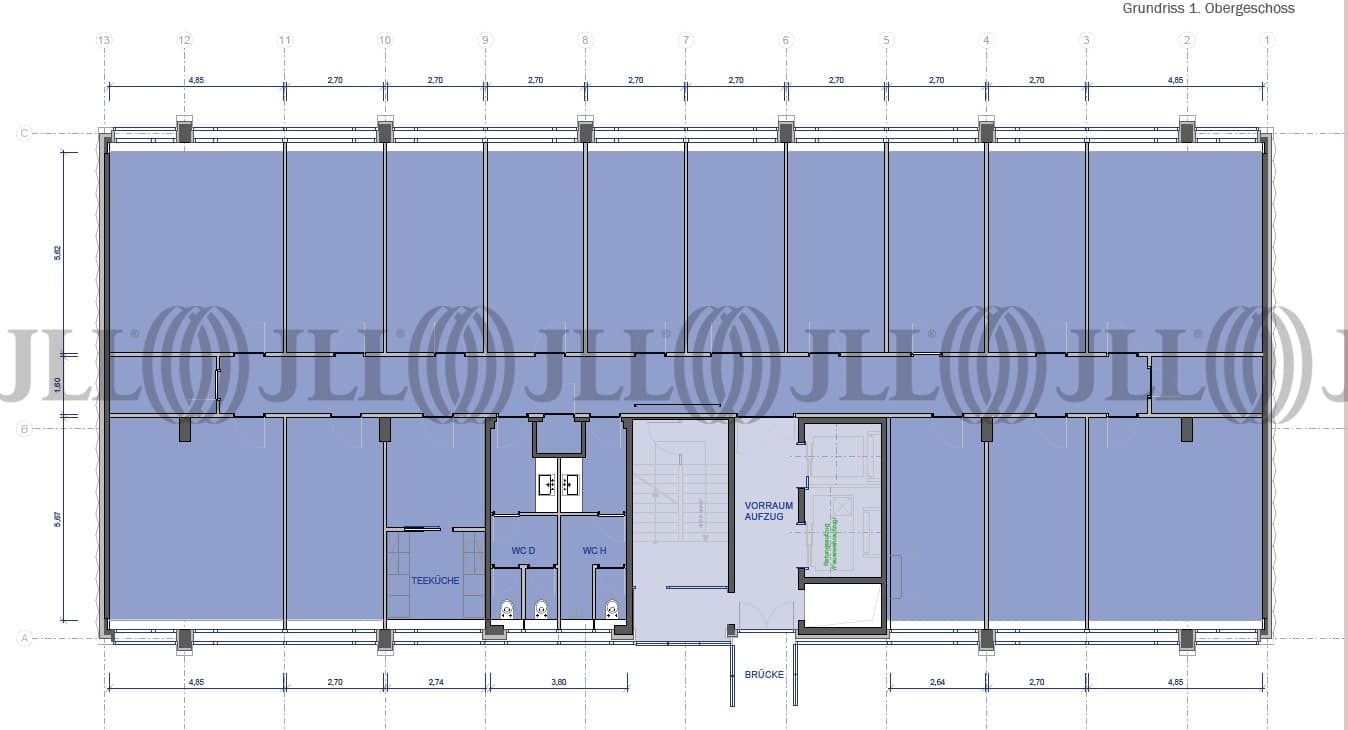
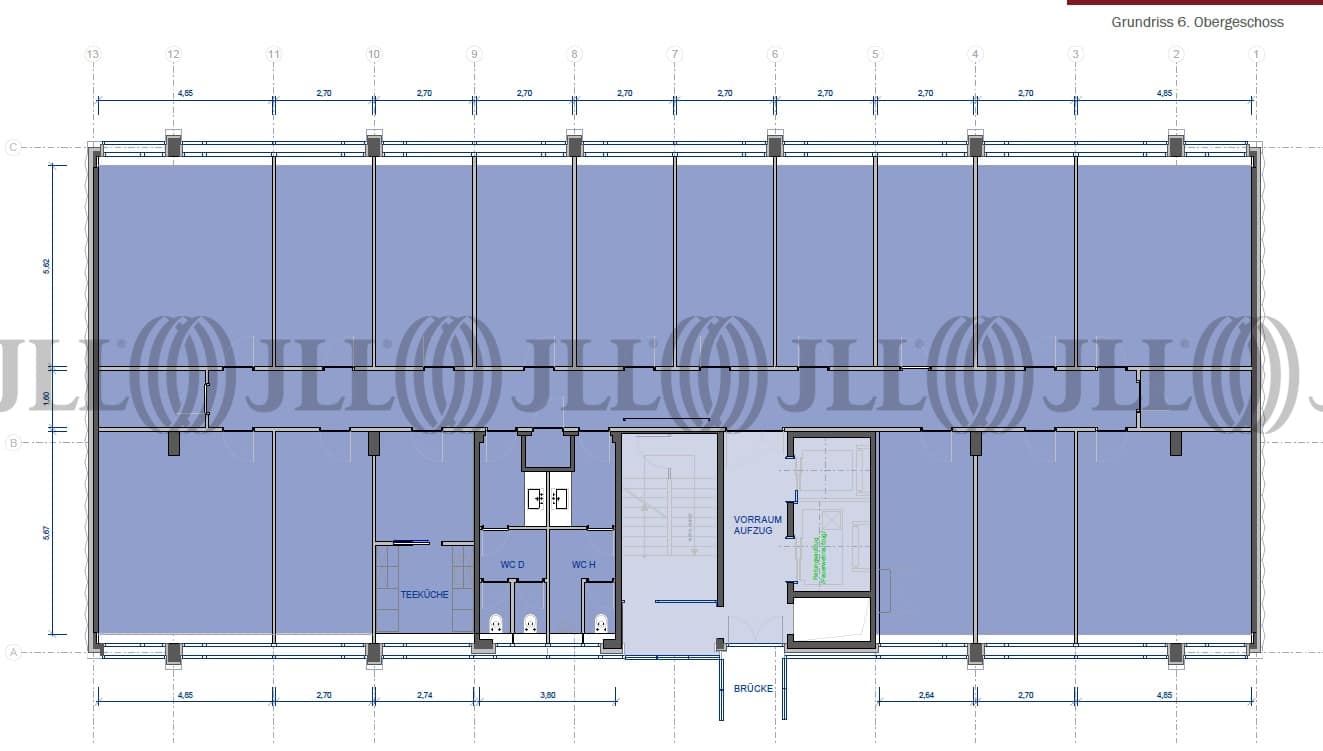
- Grundrisse
- Exposé herunterladen
- Ihr Kontakt
- Anfrage senden
Objekt
Das denkmalgeschütze Hochhaus wurde 1960 unter Berücksichtigung modernster Bau-und Fassadentechnik erbaut. Die großzügige Eingangshalle ist mit einem Natursteinboden, Milchglaselementen und einem attraktiven Beleuchtungssystem ausgestattet. Die Fläche ist sofort bezugsfertig und verfügt über einen Teppichboden und gut belichtete Büros. Die Sanitäranlagen sowie die Pantry werden mit der Nachbarmietung gemeinschaftlich genutzt.
Zertifizierungen
Energieausweis
Für diese Liegenschaft liegt ein Verbrauchsausweis vom 06.01.2025 vom Eigentümer/Vermieter vor. Die wesentlichen Energieträger der Liegenschaft sind Fernwärme, Heizwerk, fossil. Der Endenergieverbrauch Strom beträgt 40.2 kWh/(m²*a). Der Endenergieverbrauch Wärme beträgt 97 kWh/(m²*a).Verfügbare Fläche
Lage und Verkehrsanbindung
- Flughafen, Hamburg, Fahrzeit: 17 min
- Bundesautobahn, A 1, Fahrzeit: 20 min
- Bundesautobahn, A 24, Fahrzeit: 15 min
- Bus, Bushaltestelle Stephansplatz Buslinien 4,5, Gehzeit: 2 min
Ihr Kontakt

Jan-Philipp Scheibe
Ihr Kontakt
Marktinformationen
Mietmarkt
Neustadt, Hamburg
siehe 25 passende MietobjekteErfahren Sie mehr
* Durchschnittspreis auf Grundlage historischer Transaktionen.




