Büros
ID H0541Büroimmobilie - Hamburg, Neustadt - H0541
Neustadt, 20354, Hamburg, Hamburg
Provisionspflichtig: bei Anmietung 3 Brutto-Monatsmieten zzgl. gesetzlicher Umsatzsteuer.** der Wert kann je nach Vertragslaufzeit variieren.
Kontaktieren Sie uns für den Preis
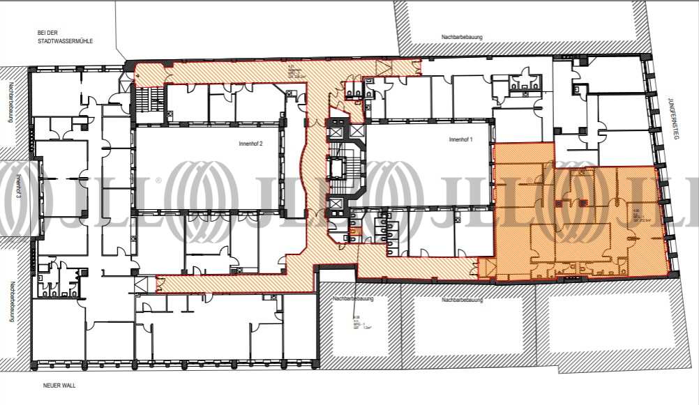
- Fläche317 - 799 m²
- VerfügbarkeitSofort
- Objekt
- Ausstattung
- Lage und Verkehrsanbindung
- Grundrisse
- Exposé herunterladen
- Ihr Kontakt
- Anfrage senden
Objekt
Dieses denkmalgeschützte sehr imposante Büro- und Geschäftshaus wurde 1914/1915 erbaut und 2011 aufwendig saniert. Das historische Treppenhaus besticht durch interessante Mosaiksteine und Marmortreppen.
Die Büroflächen werden über den Neuen Wall erschlossen, erstrecken sich um einen natürlich belichteten Innenhof und sind über Personenaufzüge erreichbar. Ein schöner Weitblick über Binnen- und Außenalster mit einer langen Front zum Jungfernstieg rundet das Gesamtambiente ab.
Die Büroflächen werden über den Neuen Wall erschlossen, erstrecken sich um einen natürlich belichteten Innenhof und sind über Personenaufzüge erreichbar. Ein schöner Weitblick über Binnen- und Außenalster mit einer langen Front zum Jungfernstieg rundet das Gesamtambiente ab.
Verfügbare Fläche
Lage und Verkehrsanbindung
Der Neue Wall genießt einen exzellenten Ruf als Büro- und Einzelhandelsstandort. Zahlreiche Einkaufsmöglichkeiten und diverse Restaurants liegen fußläufig vom Gebäude. Dienstleister des täglichen Bedarfs befinden sich in der Nähe.
- Hauptbahnhof, Hauptbahnhof, Gehzeit: 13 min
- Bahnhof, Jungfernstieg (U/S), Gehzeit: 1 min
- Bundesautobahn, A 1, Fahrzeit: 10 min
- Bundesautobahn, A 7, Fahrzeit: 20 min
- Flughafen, Hamburg, Entfernung: 10 km
Ihr Kontakt

Janina Voß
Ihr Kontakt
Marktinformationen
Mietmarkt
Neustadt, Hamburg
siehe 28 passende MietobjekteErfahren Sie mehr
* Durchschnittspreis auf Grundlage historischer Transaktionen.

