Büros
ID H0436Provisionsfrei
Aktualisiert
Büroimmobilie - Hamburg, Hammerbrook - H0436
Hammerbrook, 20097, Hamburg, Hamburg
12,50 € / m²
- Fläche237 - 4.055 m²
- VerfügbarkeitSofort
- Objekt
- Ausstattung
- Lage und Verkehrsanbindung
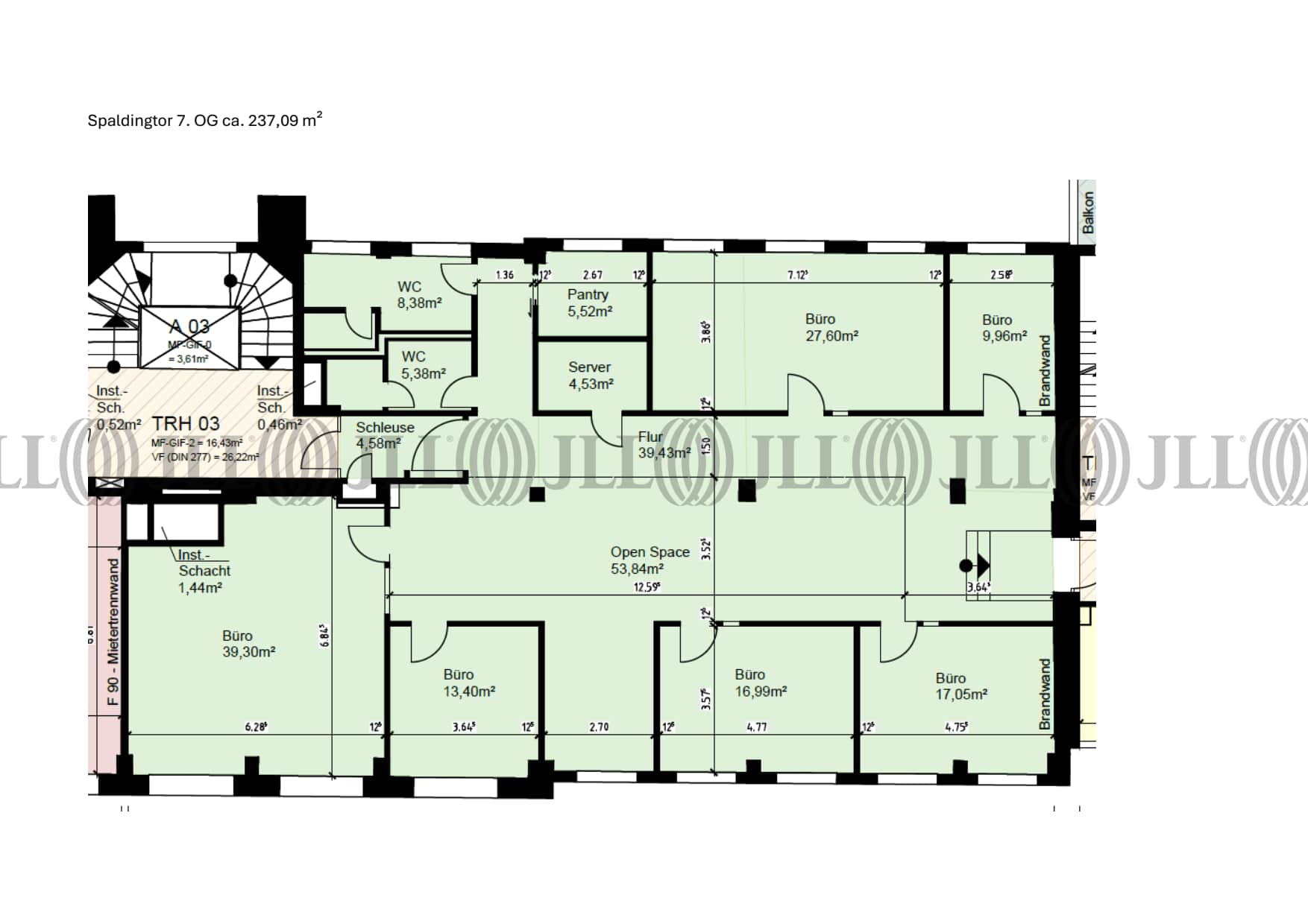
- Grundrisse
- Exposé herunterladen
- Ihr Kontakt
- Anfrage senden
Objekt
Dieses beeindruckende, freistehende 8-geschossige Gebäude zieht mit seiner dynamischen und innovativen Architektur alle Blicke auf sich. Das bestehende Gebäude erstrahlt nach einer umfassenden Modernisierung in neuem Glanz und wurde zudem durch einen modernen Neubau erweitert.
Die Büroflächen bieten eine wirtschaftliche und flexible Raumgestaltung, die individuell angepasst und umgestaltet werden kann, um unterschiedlichen Anforderungen und Bedürfnissen gerecht zu werden.
Die Büroflächen bieten eine wirtschaftliche und flexible Raumgestaltung, die individuell angepasst und umgestaltet werden kann, um unterschiedlichen Anforderungen und Bedürfnissen gerecht zu werden.
Zertifizierungen
Energieausweis
Für diese Liegenschaft liegt ein Verbrauchsausweis vom 2015-10-19 vom Eigentümer/Vermieter vor. Die wesentlichen Energieträger der Liegenschaft sind Nahwärme,Fernwärme. Der Endenergieverbrauch Strom beträgt 25.00 kWh/(m²*a). Der Endenergieverbrauch Wärme beträgt 73.00 kWh/(m²*a).Verfügbare Fläche
Lage und Verkehrsanbindung
Zentrale Lage am Puls der Stadt. Gute Erreichbarkeit und optimale Anbindungen an die A1, A7, A24 und das öffentliche Verkehrsnetz. Eine Tankstelle befindet sich in der Nähe. Dienstleister des täglichen Bedarfs befinden sich in der Nähe.
- Flughafen, Hamburg, Fahrzeit: 25 min
- Bundesautobahn, A 1, Fahrzeit: 8 min
- Bundesautobahn, A 7, Fahrzeit: 20 min
- Hauptbahnhof, Hauptbahnhof, Gehzeit: 10 min
Ihr Kontakt

Jan-Philipp Scheibe
Ihr Kontakt
Marktinformationen
Mietmarkt
Hammerbrook, Hamburg
Gew. Ø-Miete
12,50 € / m²
siehe 24 passende MietobjekteErfahren Sie mehr* Durchschnittspreis auf Grundlage historischer Transaktionen.







