Büros
ID H0421Provisionsfrei
Aktualisiert
Büroimmobilie - Hamburg, Hamburg-Altstadt - H0421
Hamburg-Altstadt, 20095, Hamburg, Hamburg
24 € / m²
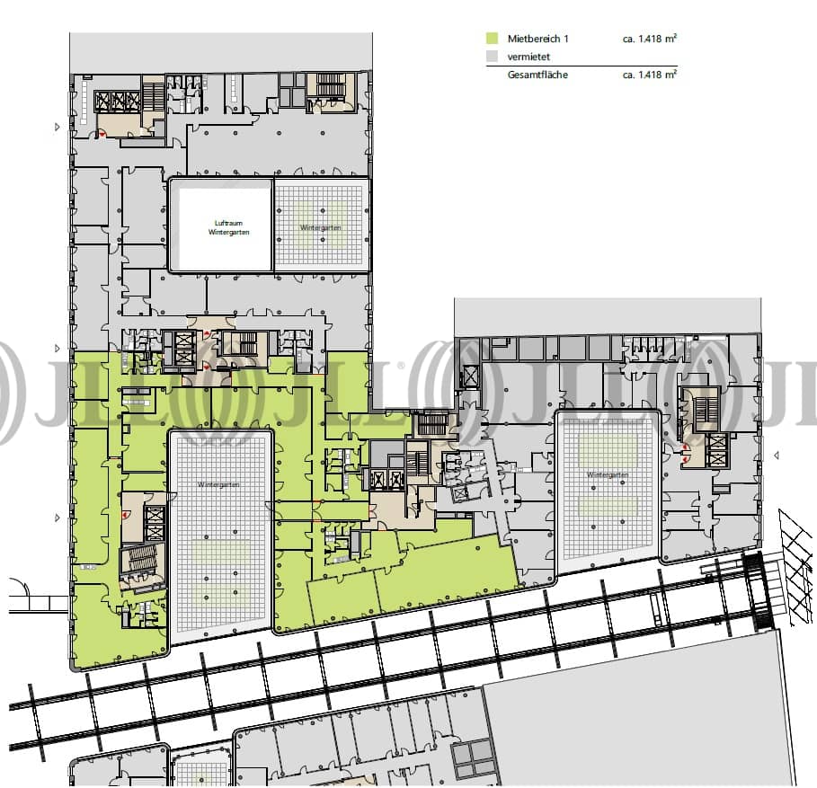
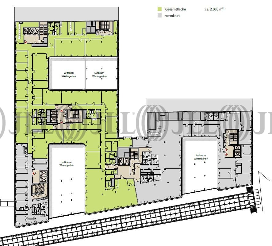
- Fläche1.135 - 9.189 m²
- VerfügbarkeitAuf Anfrage
- Objekt
- Ausstattung
- Lage und Verkehrsanbindung
- Grundrisse
- Exposé herunterladen
- Ihr Kontakt
- Anfrage senden
Objekt
Die EUROPA-PASSAGE erhält ihren Namen nach dem einstigen Hotelbau am Ballindamm.
Dieses Objekt zwischen westlicher und östlicher Innenstadtlage sticht durch seine bekannte und einzigartige Architektur und Atmosphäre sowie exklusiver Lage hervor.
Die Raumaufteilung erfolgt nach den Bedürfnissen des Mieters in Absprache mit dem Eigentümer.
Dieses Objekt zwischen westlicher und östlicher Innenstadtlage sticht durch seine bekannte und einzigartige Architektur und Atmosphäre sowie exklusiver Lage hervor.
Die Raumaufteilung erfolgt nach den Bedürfnissen des Mieters in Absprache mit dem Eigentümer.
Zertifizierungen
Energieausweis
Für diese Liegenschaft liegt ein Bedarfsausweis vom 08.05.2020 vom Eigentümer/Vermieter vor. Die wesentlichen Energieträger der Liegenschaft sind Heizwerk, fossil, Strom. Der Endenergiebedarf Strom beträgt 34.00 kWh/(m²*a). Der Endenergiebedarf Wärme beträgt 41.00 kWh/(m²*a).Verfügbare Fläche
Lage und Verkehrsanbindung
Die EUROPA-PASSAGE befindet sich am Jungfernstieg, direkt gegenüber der Binnenalster. Dienstleister des täglichen Bedarfs befinden sich in der Nähe.
- Flughafen, Hamburg, Fahrzeit: 23 min
- Bundesautobahn, A 1, Fahrzeit: 10 min
- Bundesautobahn, A 7, Fahrzeit: 13 min
- Hauptbahnhof, Hauptbahnhof, Gehzeit: 8 min
- Bahnhof, Jungfernstieg (U-/S-Bahn), Gehzeit: 1 min
Ihr Kontakt

Zainab Bo-Hamdan
Ihr Kontakt


