Büros
ID H0376Büroimmobilie - Hamburg, Hammerbrook - H0376
Hammerbrook, 20097, Hamburg, Hamburg
Provisionspflichtig: bei Anmietung 3 Brutto-Monatsmieten zzgl. gesetzlicher Umsatzsteuer.** der Wert kann je nach Vertragslaufzeit variieren.
Kontaktieren Sie uns für den Preis
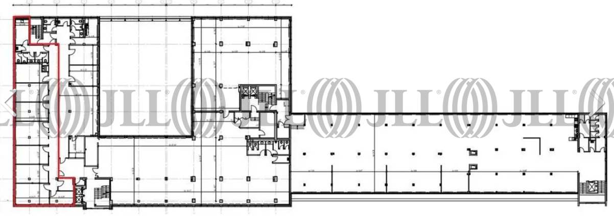
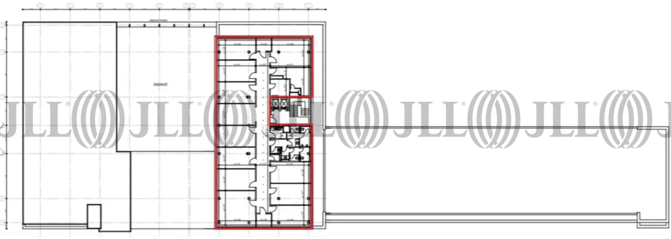
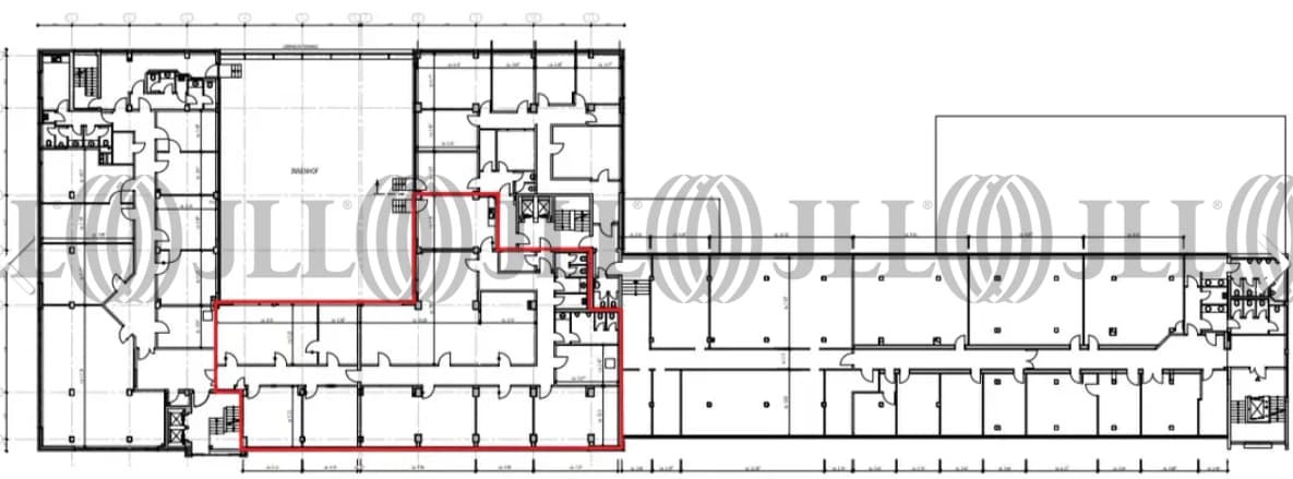
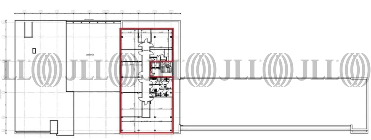
- Fläche205 - 21.979 m²
- VerfügbarkeitSofort
- Objekt
- Ausstattung
- Lage und Verkehrsanbindung
- Grundrisse
- Exposé herunterladen
- Ihr Kontakt
- Anfrage senden
Objekt
Das „Spalding-Center“ besticht durch seine markante Ecklage. Der begrünte Innenhof verfügt über zahlreiche Sitzmöglichkeiten und ermöglicht es Ihren Mitarbeitern eine ruhige Mittagspause zu verbringen.
Die drei Eingangsbereiche signalisieren durch verschiedene Farbmuster eine gewisse Individualität und sind modern und freundlich gestaltet.
Die Flächen werden in einem unrenovierten Zustand übergeben.
Die drei Eingangsbereiche signalisieren durch verschiedene Farbmuster eine gewisse Individualität und sind modern und freundlich gestaltet.
Die Flächen werden in einem unrenovierten Zustand übergeben.
Zertifizierungen
Energieausweis
Für diese Liegenschaft liegt ein Verbrauchsausweis vom 2019-09-02 vom Eigentümer/Vermieter vor. Die wesentlichen Energieträger der Liegenschaft sind Heizwerk, fossil,Nahwärme,Fernwärme. Der Endenergieverbrauch Strom beträgt 15.00 kWh/(m²*a). Der Endenergieverbrauch Wärme beträgt 99.00 kWh/(m²*a).Verfügbare Fläche
Lage und Verkehrsanbindung
Das angebotene Bürogebäude befindet sich im Hamburger Stadtteil Hammerbrook. In der fußläufigen Umgebung befinden sich diverse Geschäfte für den alltäglichen Bedarf. Darüber hinaus erreicht man den Hamburger Hauptbahnhof in ca. 10 Gehminuten und die Bushaltstelle Repsoldstraße in rund 2 Gehminuten. Eine Tankstelle befindet sich in der Nähe. Dienstleister des täglichen Bedarfs befinden sich in der Nähe.
- Flughafen, Hamburg, Fahrzeit: 24 min
- Bundesautobahn, A 1, Fahrzeit: 8 min
- Bundesautobahn, A 7, Fahrzeit: 18 min
- Bundesautobahn, A 24, Fahrzeit: 9 min
- Bus, Bushaltestelle Albertstraße Buslinien 112, Gehzeit: 2 min
Ihr Kontakt

Jan-Philipp Scheibe
Ihr Kontakt
Marktinformationen
Mietmarkt
Hammerbrook, Hamburg
siehe 24 passende MietobjekteErfahren Sie mehr
* Durchschnittspreis auf Grundlage historischer Transaktionen.










