Büros
ID H0329Provisionsfrei
Büroimmobilie - Hamburg, Hamburg-Altstadt - H0329
Hamburg-Altstadt, 20457, Hamburg, Hamburg
20 € / m²
- Fläche106 - 5.340 m²
- VerfügbarkeitAuf Anfrage
- Objekt
- Ausstattung
- Lage und Verkehrsanbindung
- Grundrisse
- Exposé herunterladen
- Ihr Kontakt
- Anfrage senden
Objekt
Der NEUE DOVENHOF besticht durch seine markante Architektur inmitten des Hamburger Börsen- und Kontorviertels. Die attraktive Eingangshalle des Hauses wird zum Teil als Ausstellungsfläche für Kunstskulpturen genutzt und steht den Mietern des Hauses für Veranstaltungen zur Verfügung.
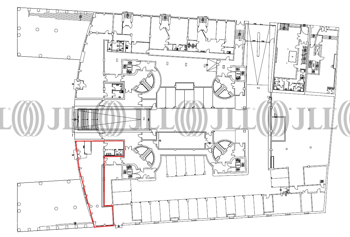
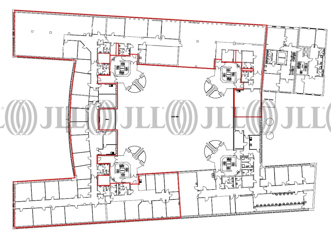
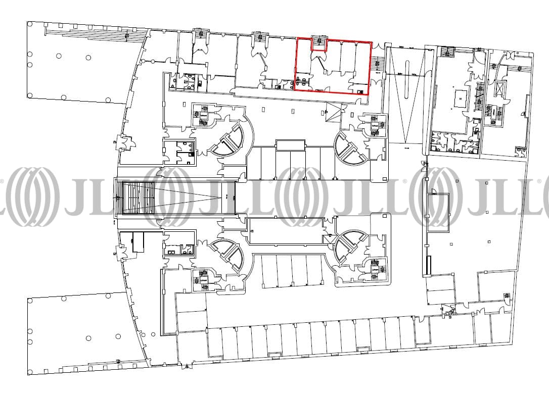
Die Raumaufteilung kann in Absprache mit dem Vermieter noch individuell verändert werden.
Die Raumaufteilung kann in Absprache mit dem Vermieter noch individuell verändert werden.
Zertifizierungen
Energieausweis
Für diese Liegenschaft liegt ein Bedarfsausweis vom 17.09.2014 vom Eigentümer/Vermieter vor. Die wesentlichen Energieträger der Liegenschaft sind KWK, Strom. Der Endenergiebedarf Strom beträgt 20.00 kWh/(m²*a). Der Endenergiebedarf Wärme beträgt 114.00 kWh/(m²*a).Verfügbare Fläche
Lage und Verkehrsanbindung
Das Objekt liegt zwischen der Willy-Brandt-Straße und Brandstwiete und nahe der Mönckebergstraße.
- Flughafen, Hamburg, Fahrzeit: 25 min
- Bundesautobahn, A 1, Fahrzeit: 10 min
- Bundesautobahn, A 7, Fahrzeit: 18 min
- Bundesautobahn, A 24, Fahrzeit: 12 min
- Bus, Bushaltestelle Brandstwiete Buslinien M4. M6, Gehzeit: 2 min
Ihr Kontakt

Janina Voß
Ihr Kontakt






