Büros
ID H0305Provisionsfrei
Büroimmobilie - Hamburg, Ottensen - H0305
Ottensen, 22765, Hamburg, Hamburg
20,85 € / m²
- Fläche283 - 6.563 m²
- VerfügbarkeitSofort
- Objekt
- Ausstattung
- Lage und Verkehrsanbindung
- Grundrisse
- Exposé herunterladen
- Ihr Kontakt
- Anfrage senden
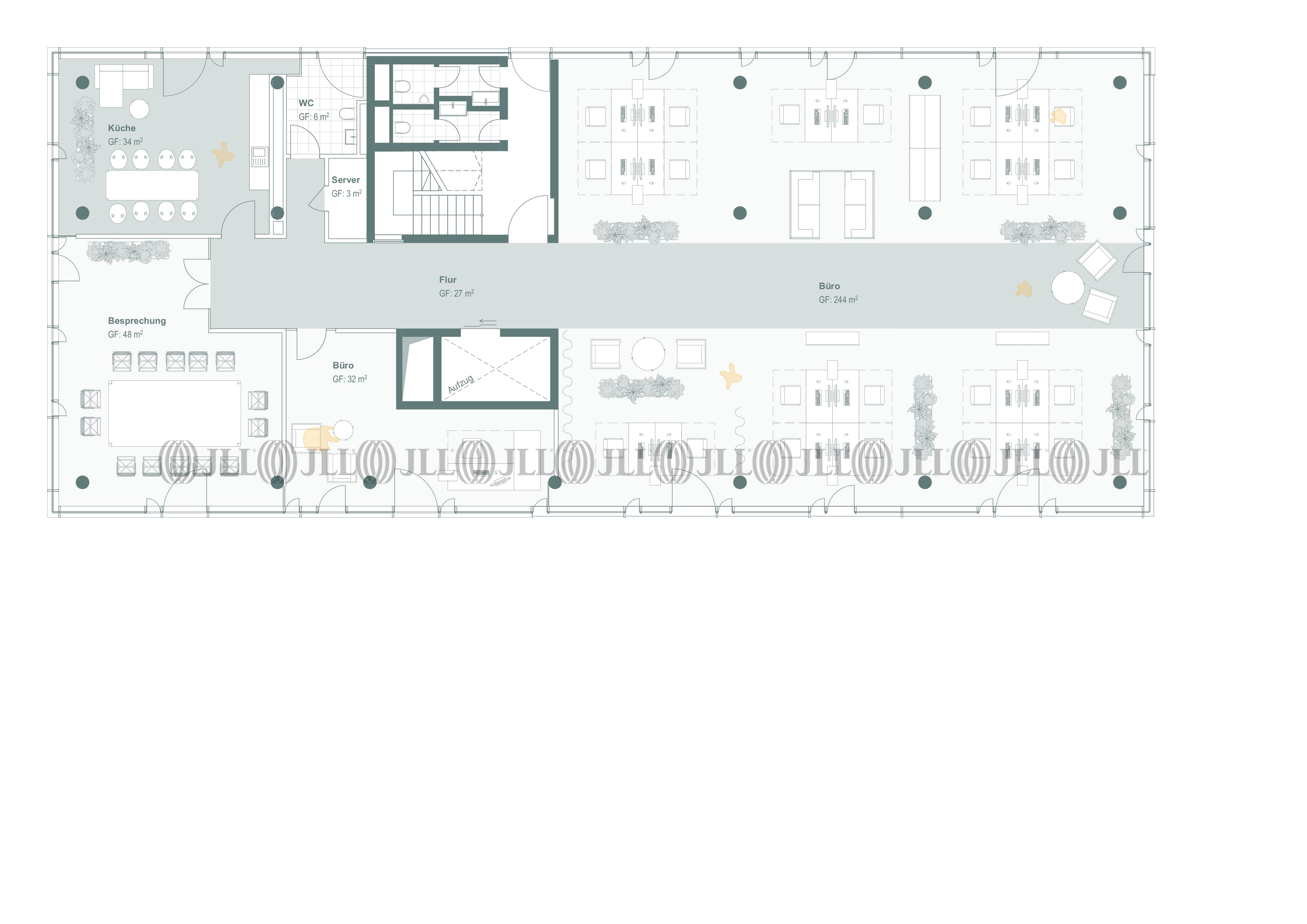
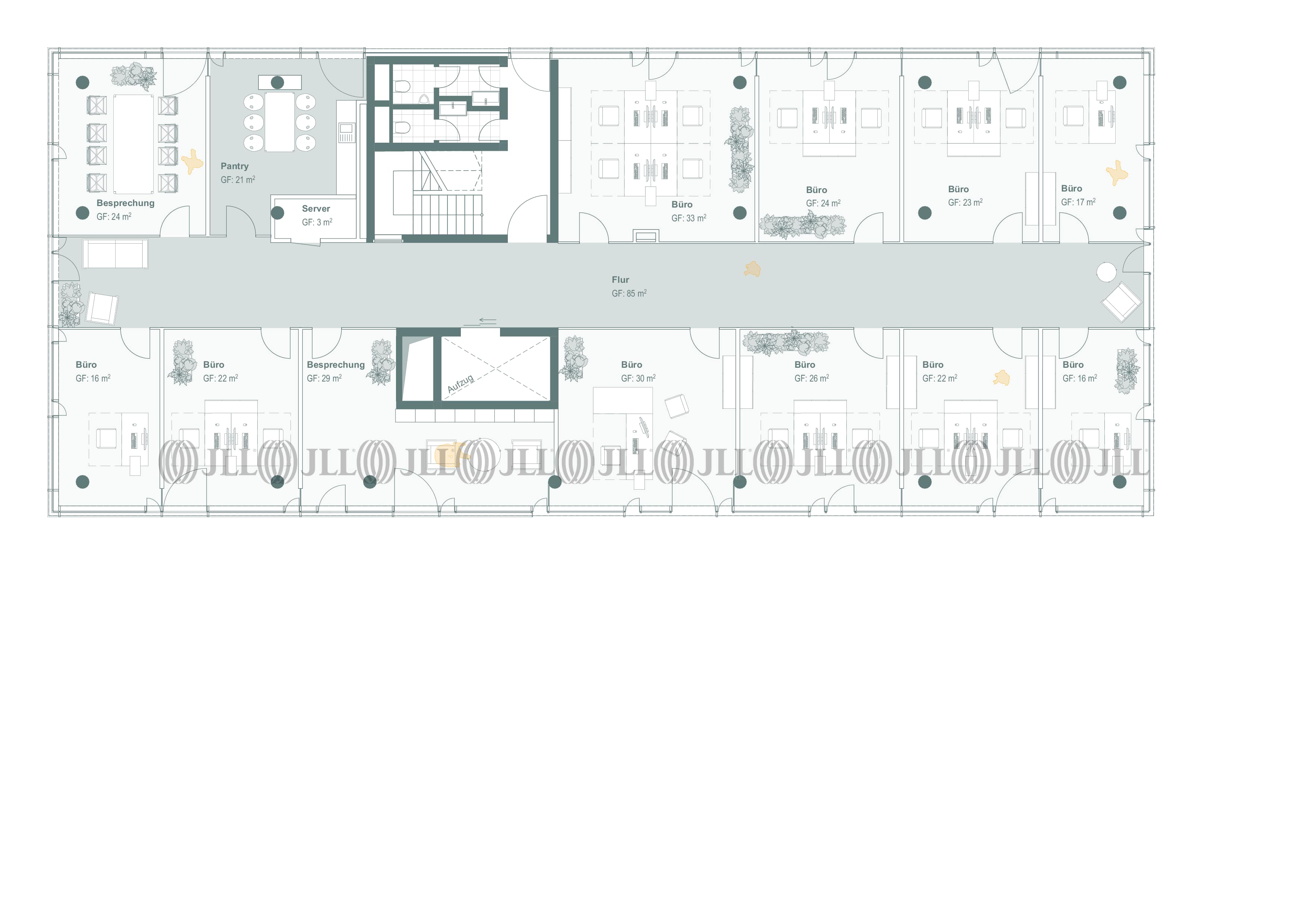
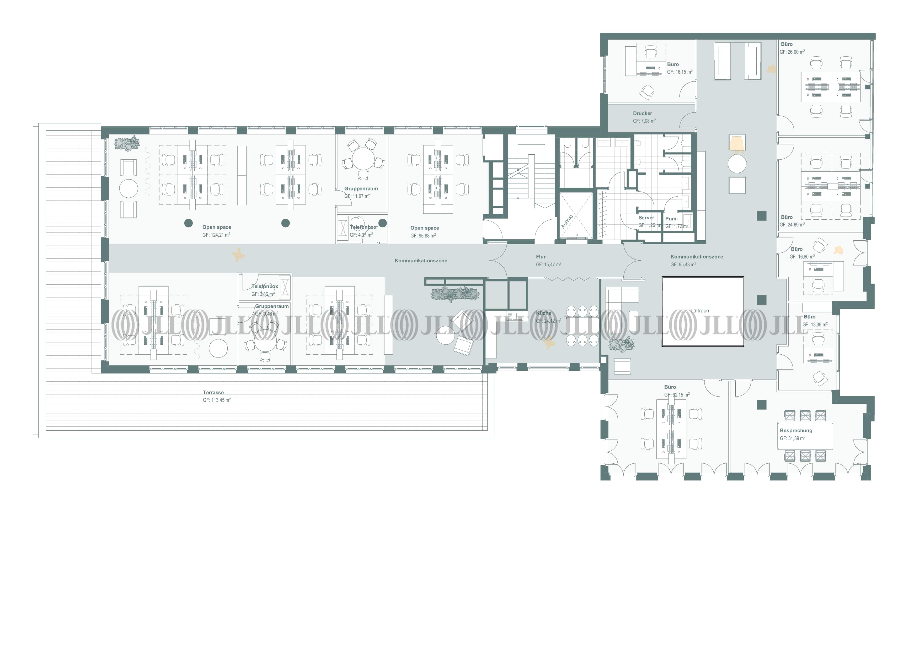
Objekt
Das Westend Ottensen präsentiert sich als modernes Bürogebäude mit zeitloser Eleganz und einem hohen architektonischen Anspruch. Die klassisch gegliederte Fassade mit bodentiefen Fenstern verleiht dem Objekt eine repräsentative Ausstrahlung, während der großzügige Innenhof mit Springbrunnen eine besondere Aufenthaltsqualität schafft.
Die Flächen sind flexibel aufteilbar und bieten dank lichtdurchfluteter Räume, Glastrennwänden und hochwertigen Bodenbelägen eine ideale Grundlage für unterschiedlichste Nutzungskonzepte. Moderne Ausstattungsdetails wie Kabelkanäle für IT-Infrastruktur, Pantryküchen, getrennte Sanitärbereiche sowie eine Terrasse im Erdgeschoss runden das Angebot ab.
Neben der gestalterischen Qualität überzeugt das Gebäude durch eine durchdachte technische Ausstattung: Aufzüge, barrierefreie Erschließung, eine hauseigene Tiefgarage und PKW-Ladestationen gewährleisten höchsten Nutzungskomfort. Mit insgesamt rund 13.000 m² Bürofläche im Quartier bietet das Westend Ottensen optimale Rahmenbedingungen für Unternehmen, die Wert auf Qualität, Funktionalität und ein repräsentatives Umfeld legen.
Die Flächen sind flexibel aufteilbar und bieten dank lichtdurchfluteter Räume, Glastrennwänden und hochwertigen Bodenbelägen eine ideale Grundlage für unterschiedlichste Nutzungskonzepte. Moderne Ausstattungsdetails wie Kabelkanäle für IT-Infrastruktur, Pantryküchen, getrennte Sanitärbereiche sowie eine Terrasse im Erdgeschoss runden das Angebot ab.
Neben der gestalterischen Qualität überzeugt das Gebäude durch eine durchdachte technische Ausstattung: Aufzüge, barrierefreie Erschließung, eine hauseigene Tiefgarage und PKW-Ladestationen gewährleisten höchsten Nutzungskomfort. Mit insgesamt rund 13.000 m² Bürofläche im Quartier bietet das Westend Ottensen optimale Rahmenbedingungen für Unternehmen, die Wert auf Qualität, Funktionalität und ein repräsentatives Umfeld legen.
Zertifizierungen
Energieausweis
Für diese Liegenschaft liegt ein Verbrauchsausweis vom 24.11.2011 vom Eigentümer/Vermieter vor. Der wesentliche Energieträger der Liegenschaft ist Erdgas schwer. Der Endenergieverbrauch Strom beträgt 15.00 kWh/(m²*a). Der Endenergieverbrauch Wärme beträgt 98.00 kWh/(m²*a).Verfügbare Fläche
Lage und Verkehrsanbindung
Das Westend Ottensen profitiert von einer außergewöhnlichen Lage im Herzen von Hamburg-Ottensen, einem der gefragtesten und dynamischsten Stadtteile der Hansestadt. Ottensen hat sich zu einem urbanen Trendviertel mit hoher Lebens- und Arbeitsqualität entwickelt, das eine inspirierende Arbeitsatmosphäre mit erstklassiger Infrastruktur verbindet. Die Verkehrsanbindung ist für Büronutzer optimal gestaltet. Die S-Bahn Station Ottensen liegt in unmittelbarer Nähe und bietet über die Linien S1 eine direkte Verbindung zur Hamburger Innenstadt in nur zehn Minuten. Mitarbeiter und Geschäftspartner erreichen den Standort bequem mit öffentlichen Verkehrsmitteln, während die sehr gute Anbindung an die Autobahnen A7 und A23 auch die Anreise mit dem PKW ermöglicht. Das Umfeld zeichnet sich durch eine lebendige Mischung aus etablierten Unternehmen, kreativen Dienstleistern und einer vielfältigen Gastronomie- und Einzelhandelslandschaft aus. Die nahegelegene Ottenser Hauptstraße bietet zahlreiche Möglichkeiten für Geschäftsessen und die Mittagspause, während das kreative Flair des Viertels mit seinen Galerien und Kultureinrichtungen eine inspirierende Arbeitsumgebung schafft. Für Unternehmen, die auf Sichtbarkeit und Repräsentativität Wert legen, bietet die zentrale Lage zwischen Hamburger Innenstadt und Elbe ideale Voraussetzungen. Die kontinuierliche Aufwertung des Quartiers und die etablierte Nachbarschaft renommierter Unternehmen machen Westend Ottensen zu einer erstklassigen Büroadresse mit langfristig stabiler Wertentwicklung.
- S-Bahn, Ottensen, Gehzeit: 5 min
- Bus, Gaußstraße, Gehzeit: 5 min
- Bundesautobahn, A7, Fahrzeit: 8 min
- Flughafen, Hamburg, Fahrzeit: 18 min
Ihr Kontakt

Doreen Redeker
Ihr Kontakt

























