Büros
ID H0230Provisionsfrei
Aktualisiert
Büroimmobilie - Hamburg, Ottensen - H0230
Ottensen, 22763, Hamburg, Hamburg
17,50 € / m²
- Fläche334 - 1.460 m²
- VerfügbarkeitAuf Anfrage
- Objekt
- Ausstattung
- Lage und Verkehrsanbindung
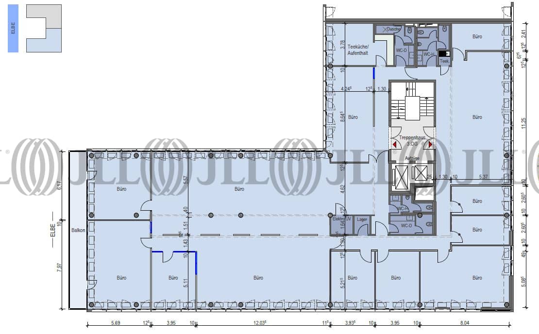
- Grundrisse
- Exposé herunterladen
- Ihr Kontakt
- Anfrage senden
Objekt
Dieses exklusive Büro- und Geschäftshaus wurde 2001 erbaut und verfügt über ein einmaliges Ambiente direkt an der Elbe. Die Bürofläche bietet eine exklusive Ausstattung und durch die bodentiefen Fenster eine sehr gute natürliche Belichtung. Ein Balkon zur Wasserseite bietet für eine Pause den richtigen Ort zum Durchatmen.
Zertifizierungen
Energieausweis
Für diese Liegenschaft liegt ein Verbrauchsausweis vom 20.09.2016 vom Eigentümer/Vermieter vor. Der wesentliche Energieträger der Liegenschaft ist Fernwärme. Der Endenergieverbrauch Strom beträgt 33,68 kWh/(m²*a). Der Endenergieverbrauch Wärme beträgt 62,29 kWh/(m²*a).Verfügbare Fläche
Lage und Verkehrsanbindung
Dieses Objekt befindet sich direkt an der Elbe, unterhalb der Elbchaussee. Restaurants, Cafés sowie der Elbstrand sind in unmittelbarer Nähe.
- Flughafen, Hamburg, Fahrzeit: 30 min
- Bundesautobahn, A 1, Fahrzeit: 20 min
- Bundesautobahn, A 7, Fahrzeit: 8 min
- Bus, Bushaltestelle Neumühler Kirchweg Buslinien 113, Gehzeit: 1 min
Ihr Kontakt

Zainab Bo-Hamdan
Ihr Kontakt








