Büros
ID H0160Provisionsfrei
Aktualisiert
Büroimmobilie - Hamburg, St. Georg - H0160
St. Georg, 20097, Hamburg, Hamburg
7,50 € / m²
- Fläche356 - 11.808 m²
- VerfügbarkeitSofort
- Objekt
- Ausstattung
- Lage und Verkehrsanbindung
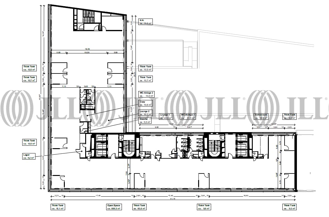
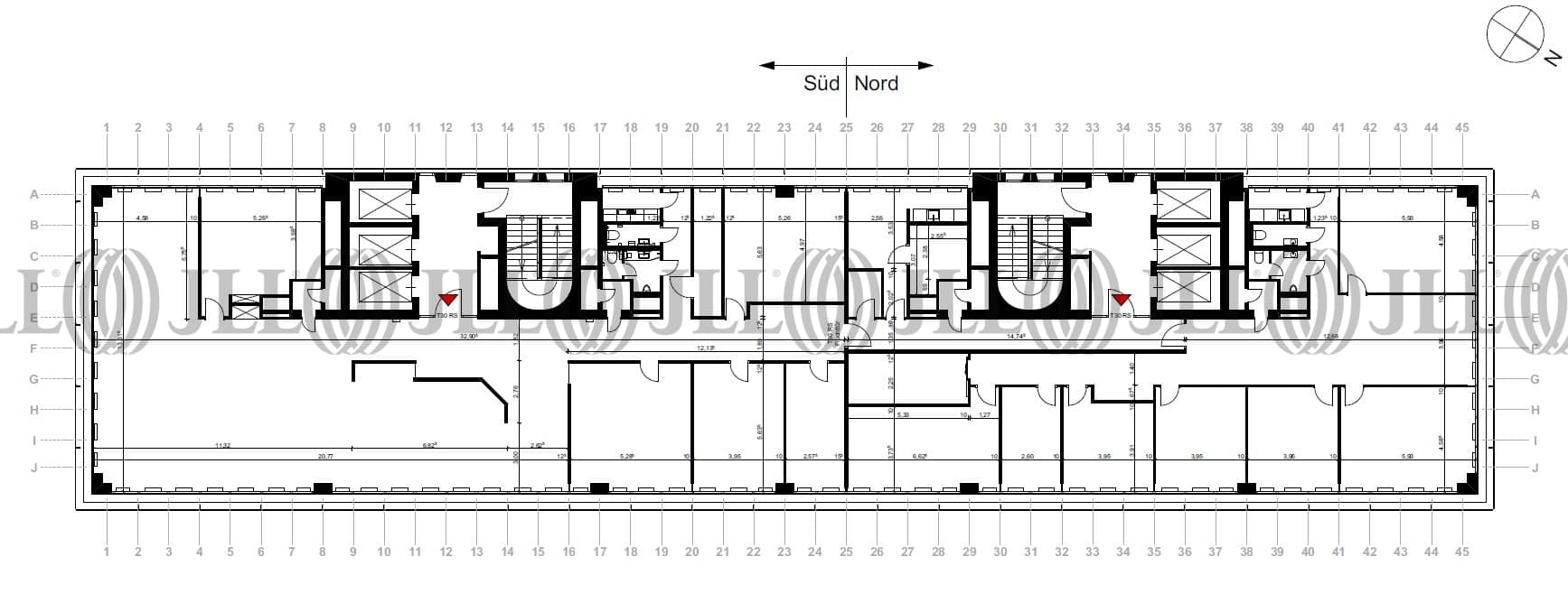
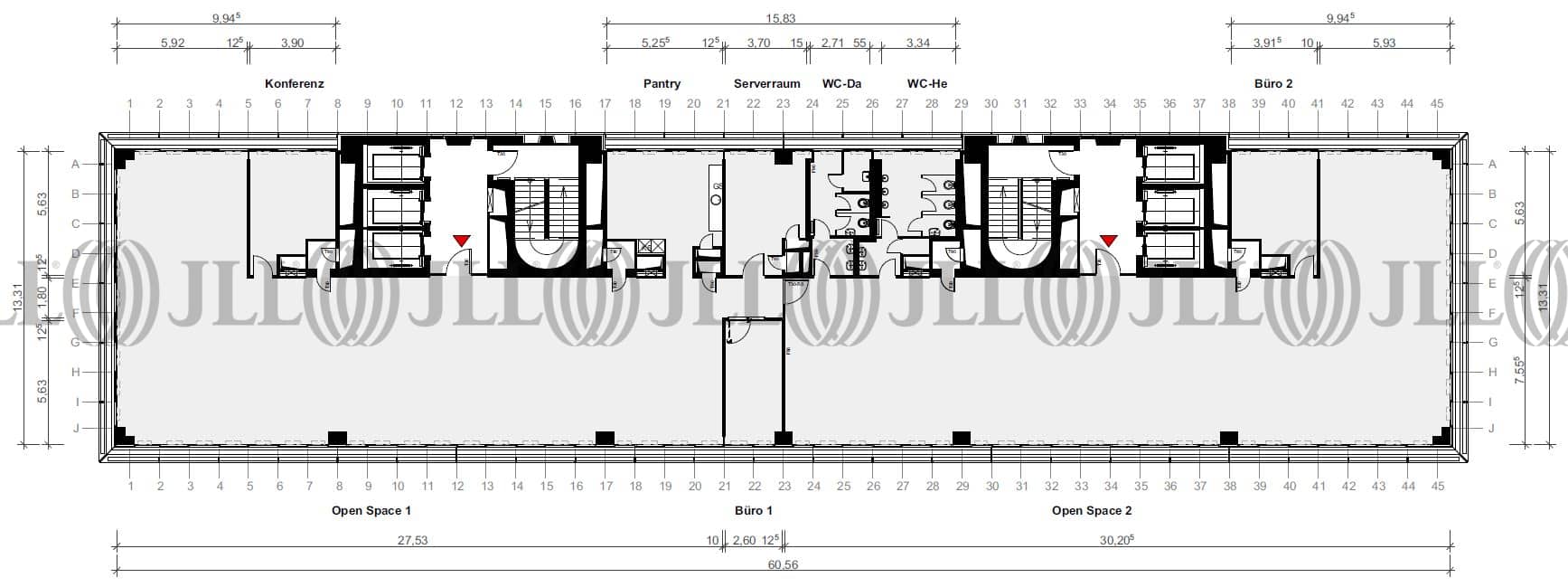
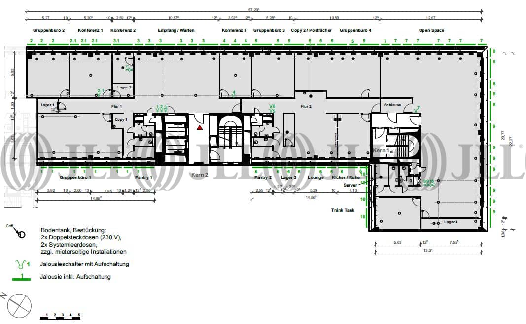
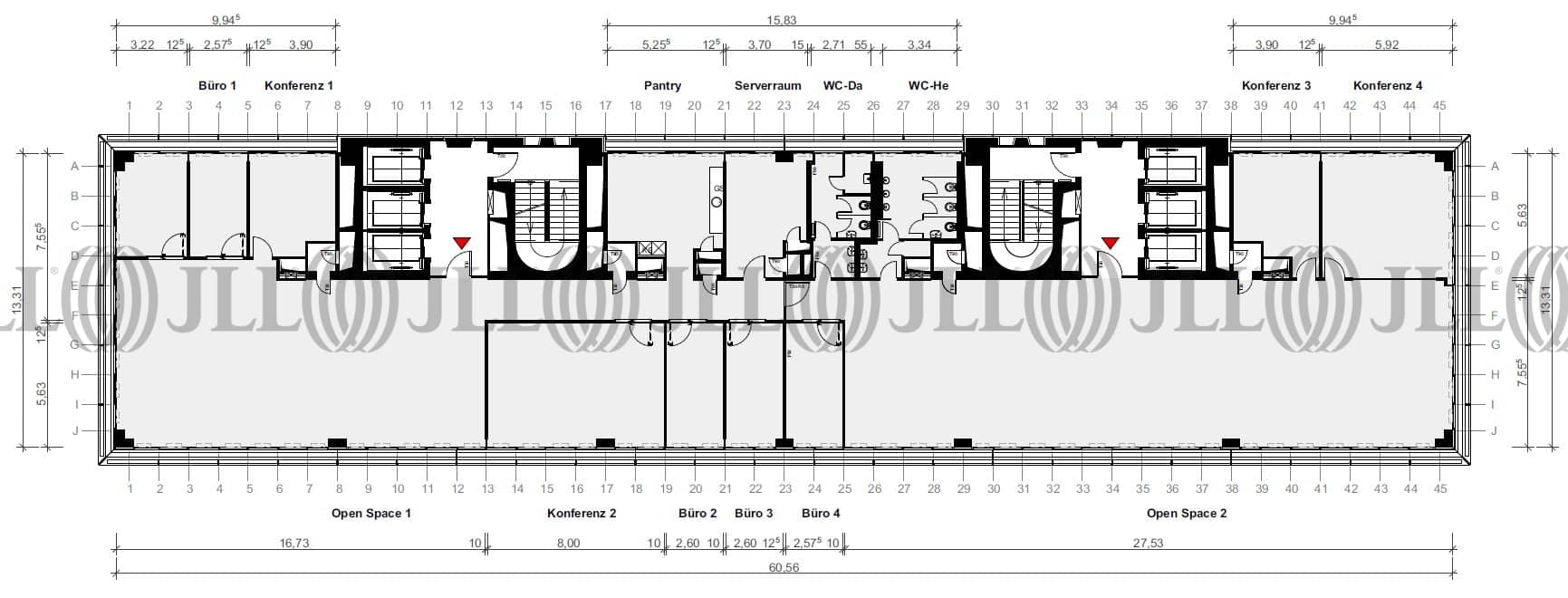
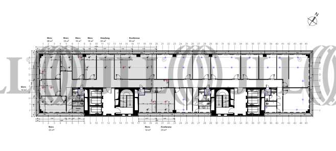
- Grundrisse
- Exposé herunterladen
- Ihr Kontakt
- Anfrage senden
Objekt
In markanter Citylage präsentiert sich das namhafte Berliner Tor Center mit modern ausgestatteten und effizienten Büros.
Über 22 Geschosse erstreckt sich dieses Bürohaus-ensemble über vier miteinander verbundene Bauteile. Aus den oberen Etagen genießen Sie einen traumhaften Blick auf die Stadt. Über repräsentative Eingangsbereiche werden die Flächen erschlossen. Eine hauseigene Kantine bietet kurze Wege in der Mittagspause.
Über 22 Geschosse erstreckt sich dieses Bürohaus-ensemble über vier miteinander verbundene Bauteile. Aus den oberen Etagen genießen Sie einen traumhaften Blick auf die Stadt. Über repräsentative Eingangsbereiche werden die Flächen erschlossen. Eine hauseigene Kantine bietet kurze Wege in der Mittagspause.
Zertifizierungen
Energieausweis
Für diese Liegenschaft liegt ein Bedarfsausweis vom 30.10.2020 vom Eigentümer/Vermieter vor. Die wesentlichen Energieträger der Liegenschaft sind Fernwärme, KWK, Nahwärme. Der Endenergiebedarf Strom beträgt 47.00 kWh/(m²*a). Der Endenergiebedarf Wärme beträgt 212.00 kWh/(m²*a).Verfügbare Fläche
Lage und Verkehrsanbindung
Das Berliner Tor Center zeichnet sich durch seine zentrale Lage aus, die eine hervorragende Erreichbarkeit im Herzen der Stadt bietet. In unmittelbarer Umgebung finden Sie eine Vielzahl von Dienstleistern, die den täglichen Bedarf optimal abdecken. Diese strategische Positionierung macht das Berliner Tor Center zu einem idealen Standort für Geschäftsleute, die sowohl von einer lebendigen Infrastruktur als auch von der Nähe zu wichtigen städtischen Knotenpunkten profitieren möchten.
- Flughafen, Hamburg, Fahrzeit: 22 min
- Bundesautobahn, A 1, Fahrzeit: 10 min
- Bundesautobahn, A 7, Fahrzeit: 23 min
- Bundesautobahn, A 24, Fahrzeit: 8 min
- Bus, Bushaltestelle Berliner Tor Buslinien 31, Gehzeit: 2 min
Ihr Kontakt

Zainab Bo-Hamdan
Ihr Kontakt












