Büros
ID H0155Provisionsfrei
Büroimmobilie - Hamburg, Hammerbrook - H0155
Hammerbrook, 20097, Hamburg, Hamburg
16,50 € / m²
- Fläche316 - 8.080 m²
- VerfügbarkeitAuf Anfrage
- Objekt
- Ausstattung
- Lage und Verkehrsanbindung
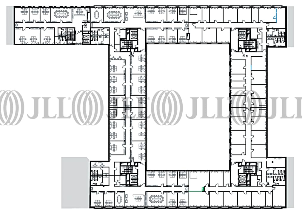
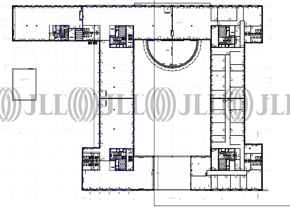
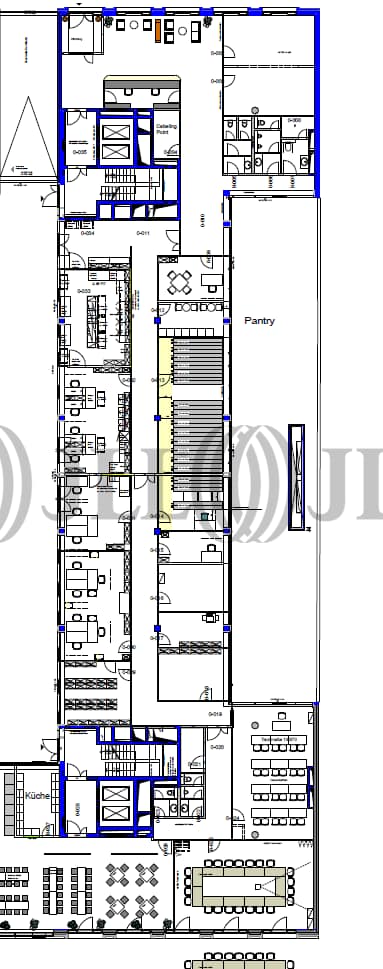
- Grundrisse
- Exposé herunterladen
- Ihr Kontakt
- Anfrage senden
Objekt
Das LINDLEY CARREE bietet Ihnen repräsentative Möglichkeiten für Ihren neuen Unternehmensstandort. Entsprechend den Vorgaben nach Green Building Richtlinien (LEED) wurde bereits bei der Konzeption und der Auswahl der Materialien auf eine nachhaltige Qualität besonders großen Wert gelegt.
Die lichtdurchfluteten Büroflächen werden sehr hochwertig und modern nach Absprache zwischen dem Eigentümer und den Mietern ausgebaut.
Die lichtdurchfluteten Büroflächen werden sehr hochwertig und modern nach Absprache zwischen dem Eigentümer und den Mietern ausgebaut.
Zertifizierungen
Energieausweis
Für diese Liegenschaft liegt ein Bedarfsausweis vom 26.06.2025 vom Eigentümer/Vermieter vor. Die wesentlichen Energieträger der Liegenschaft sind Heizwerk, fossil, KWK. Der Endenergiebedarf Strom beträgt 17.2 kWh/(m²*a). Der Endenergiebedarf Wärme beträgt 75.8 kWh/(m²*a).Verfügbare Fläche
Lage und Verkehrsanbindung
Dieses Objekt finden Sie im Herzen der City Süd direkt am Wasser und der S-Bahn in unmittelbarer Nähe. Eine Tankstelle befindet sich in der Nähe. Dienstleister des täglichen Bedarfs befinden sich in der Nähe.
- Flughafen, Hamburg, Fahrzeit: 25 min
- Bundesautobahn, A 1, Fahrzeit: 10 min
- Bundesautobahn, A 7, Fahrzeit: 25 min
- Bundesautobahn, A 24, Fahrzeit: 15 min
- Bus, Bushaltestelle Hammerbrook Buslinien M25/112, Gehzeit: 1 min
- S-Bahn, Hammerbrook, Gehzeit: 1 min
Ihr Kontakt

Jan-Philipp Scheibe
Ihr Kontakt
Marktinformationen
Mietmarkt
Hammerbrook, Hamburg
Gew. Ø-Miete
16,50 € / m²
siehe 24 passende MietobjekteErfahren Sie mehr* Durchschnittspreis auf Grundlage historischer Transaktionen.





